← London Borough of Richmond upon Thames

Status

Pending Consideration House extension
Received
05 Feb 2026
New homes
0

Full proposal

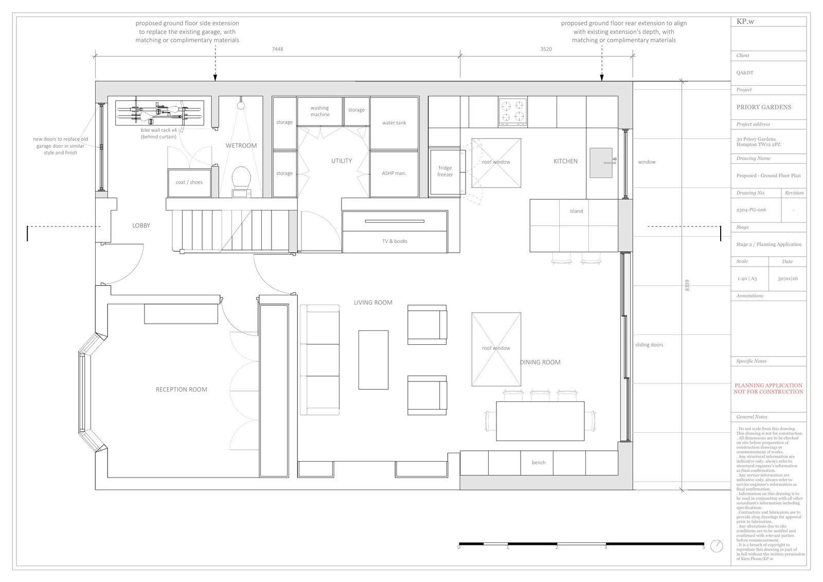
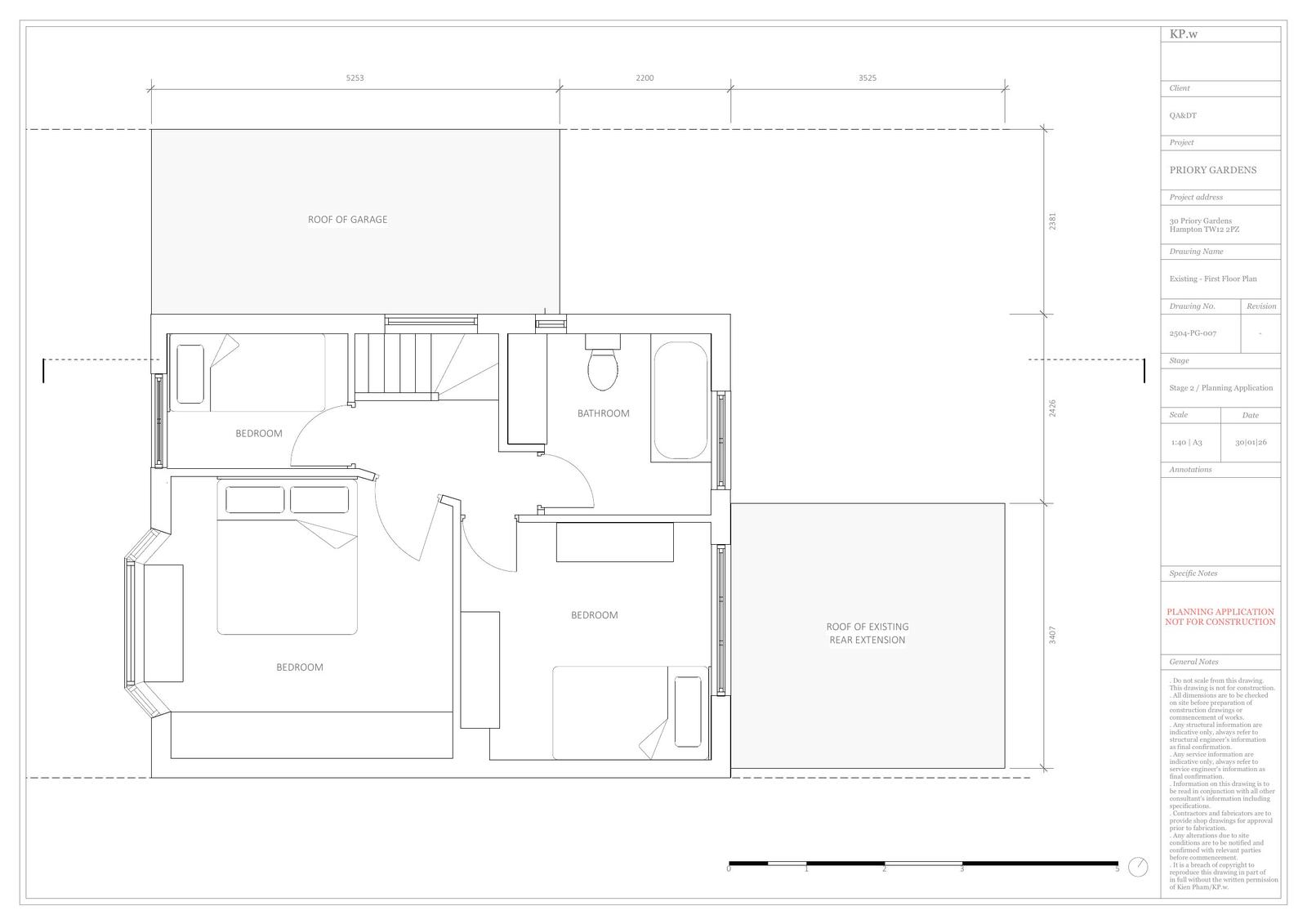
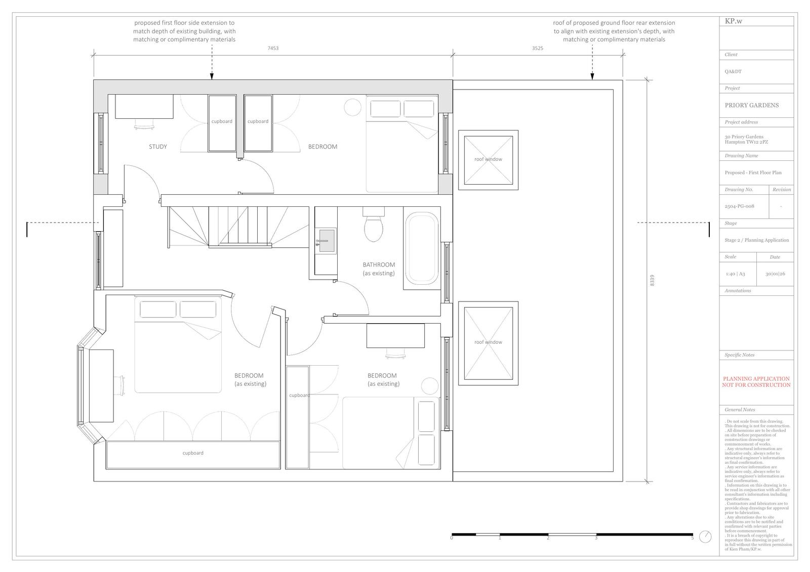
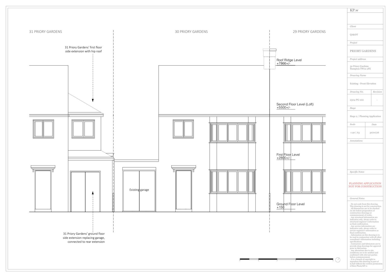
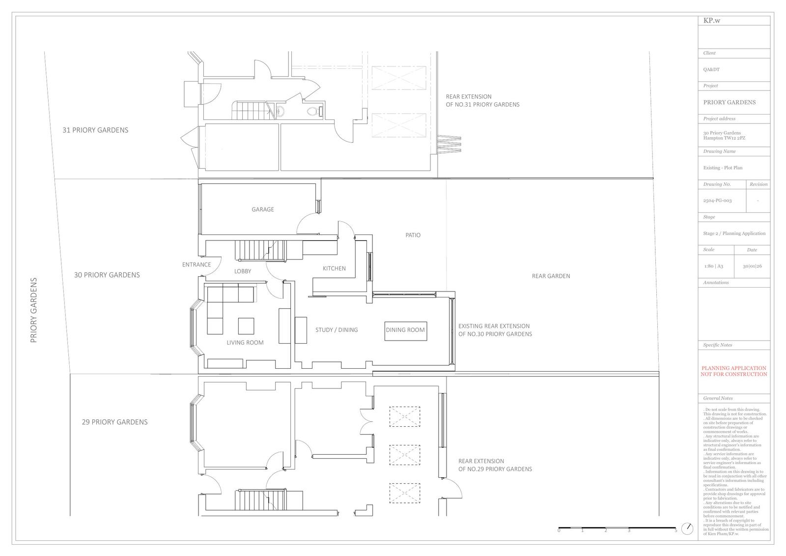
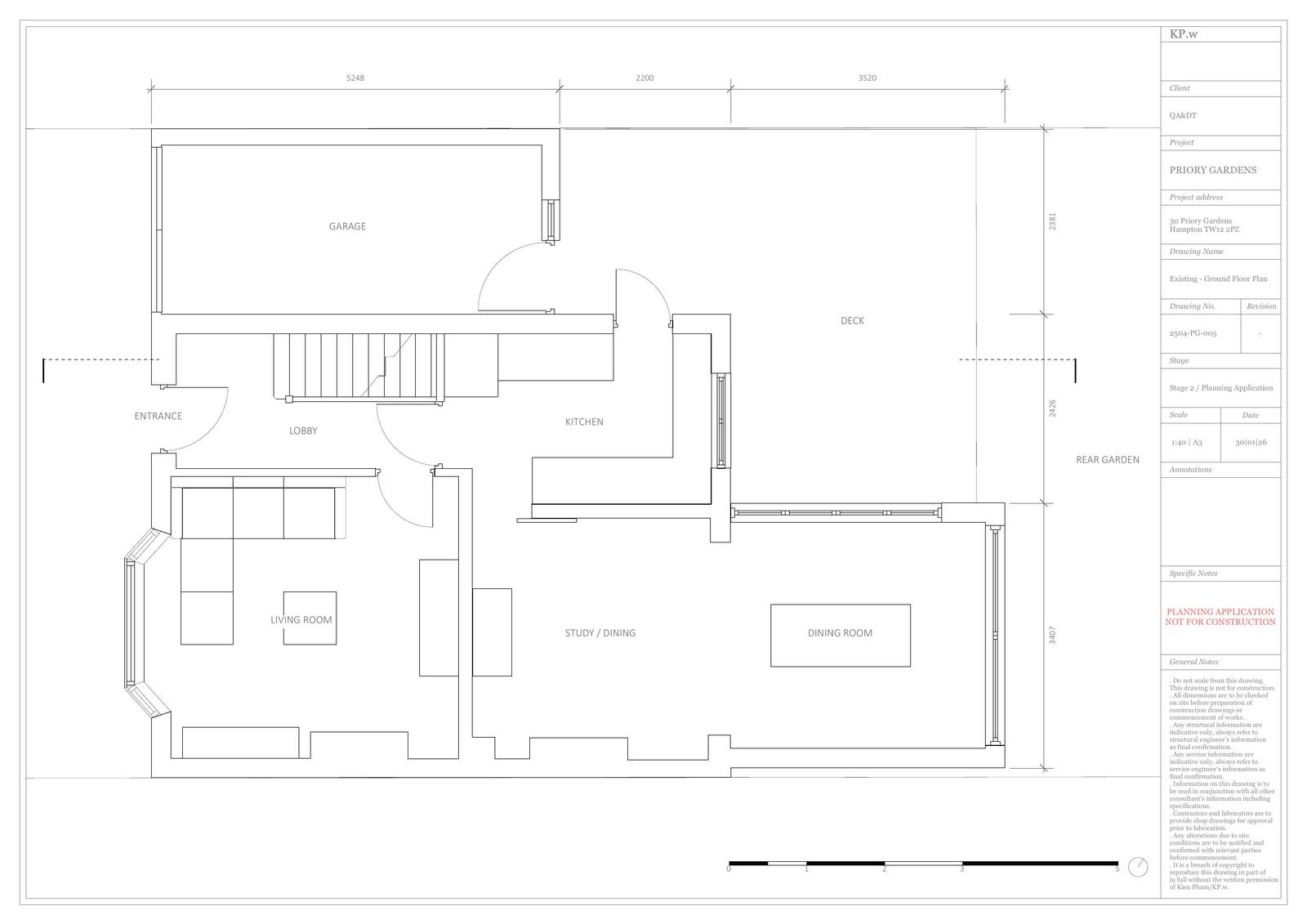
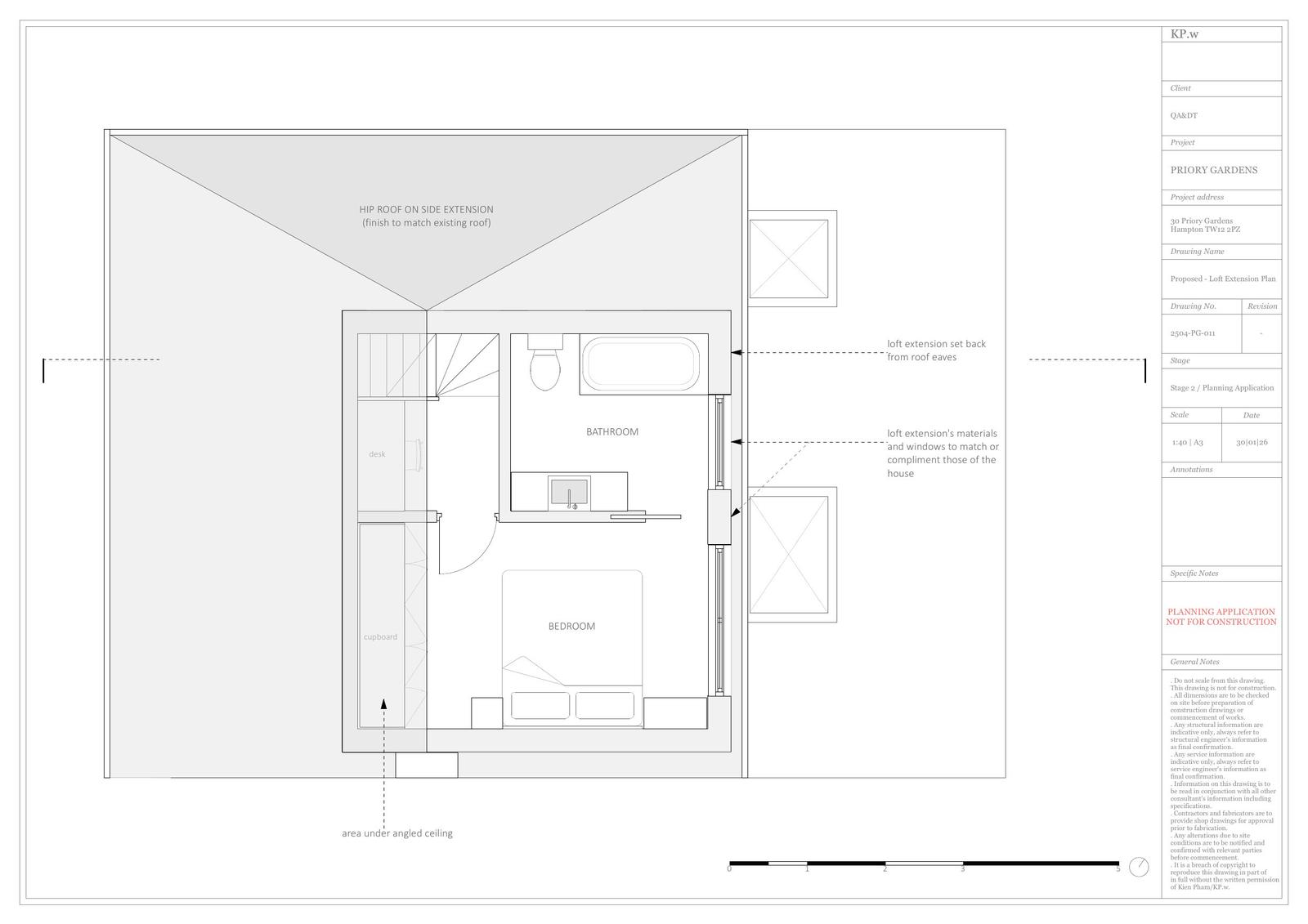
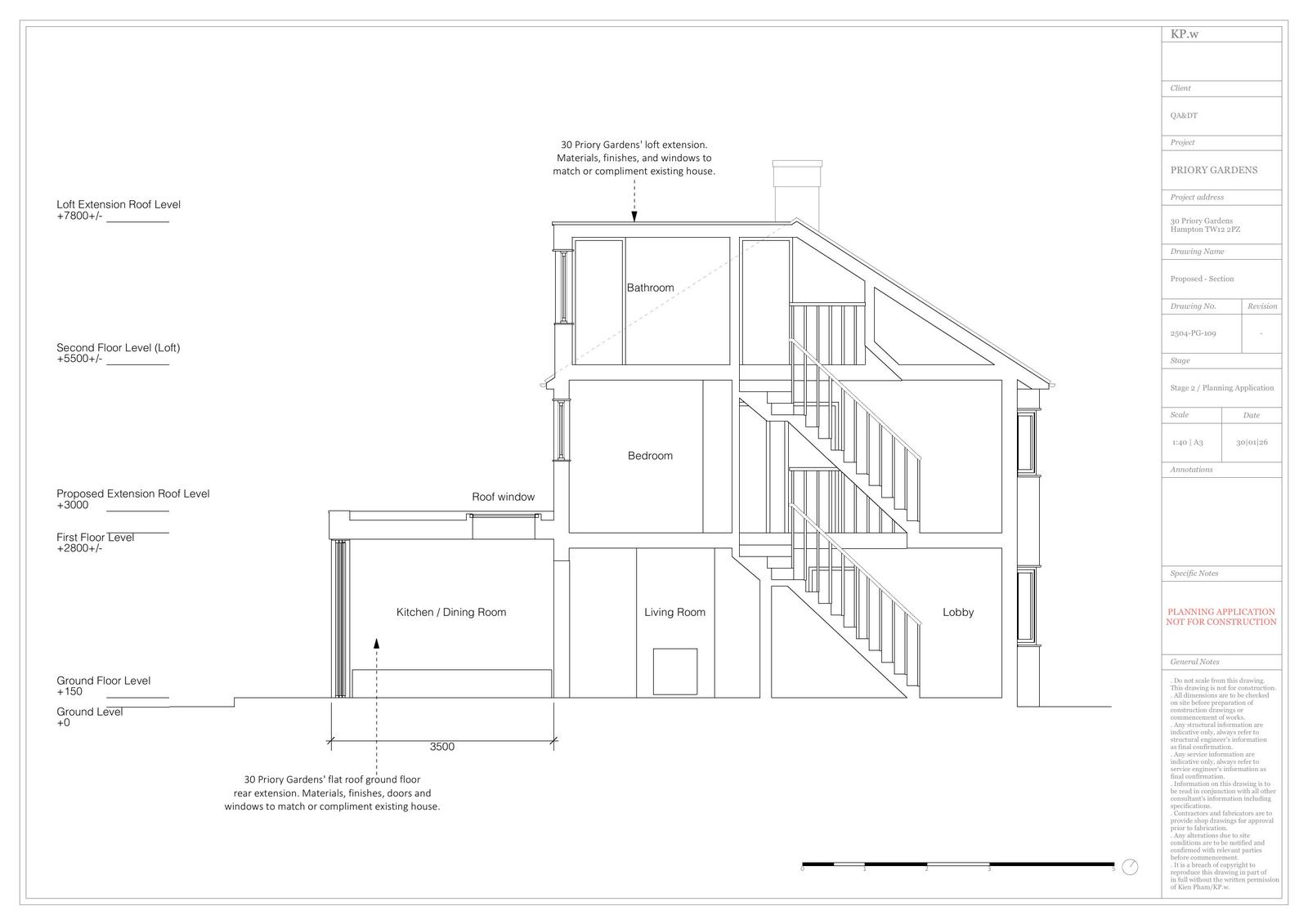
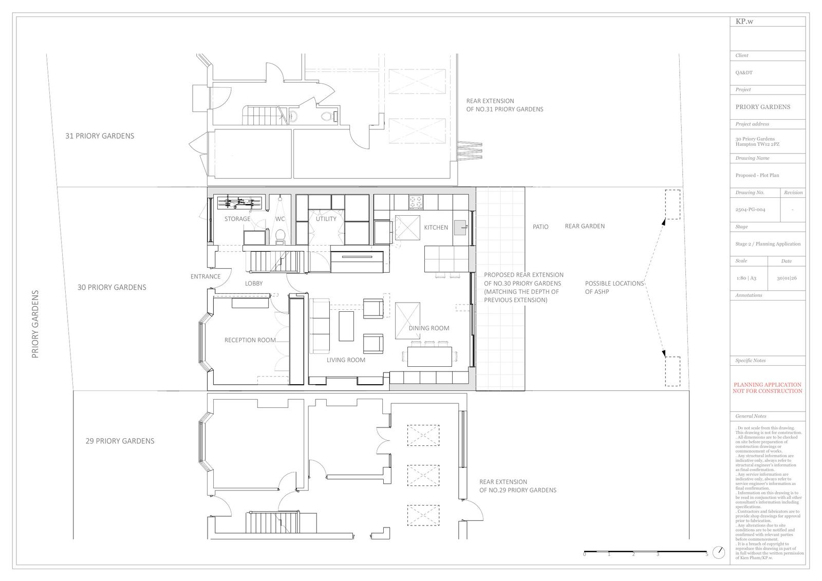
Demolishing the existing garage attached to the side of the house and erecting a two-storey side extension with a hip roof. Demolishing the existing rear extension and erecting a ground floor rear extension of the same depth. Erecting a dormer loft extension of the same width as the original roof. Installing an air source heat pump (ASHP) in the rear garden.

Documents

Application Form - Redacted
Archived · Original link
Community Infrastructure Levy Form
Archived · Original link
Report
Archived · Original link
Submitted Drawing
Archived · Original link
Submitted Drawing
Archived · Original link
Submitted Drawing
Archived · Original link
Submitted Drawing
Archived · Original link
Submitted Drawing
Archived · Original link
Submitted Drawing
Archived · Original link

Have your say

Your comment matters. Councils must consider every representation that raises material planning considerations.

Write a comment