← London Borough of Richmond upon Thames

Status

Pending Consideration House extension
Received
05 Feb 2026
New homes
0

Full proposal

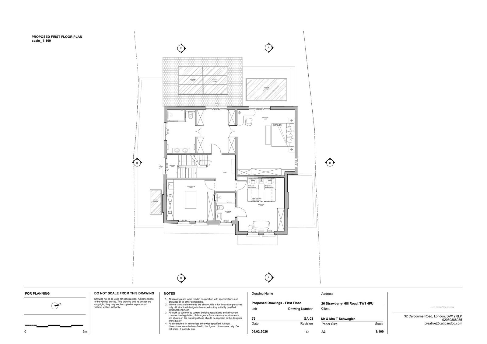
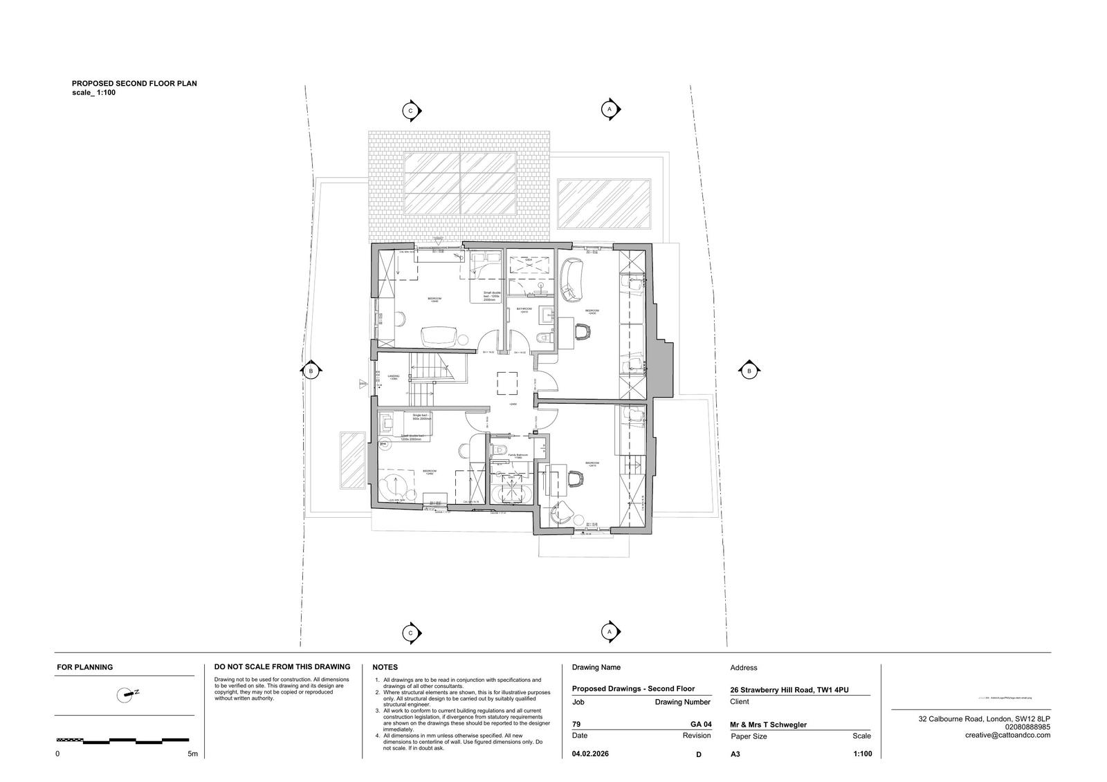
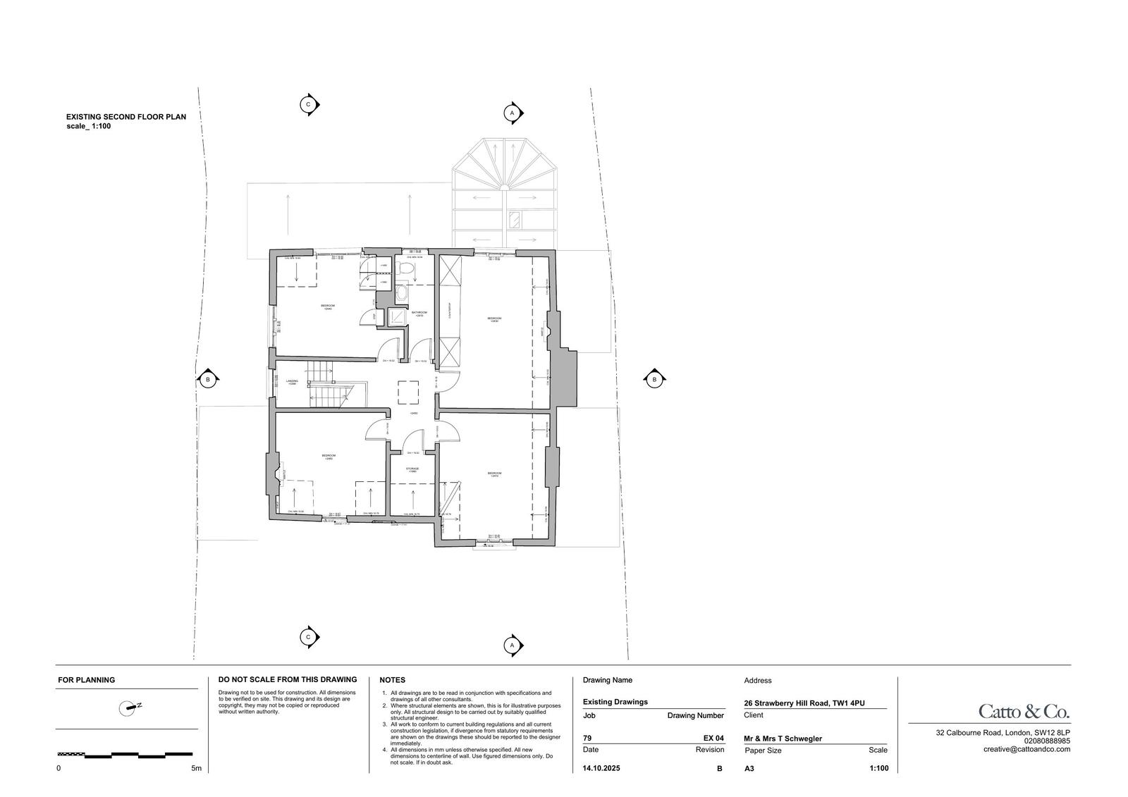
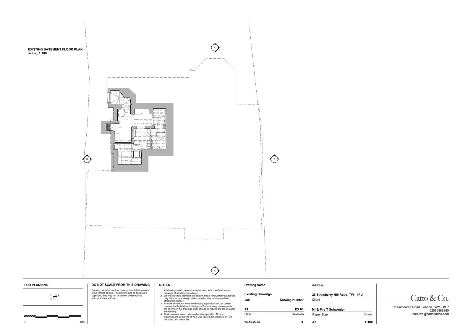
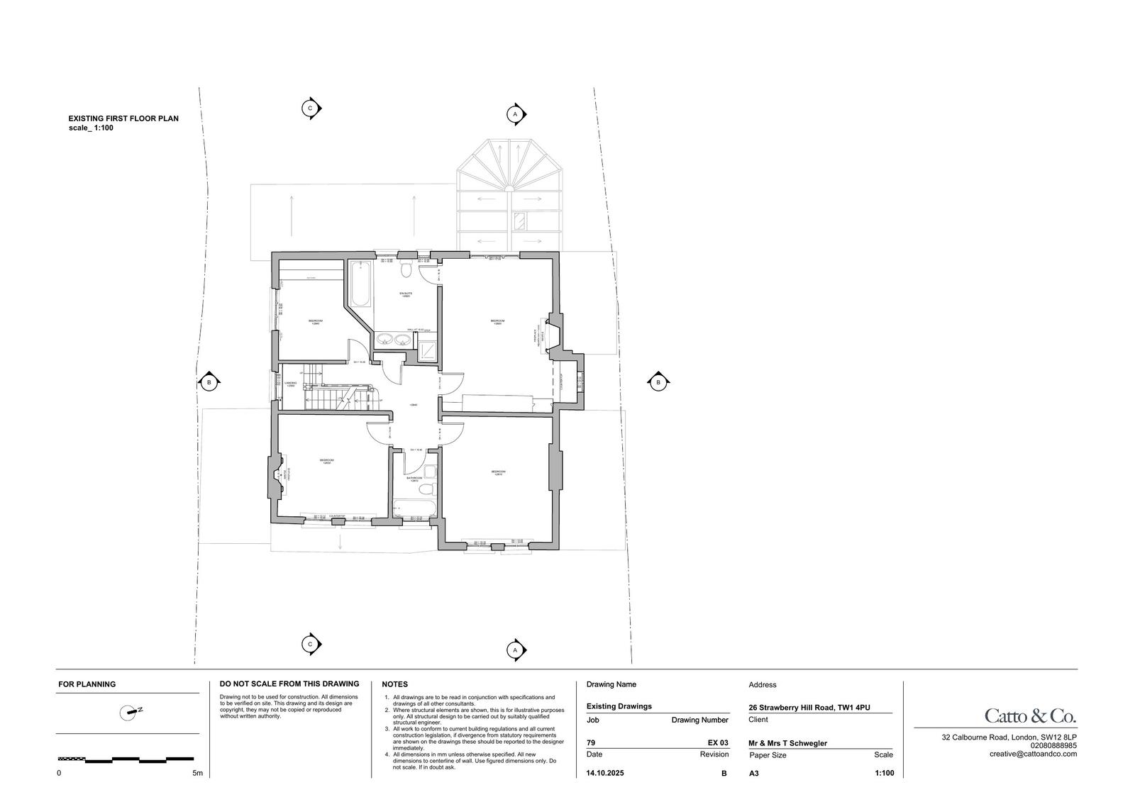
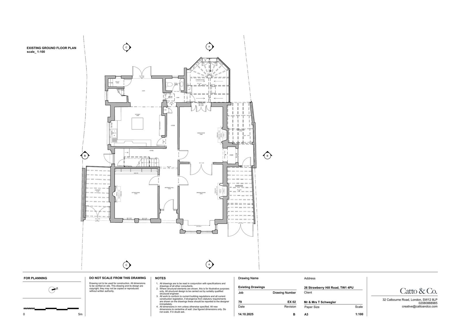
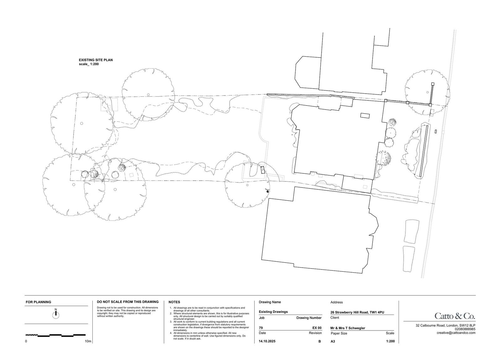
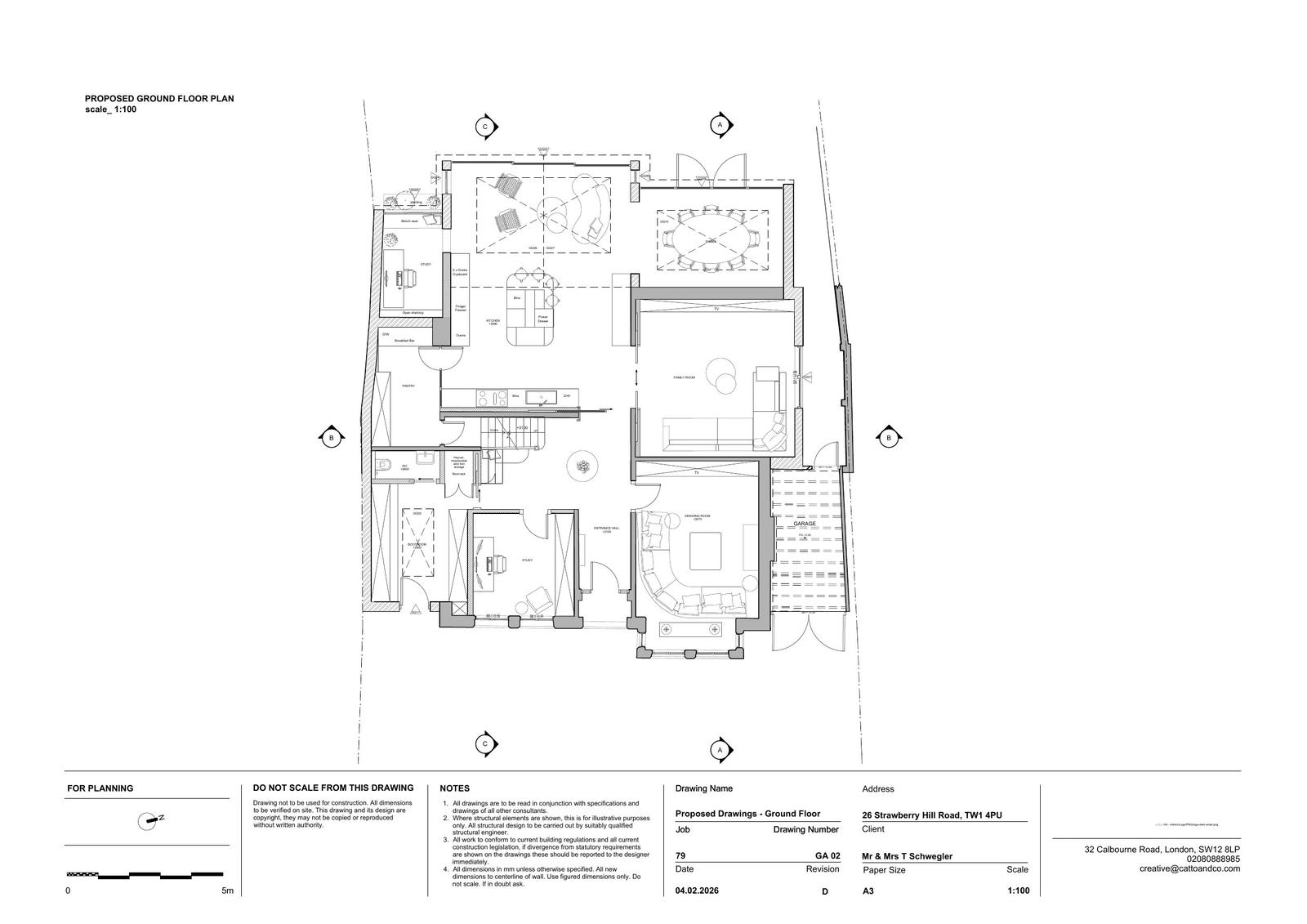
Extension and reconfiguration including a basement extension to accommodate a relocated staircase, single storey side and rear ground-floor extensions, and a part first-floor side extension. Installation of new double glazed like-for-like timber framed windows to new side and rear openings only. Installation of new painted metal framed glazed openings to the ground floor rear extension, and internal refurbishment throughout. Installation of two air source heat pumps (ASHPs) within the rear garden.

Documents

Application Form - Redacted
Archived · Original link
Community Infrastructure Levy Form
Archived · Original link
Design and Access Statement
Archived · Original link
Submitted Drawing
Archived · Original link
Submitted Drawing
Archived · Original link
Submitted Drawing
Archived · Original link
Submitted Drawing
Archived · Original link
Submitted Drawing
Archived · Original link
Submitted Drawing
Archived · Original link
Submitted Drawing
Archived · Original link
Submitted Drawing
Archived · Original link
Submitted Drawing
Archived · Original link
Submitted Drawing
Archived · Original link
Submitted Drawing
Archived · Original link
Submitted Drawing
Archived · Original link
Report
Archived · Original link
Submitted Drawing
Archived · Original link
Submitted Drawing
Archived · Original link
Submitted Drawing
Archived · Original link
Submitted Drawing
Archived · Original link
Submitted Drawing
Archived · Original link
Submitted Drawing
Archived · Original link
Submitted Drawing
Archived · Original link
Submitted Drawing
Archived · Original link
Submitted Drawing
Archived · Original link
Submitted Drawing
Archived · Original link
Submitted Drawing
Archived · Original link
Submitted Drawing
Archived · Original link
Submitted Drawing
Archived · Original link
Submitted Drawing
Archived · Original link
Submitted Drawing
Archived · Original link
Submitted Drawing
Archived · Original link
Location plan
Archived · Original link
Report
Archived · Original link

Have your say

Your comment matters. Councils must consider every representation that raises material planning considerations.

Write a comment