← London Borough of Richmond upon Thames

Status

Pending Consideration House extension
Received
Last month
New homes
0

Full proposal

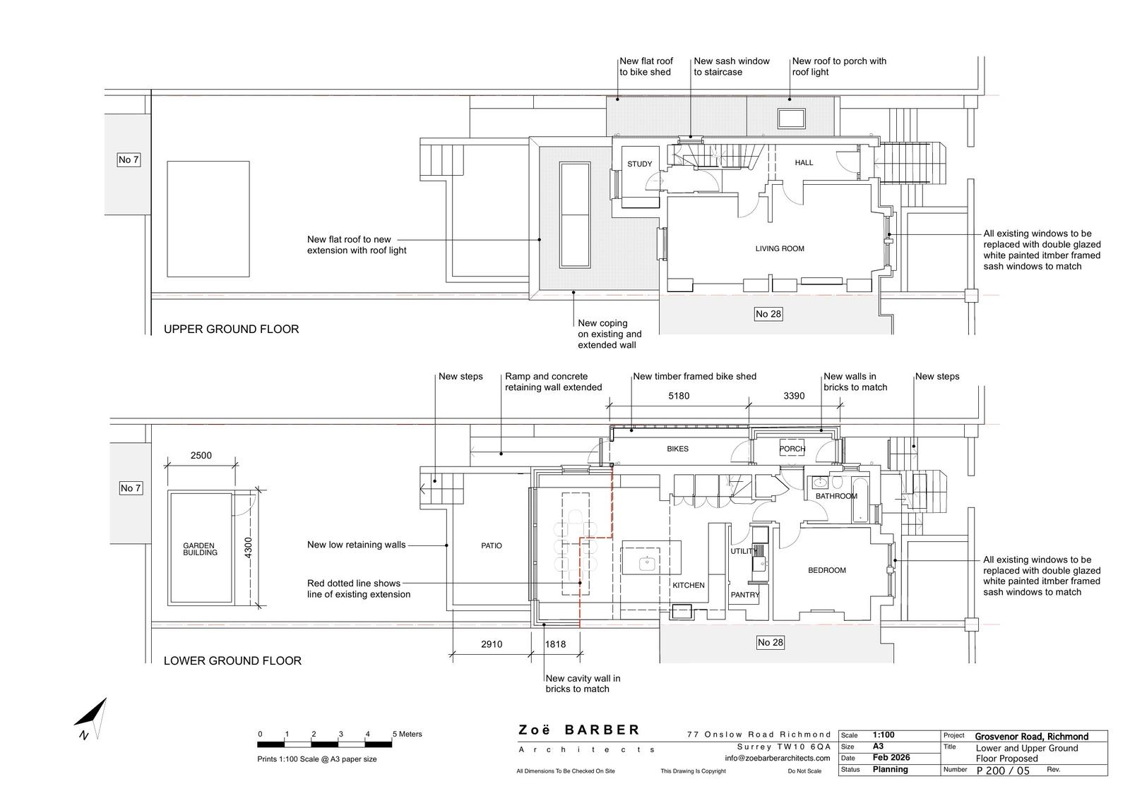
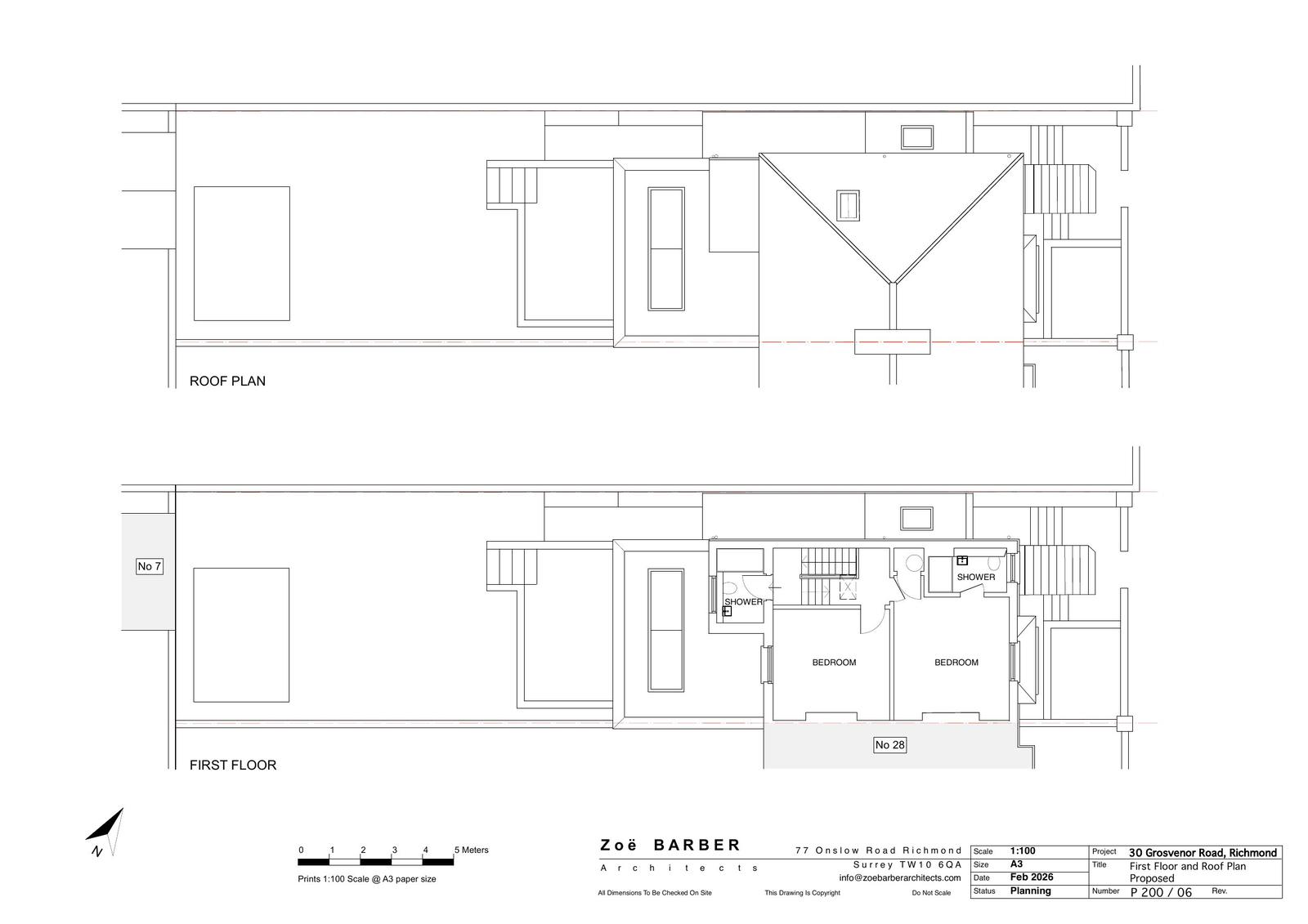
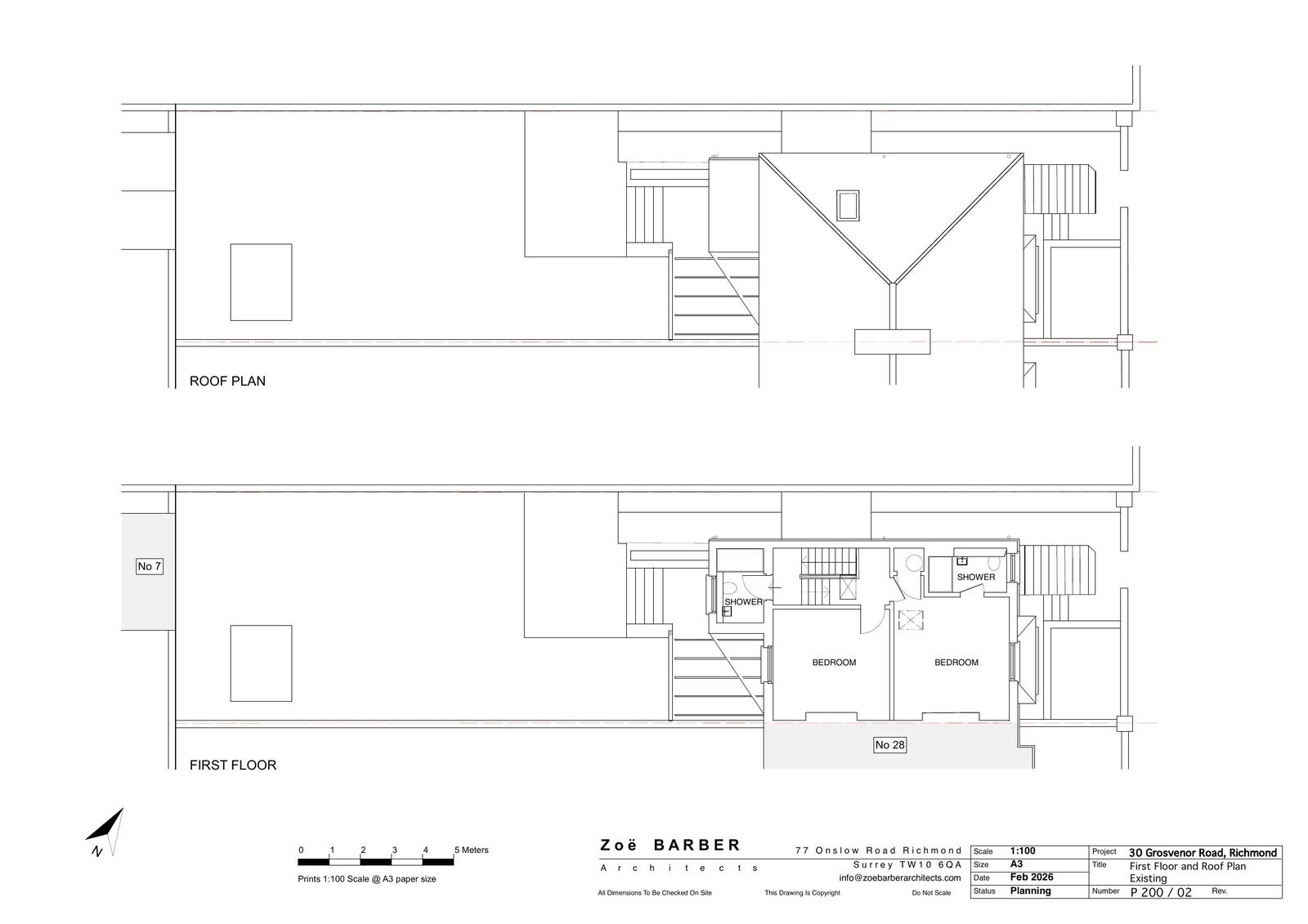
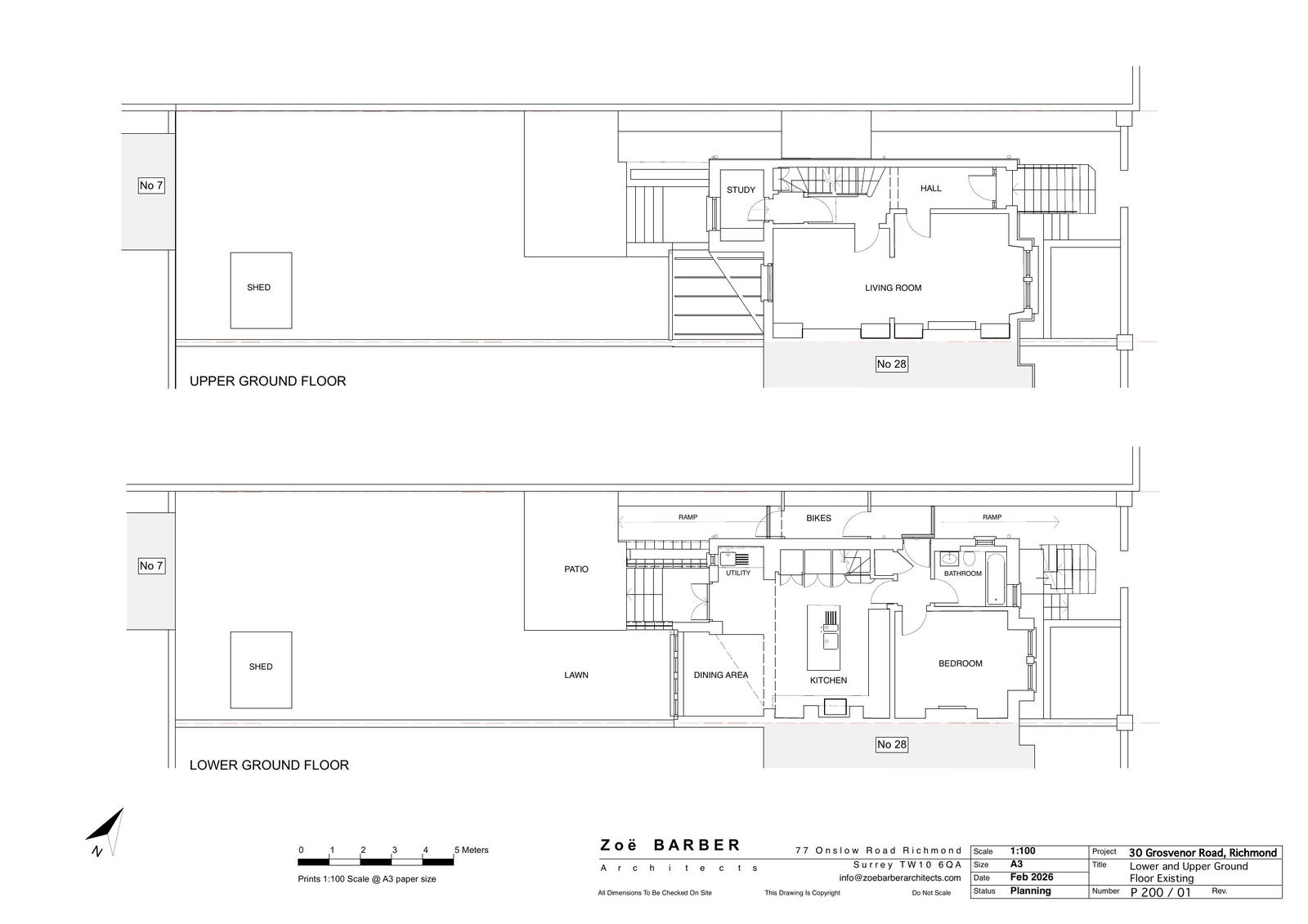
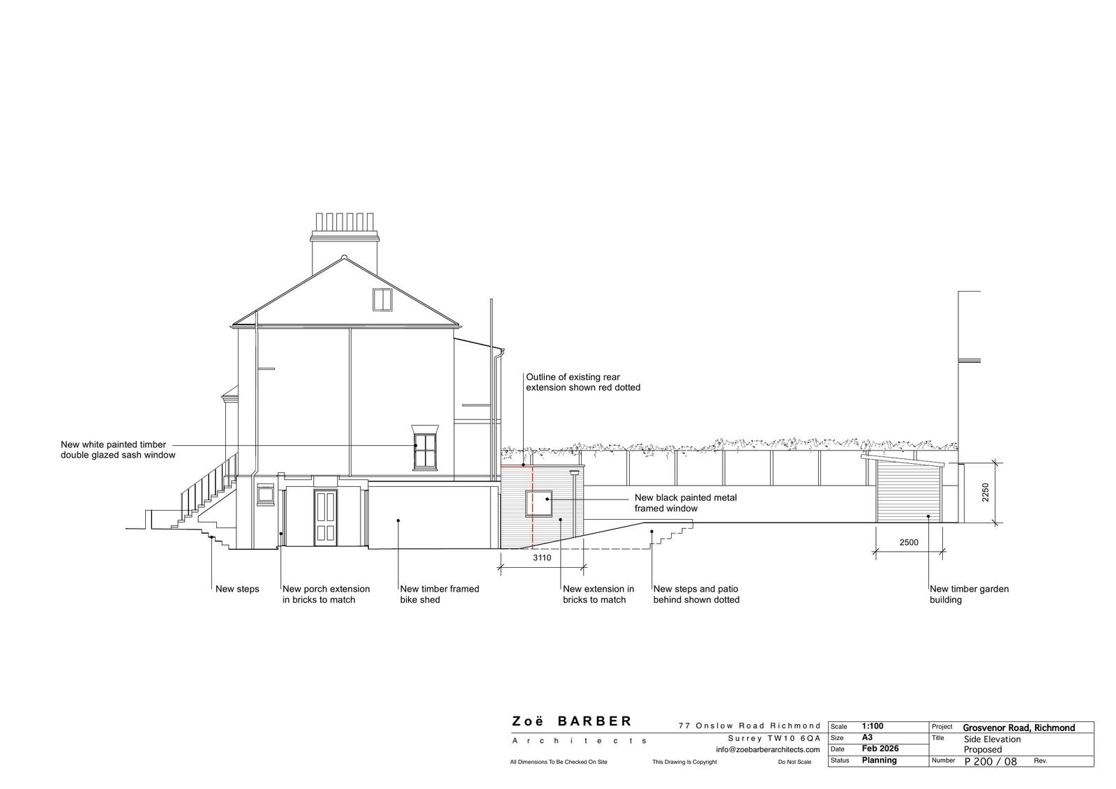
Erection of a new single storey rear and side extension, a new garden building, new sash window to side elevation and replacement double glazed sash windows to the existing house.

Documents

Public Comment - Observation
Archived · Original link
Application Form - Redacted
Archived · Original link
Community Infrastructure Levy Form
Archived · Original link
Submitted Drawing
Archived · Original link
Report
Archived · Original link
Submitted Drawing
Archived · Original link
Submitted Drawing
Archived · Original link

Have your say

Your comment matters. Councils must consider every representation that raises material planning considerations.

Write a comment