← London Borough of Richmond upon Thames

Status

Pending Consideration House extension
Received
Last month
New homes
0

Full proposal

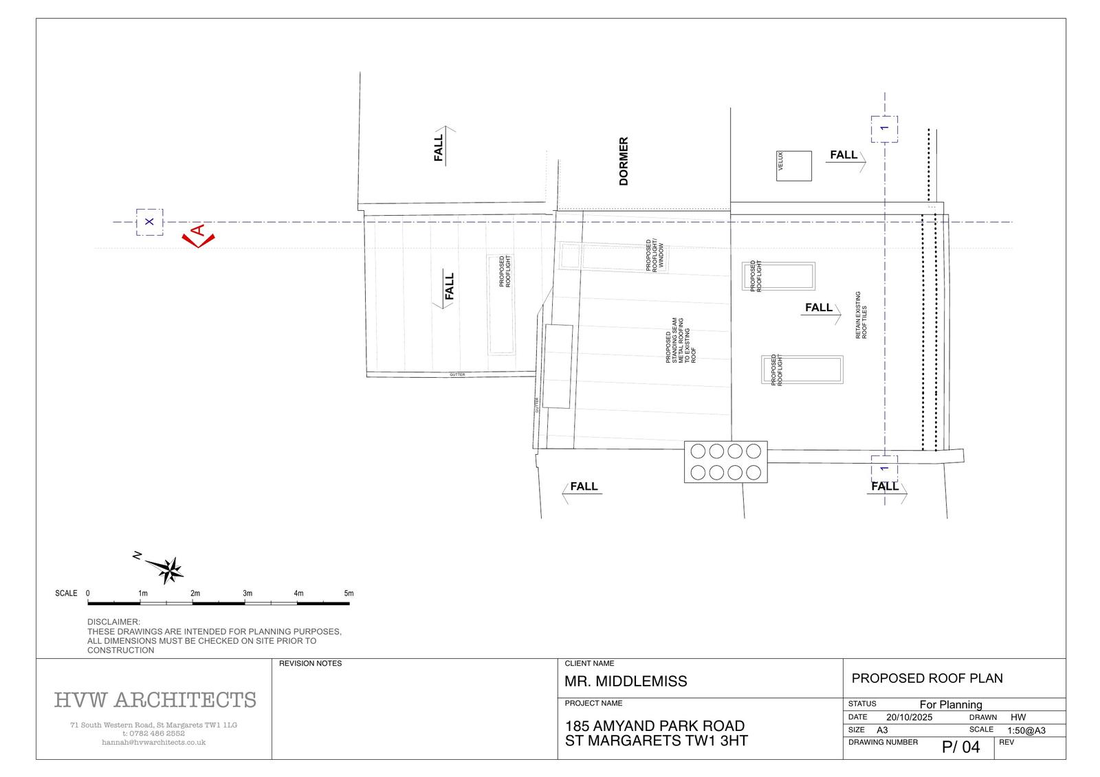
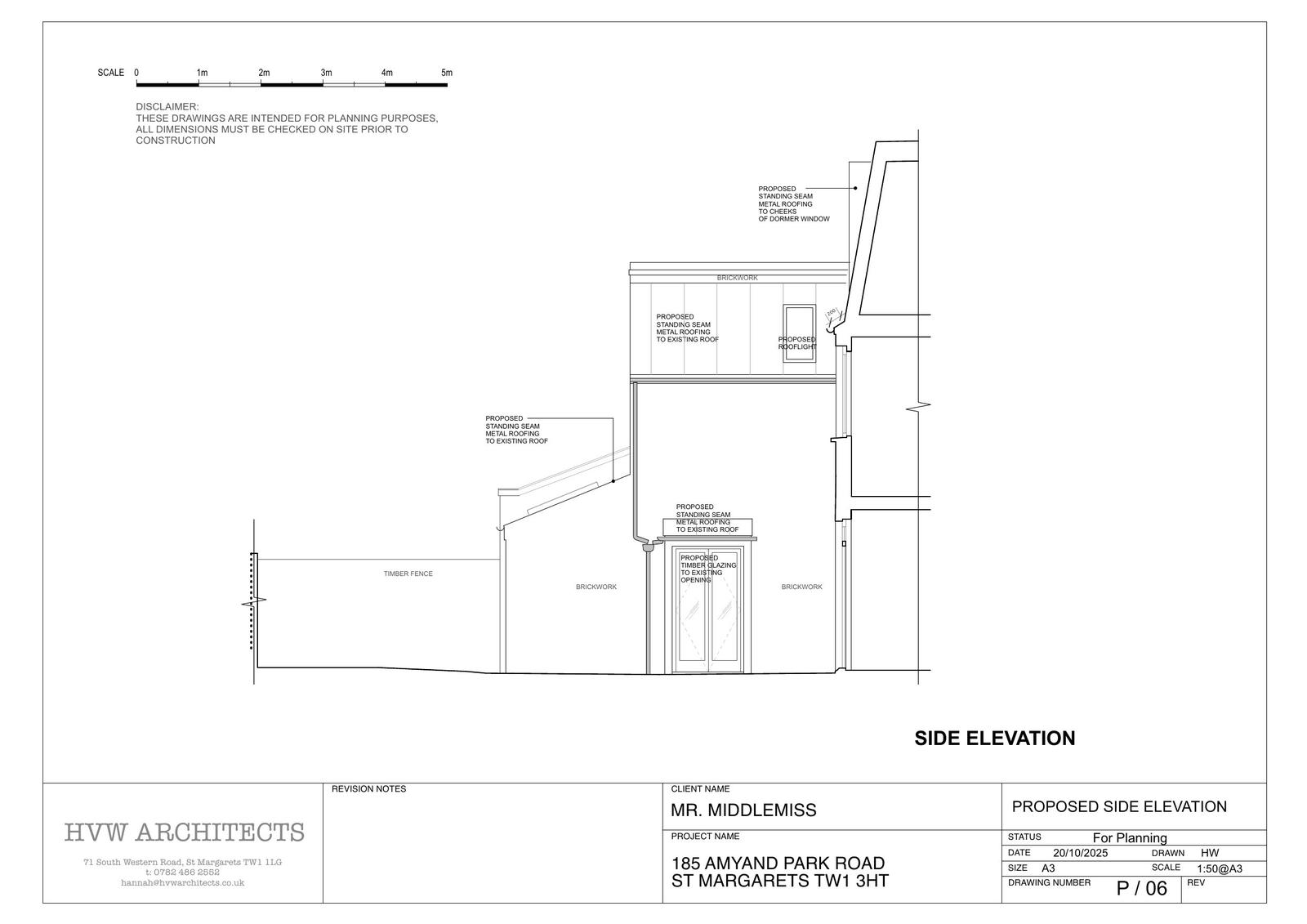
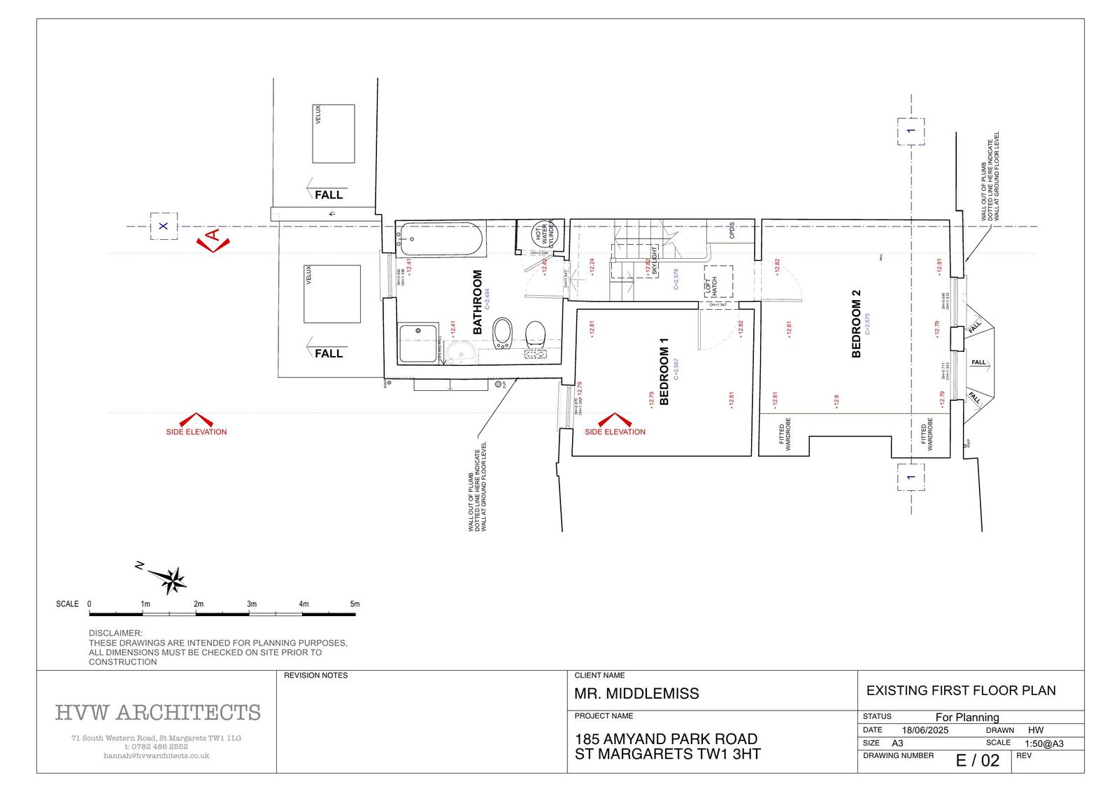
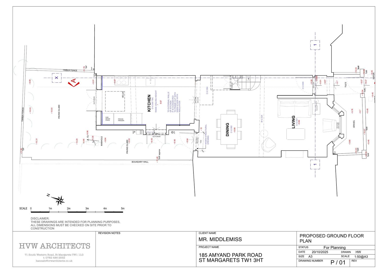
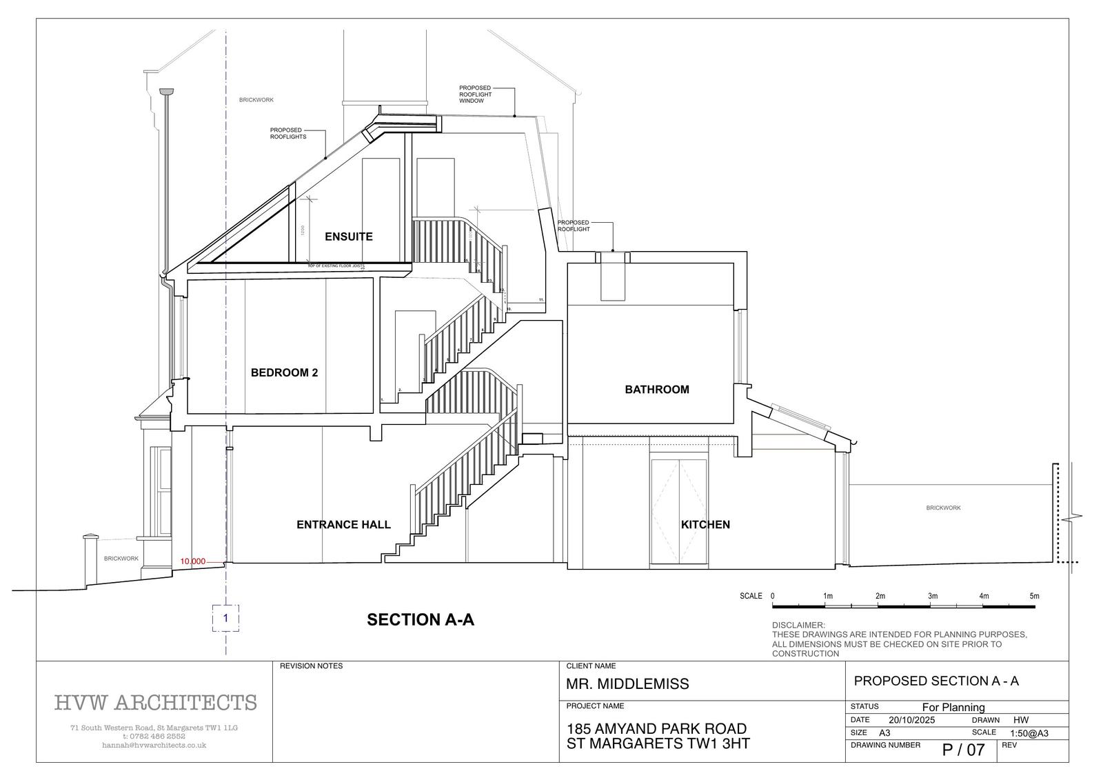
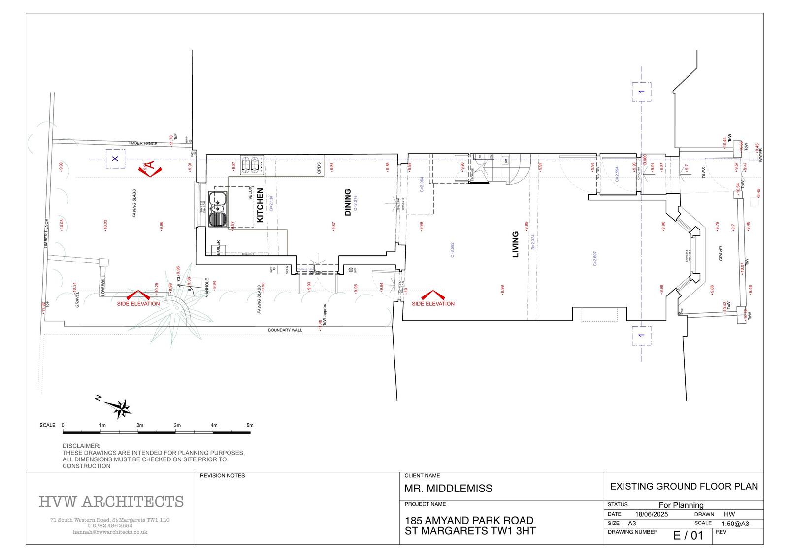
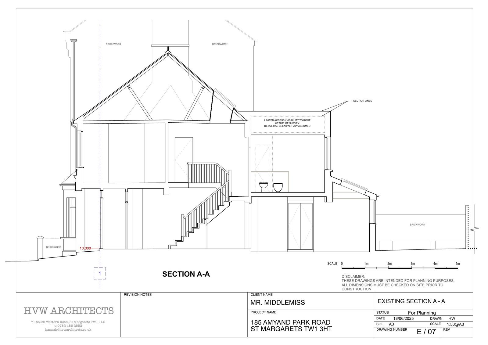
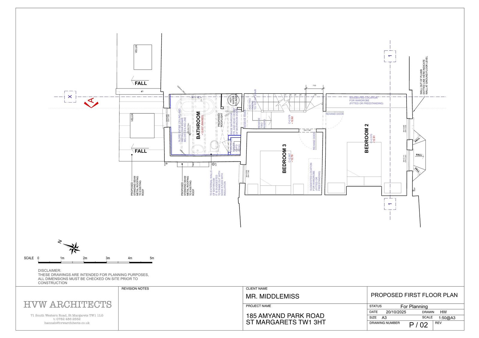
Loft conversion including the construction of a rear mansard with rooflights; replacement of existing UPVC windows and doors with timber replacements; new rear french doors and replacement roof lights; replacement roof is on the rear outrigger, at both first floor and ground floor level.

Documents

Public Comment - Object
Archived · Original link
Application Form - Redacted
Archived · Original link
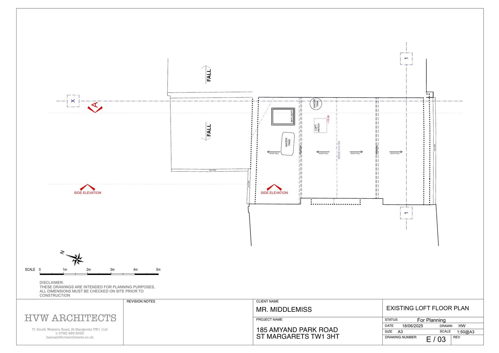
Submitted Drawing
Archived · Original link
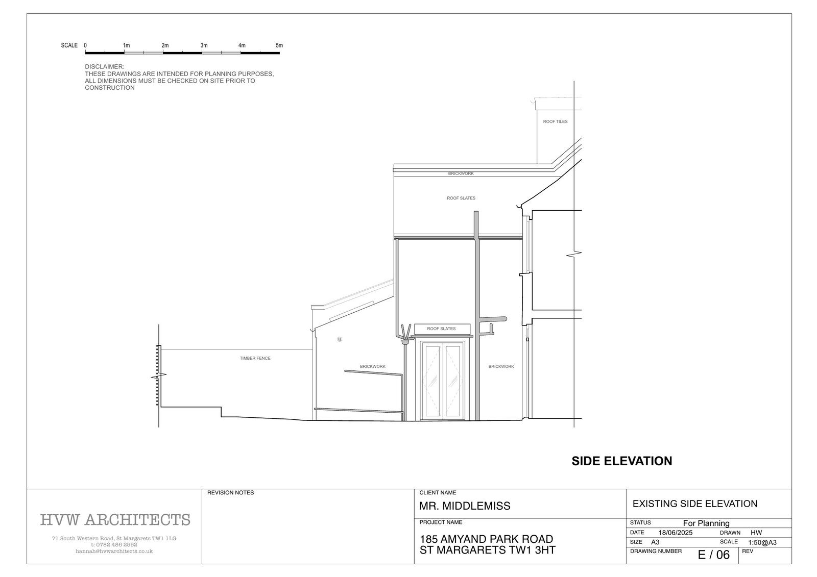
Submitted Drawing
Archived · Original link
Submitted Drawing
Archived · Original link
Submitted Drawing
Archived · Original link
Submitted Drawing
Archived · Original link
Submitted Drawing
Archived · Original link
Submitted Drawing
Archived · Original link
Report
Archived · Original link
Submitted Drawing
Archived · Original link
Submitted Drawing
Archived · Original link
Submitted Drawing
Archived · Original link
Submitted Drawing
Archived · Original link
Submitted Drawing
Archived · Original link
Submitted Drawing
Archived · Original link
Submitted Drawing
Archived · Original link
Submitted Drawing
Archived · Original link

Have your say

Your comment matters. Councils must consider every representation that raises material planning considerations.

Write a comment