← London Borough of Richmond upon Thames
PA26/0489
London Borough of Richmond upon Thames
Status
Pending Consideration
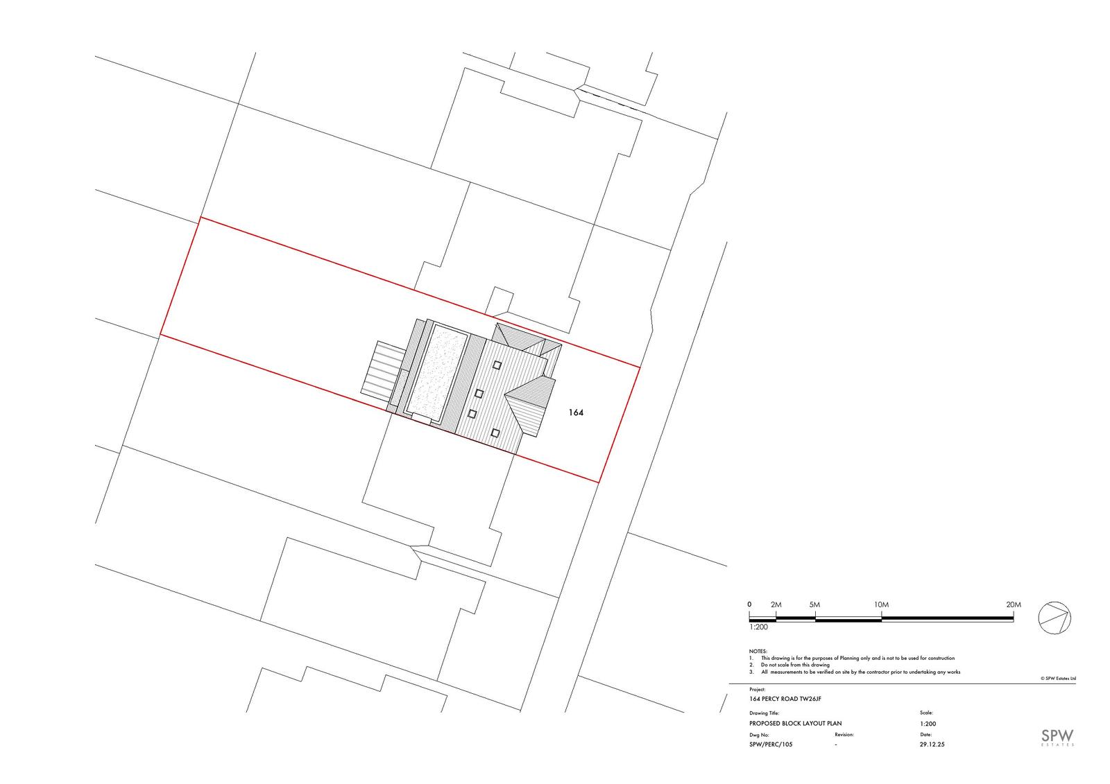
House extension
Received
Last month
New homes
0
Full proposal
Loft extension with rear facing dormer and front rooflights
Documents
Submitted Drawing
Archived
· Original link
Submitted Drawing
Archived
· Original link
Submitted Drawing
Archived
· Original link
Have your say
Your comment matters. Councils must consider every representation that raises material planning considerations.