← London Borough of Richmond upon Thames

Status

Pending Consideration House extension
Received
Last month
New homes
0

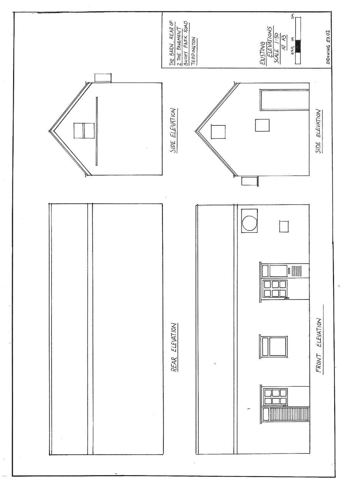
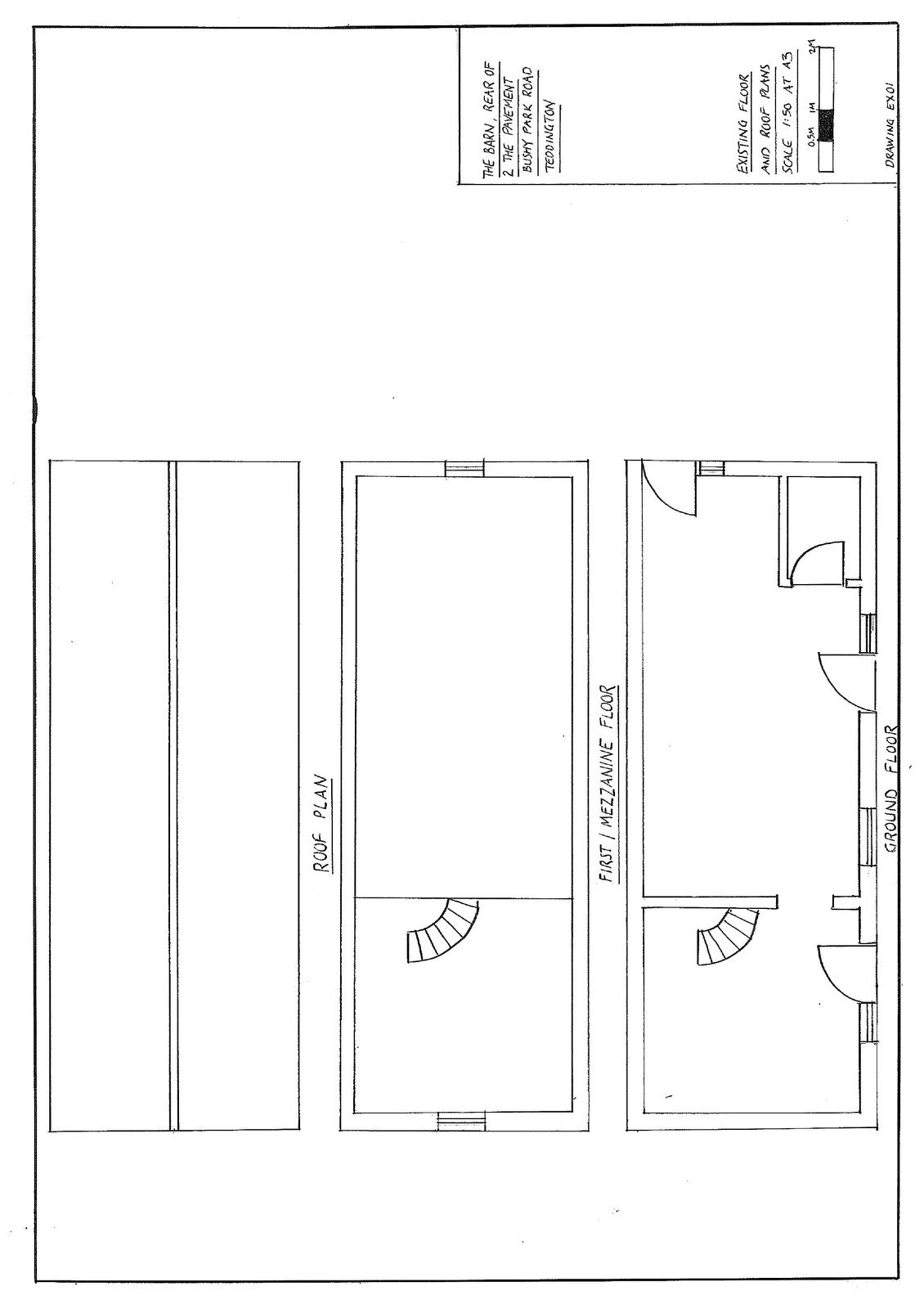
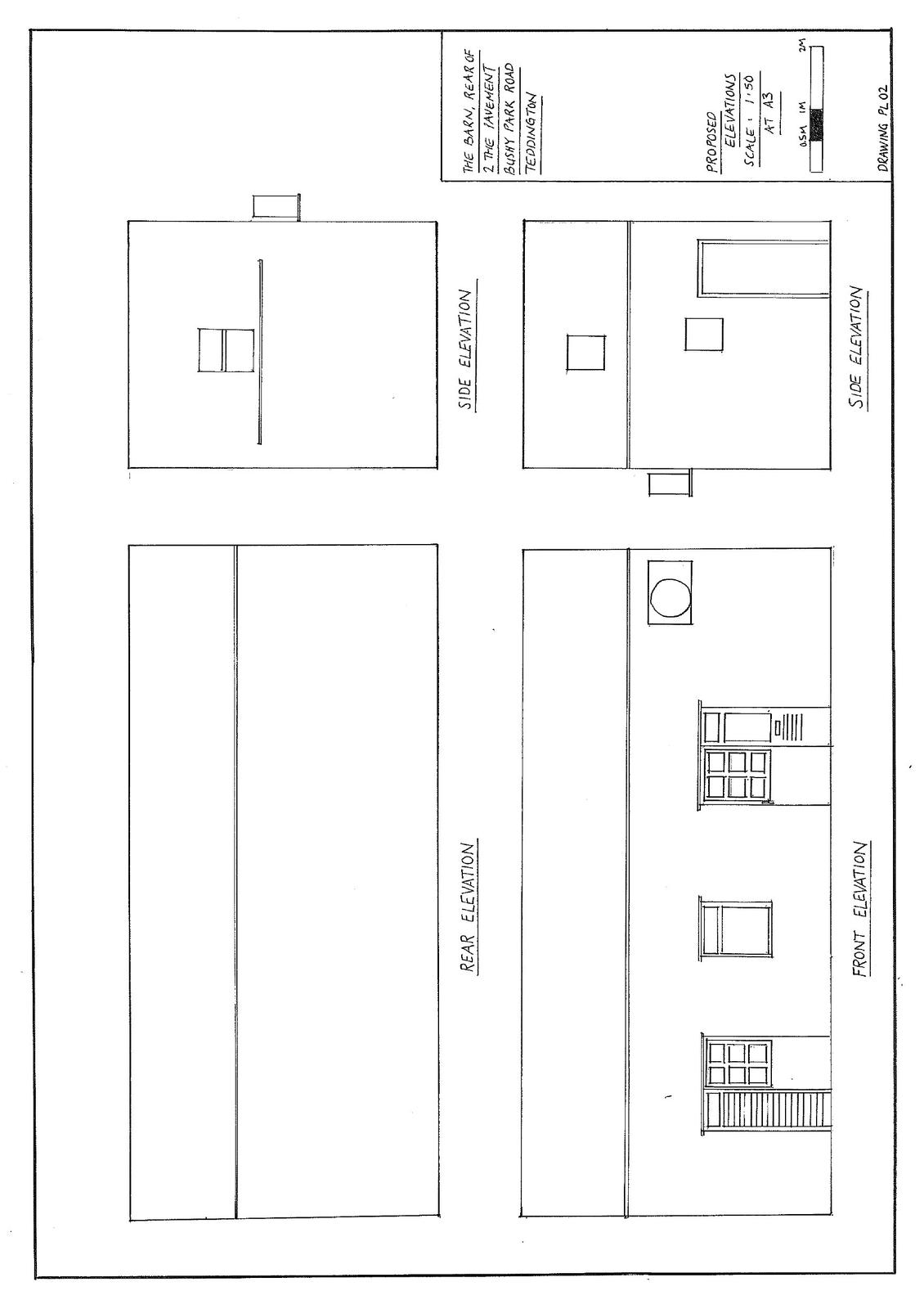
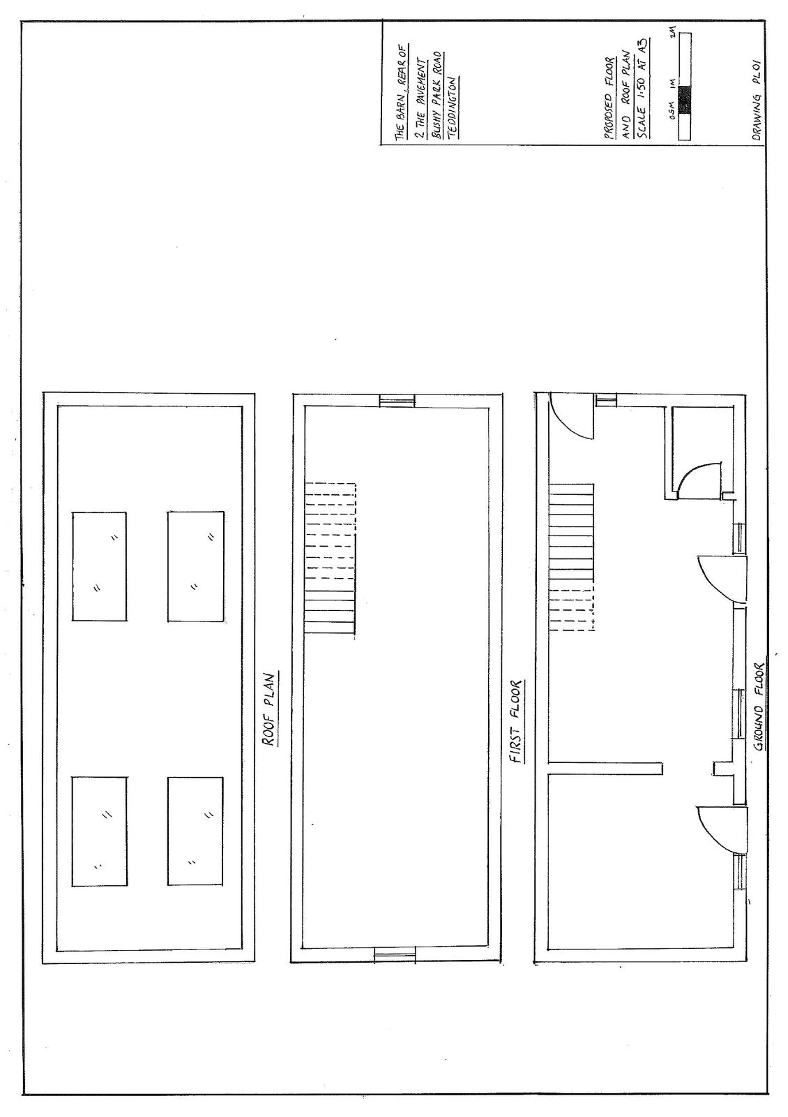
Full proposal

Removal of the existing pitched roof and replacement with a flat roof extension, which will include a small surrounding parapet and four flush roof lights.

Documents

Public Comment - Object
Archived · Original link
Application Form - Redacted
Archived · Original link
Application Form
Archived · Original link
Submitted Drawing
Archived · Original link
Submitted Drawing
Archived · Original link
Submitted Drawing
Archived · Original link
Submitted Drawing
Archived · Original link
Submitted Drawing
Archived · Original link
Public Comment - Object
Archived · Original link

Have your say

Your comment matters. Councils must consider every representation that raises material planning considerations.

Write a comment