← London Borough of Richmond upon Thames
PA26/0522
London Borough of Richmond upon Thames
Status
Pending Consideration
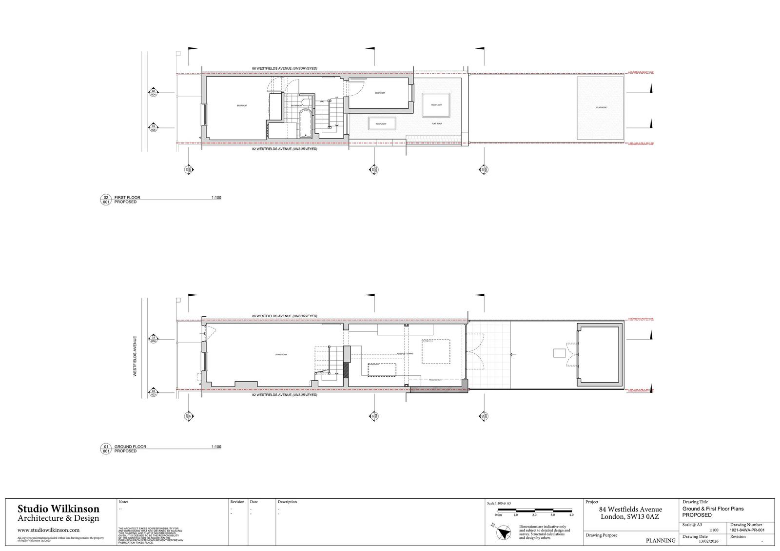
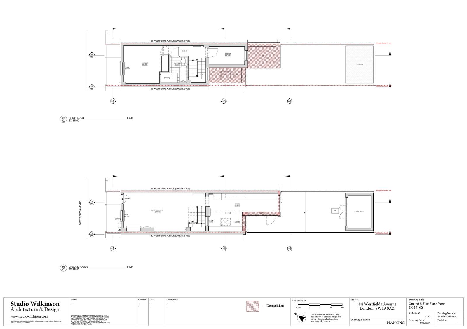
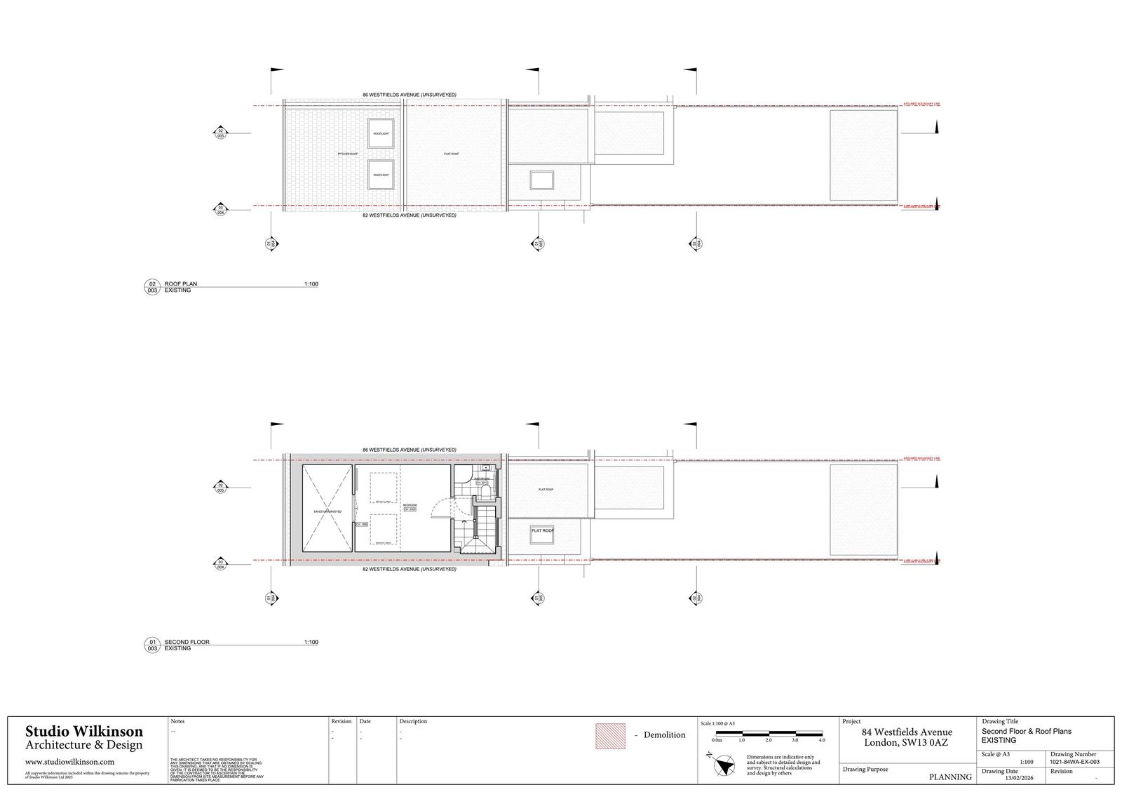
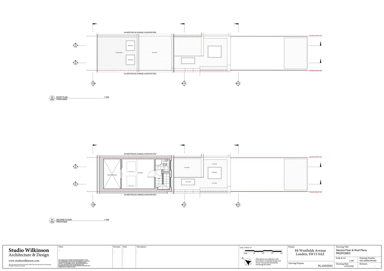
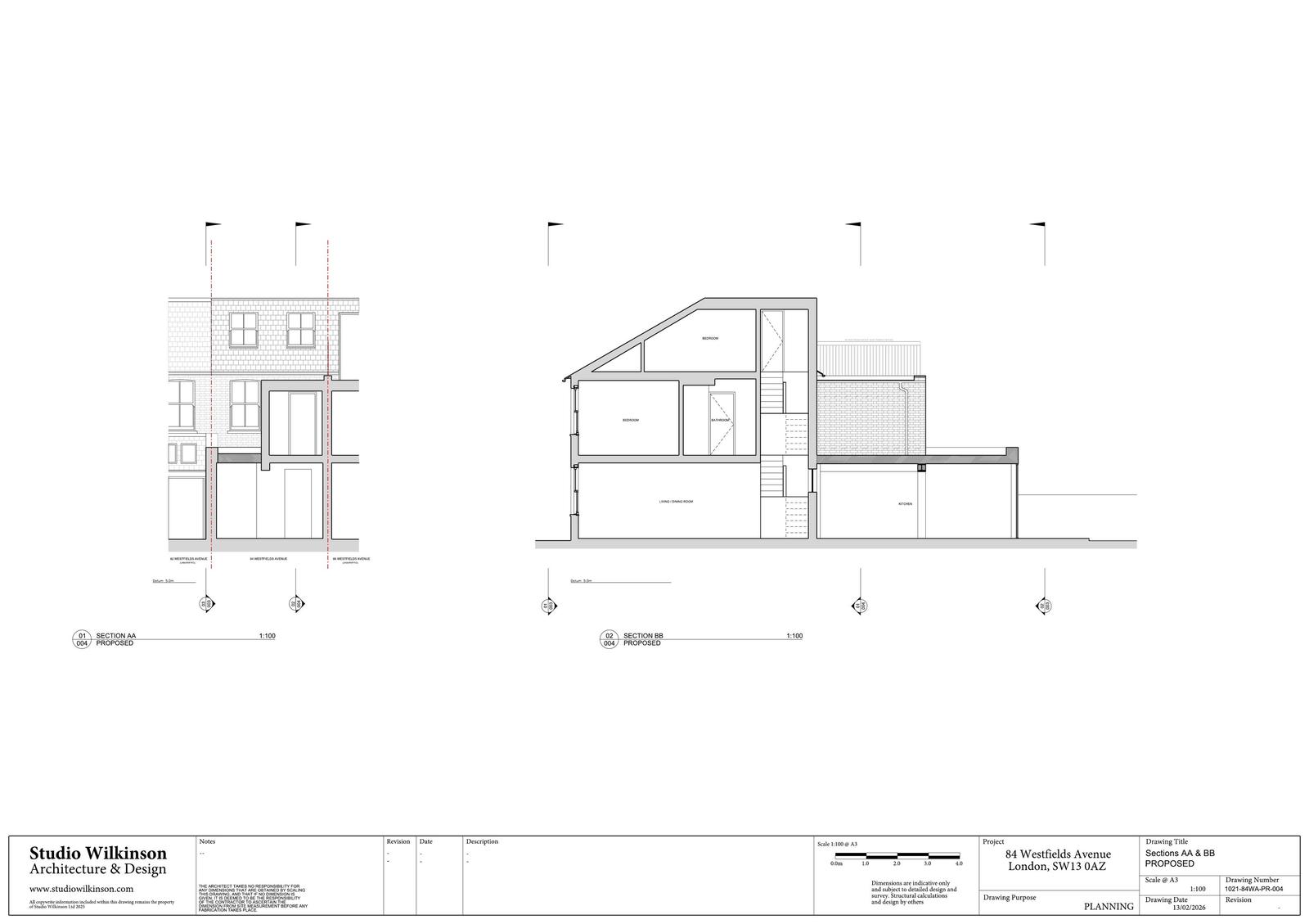
House extension
Received
Last month
New homes
0
Full proposal
Demolition of existing extension and proposed rear ground floor extension and associated works
Documents
Have your say
Your comment matters. Councils must consider every representation that raises material planning considerations.