← London Borough of Richmond upon Thames

Status

Pending Consideration House extension
Received
Last month
New homes
0

Full proposal

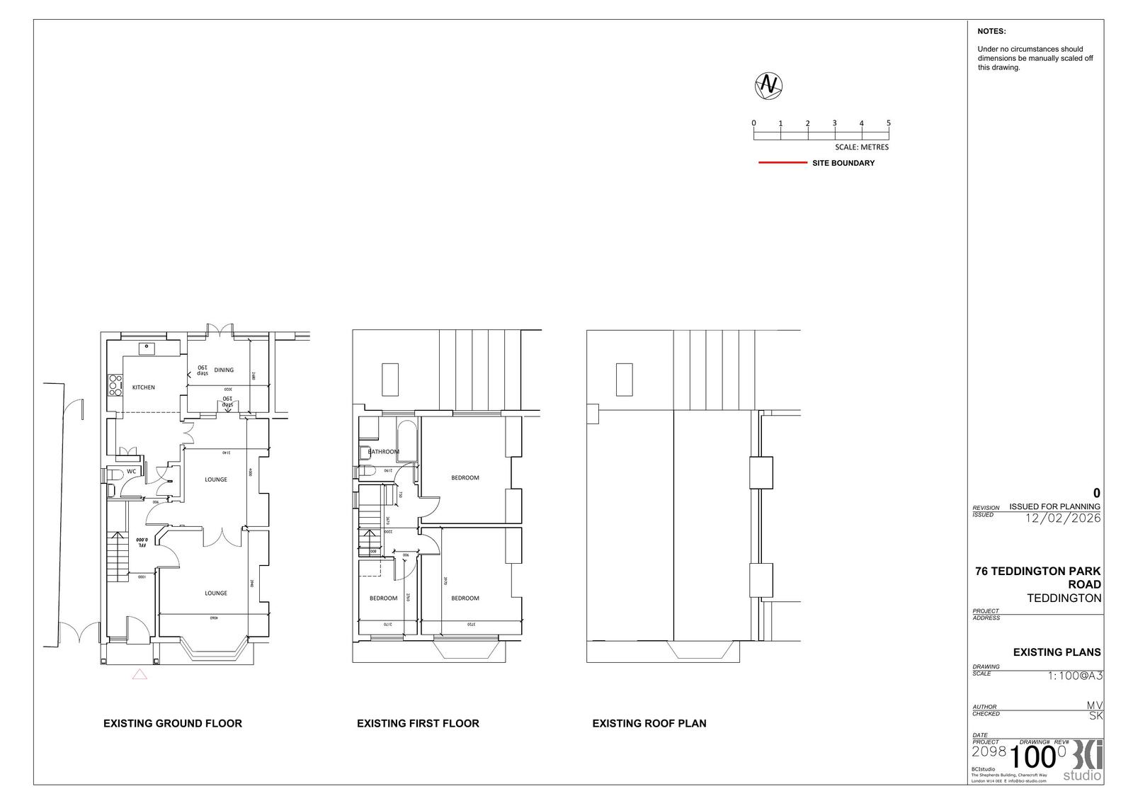
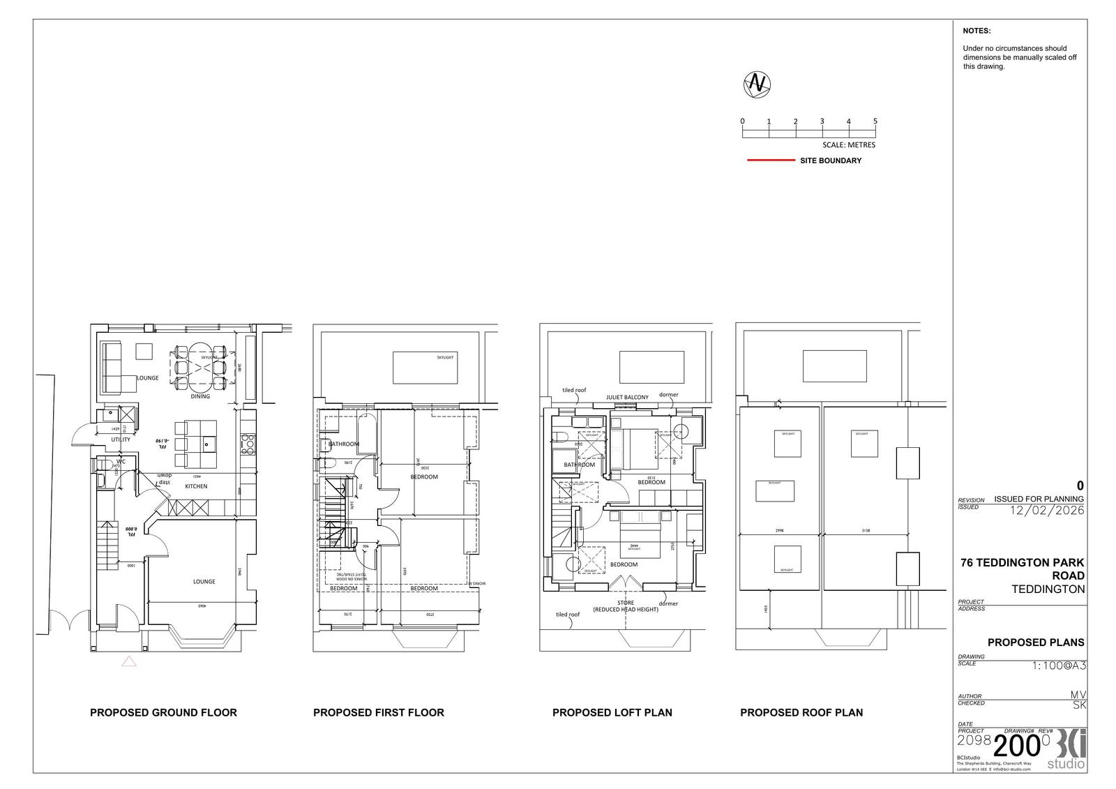
Loft conversion including two side dormers on gable roofed property and 3m deep full width single storey extension

Documents

Application Form - Redacted
Archived · Original link
Application Form
Archived · Original link
Submitted Drawing
Archived · Original link
Submitted Drawing
Archived · Original link
Submitted Drawing
Archived · Original link
Report
Archived · Original link
Submitted Drawing
Archived · Original link
Submitted Drawing
Archived · Original link
Submitted Drawing
Archived · Original link
Submitted Drawing
Archived · Original link
Submitted Drawing
Archived · Original link

Have your say

Your comment matters. Councils must consider every representation that raises material planning considerations.

Write a comment