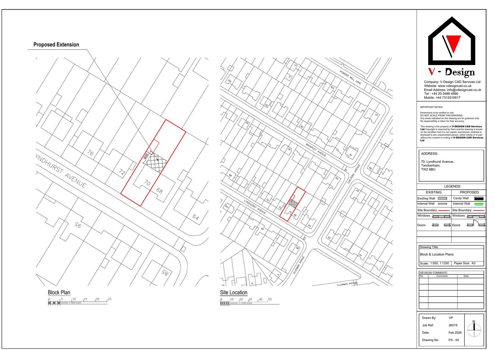
← London Borough of Richmond upon Thames

Status

Pending Consideration House extension
Received
Last month
New homes
0

Full proposal

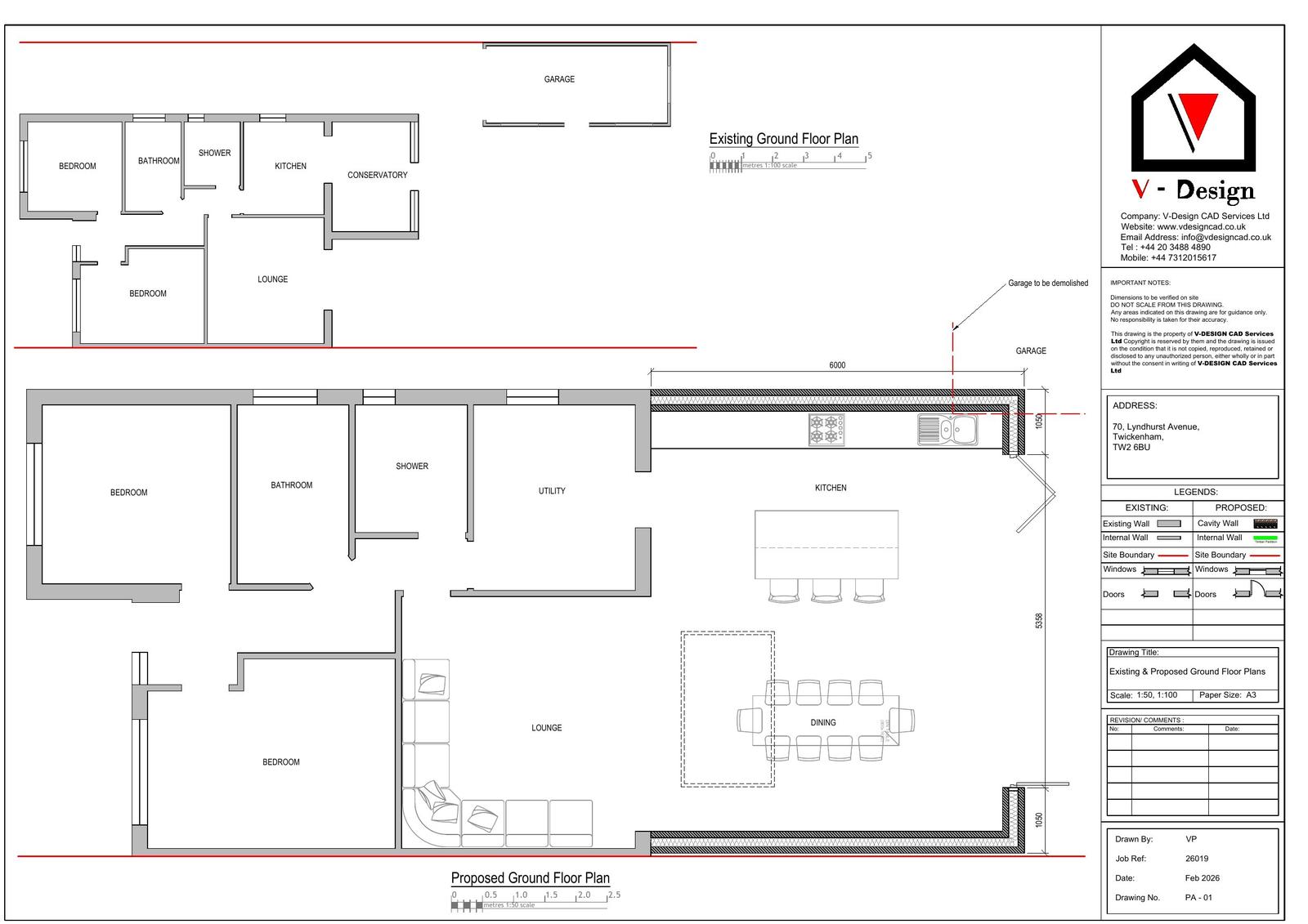
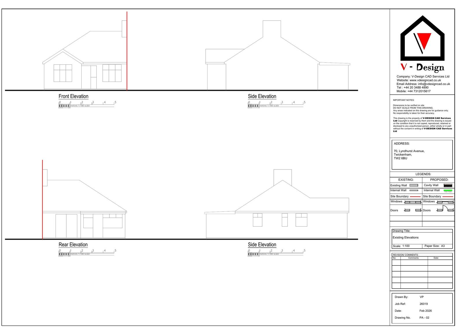
Erection of single storey rear extension 6m in depth, 3.14m in height and 2.54m in height to eaves.

Documents

Application Form - Redacted
Archived · Original link
Submitted Drawing
Archived · Original link
Submitted Drawing
Archived · Original link

Have your say

Your comment matters. Councils must consider every representation that raises material planning considerations.

Write a comment