← London Borough of Richmond upon Thames
PA26/0629
London Borough of Richmond upon Thames
Status
Pending Consideration
House extension
Received
Last month
New homes
0
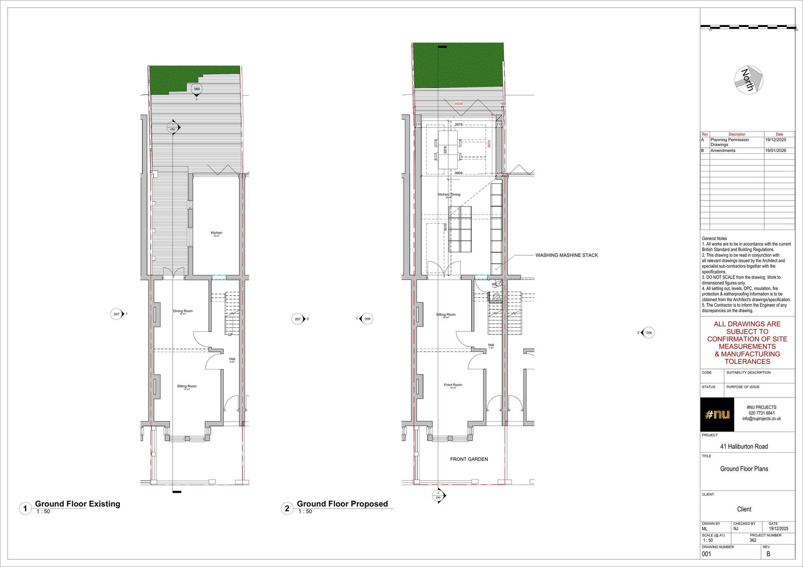
Full proposal
Erection of single-storey rear and side extension with a low level L shaped sloped roof to follow the original eves height and flat form main roof with skylights and glazed panels and doors to the rear.
Documents
Submitted Drawing
Archived
· Original link
Submitted Drawing
Archived
· Original link
Submitted Drawing
Archived
· Original link
Have your say
Your comment matters. Councils must consider every representation that raises material planning considerations.