← London Borough of Richmond upon Thames

Status

Pending Consideration House extension
Received
Last month
New homes
0

Full proposal

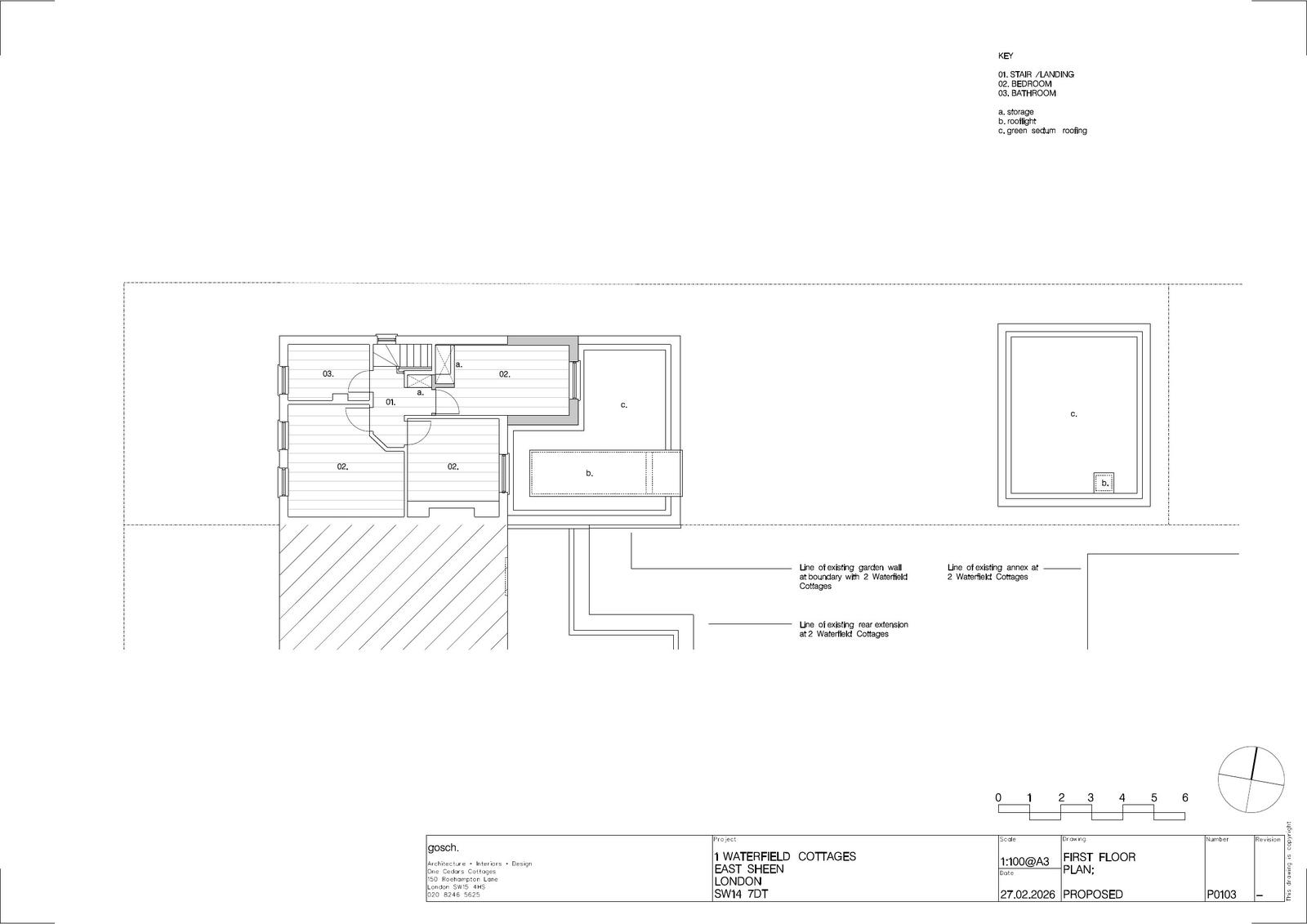
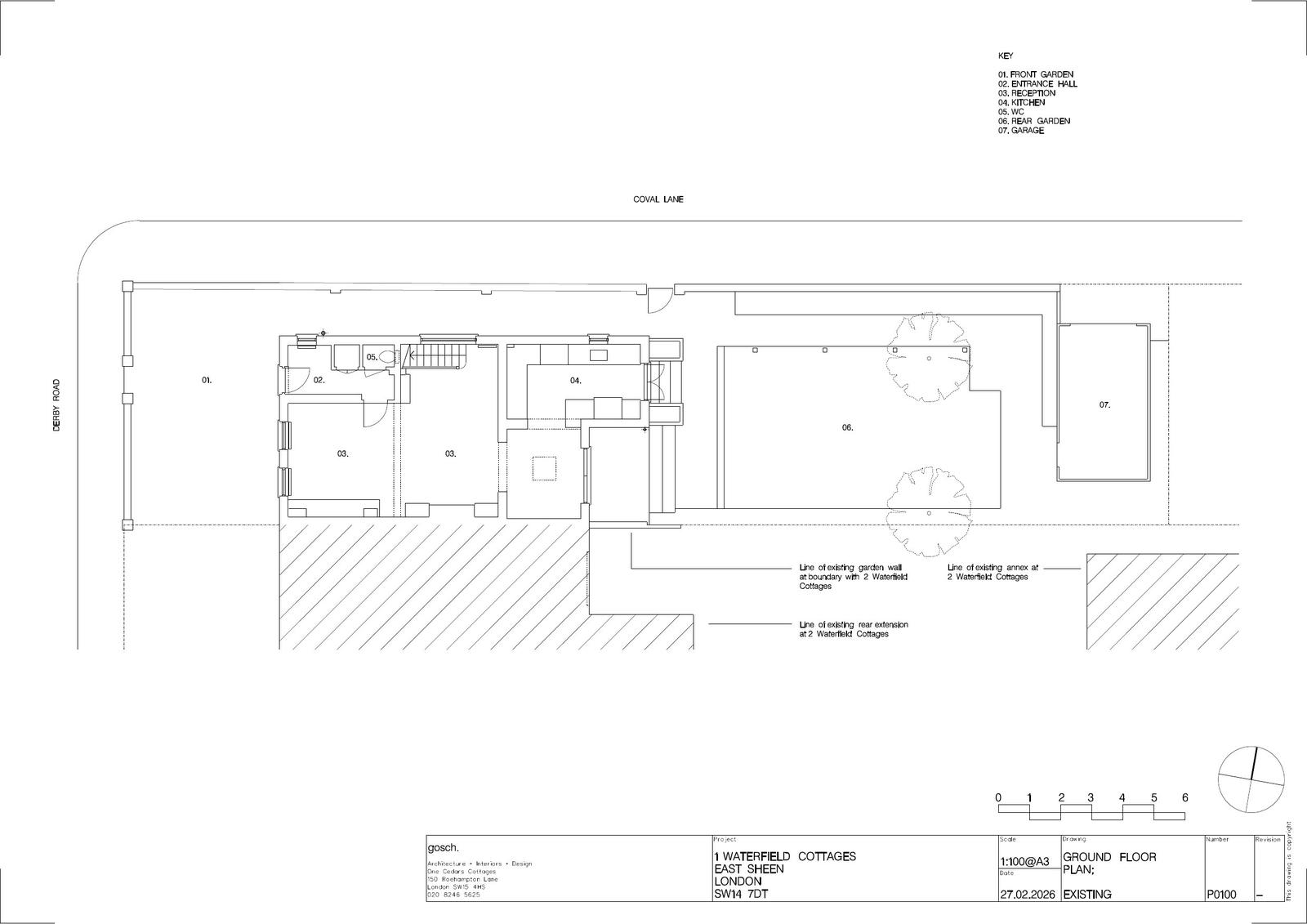
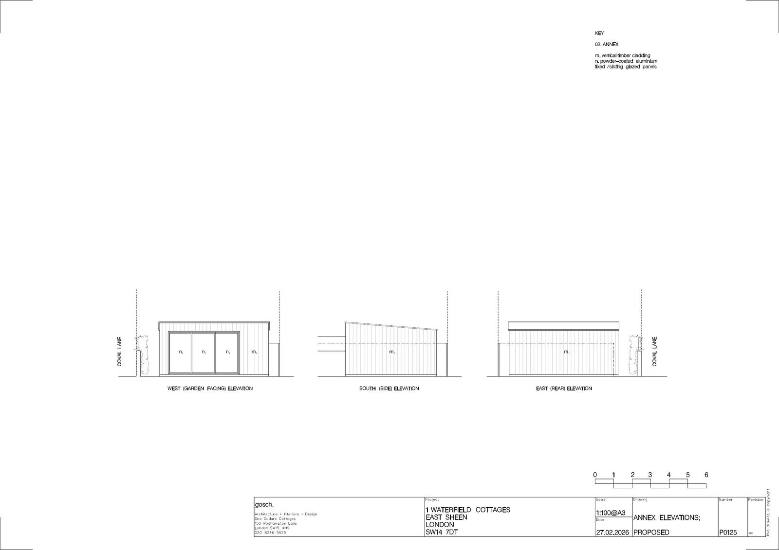
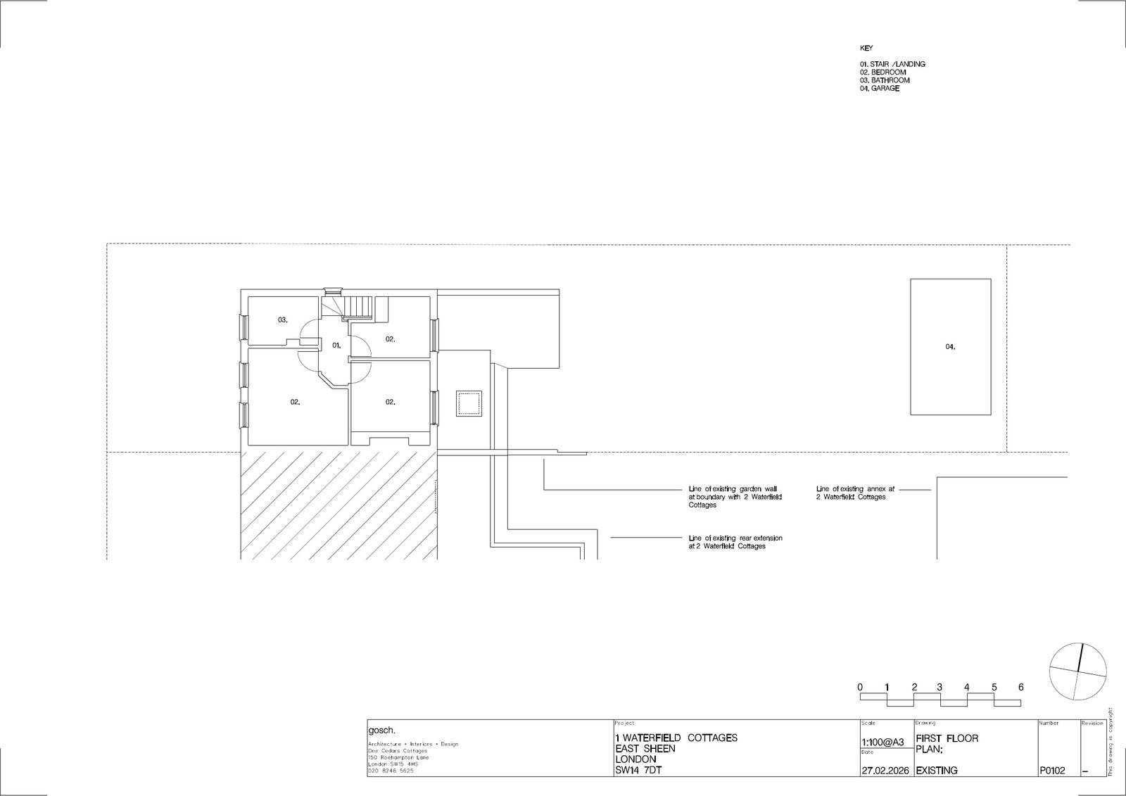
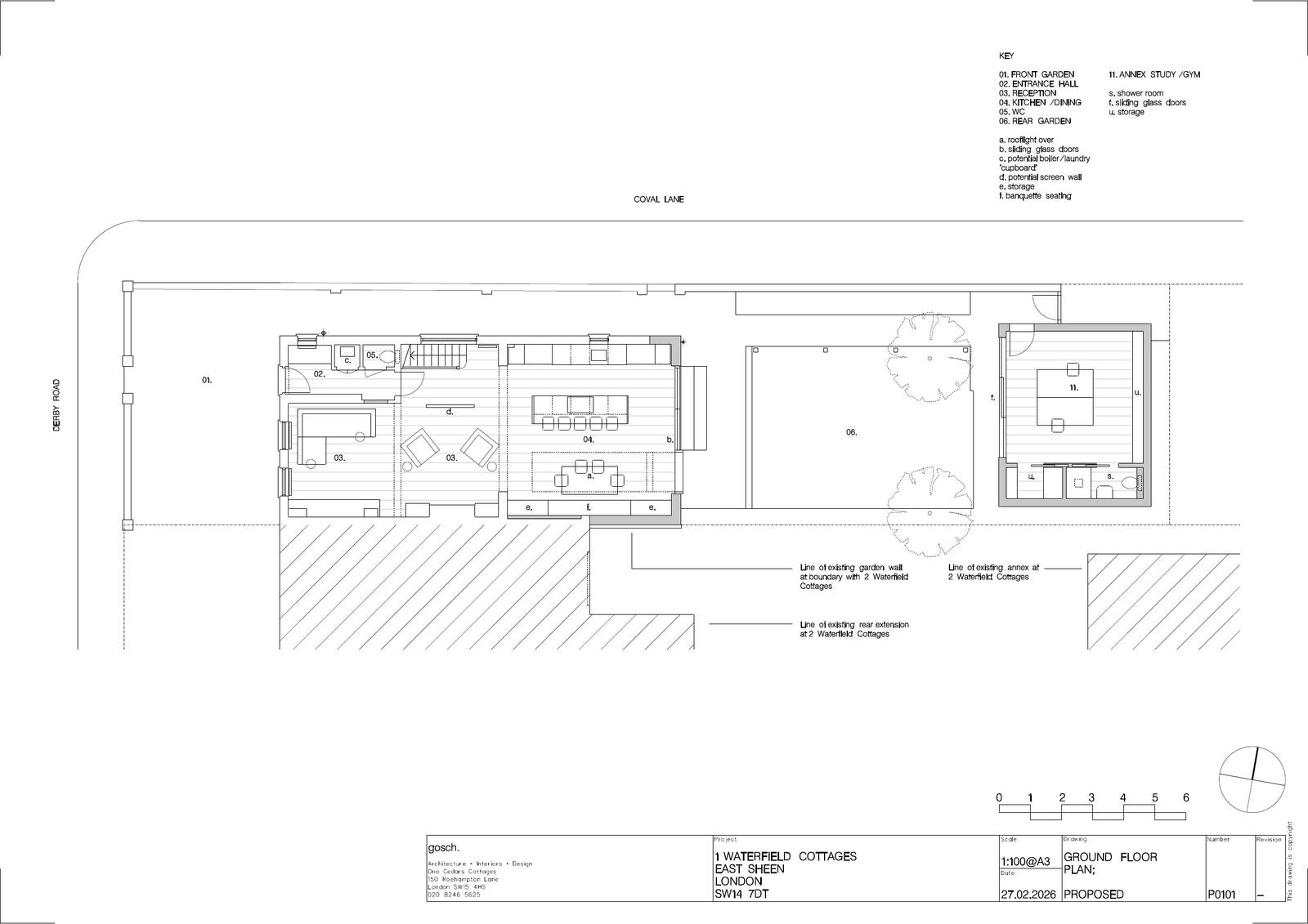
Ground floor rear extension, first floor rear extension and erection of single-storey annexe building for ancillary residential use involving demolition of existing garage

Documents

Submitted Drawing
Archived · Original link
Submitted Drawing
Archived · Original link
Submitted Drawing
Archived · Original link
Submitted Drawing
Archived · Original link
Submitted Drawing
Archived · Original link
Submitted Drawing
Archived · Original link
Report
Archived · Original link
Submitted Drawing
Archived · Original link
Submitted Drawing
Archived · Original link
Submitted Drawing
Archived · Original link
Submitted Drawing
Archived · Original link

Have your say

Your comment matters. Councils must consider every representation that raises material planning considerations.

Write a comment