← London Borough of Richmond upon Thames

Status

Pending Consideration House extension
Received
27 days ago
New homes
0

Full proposal

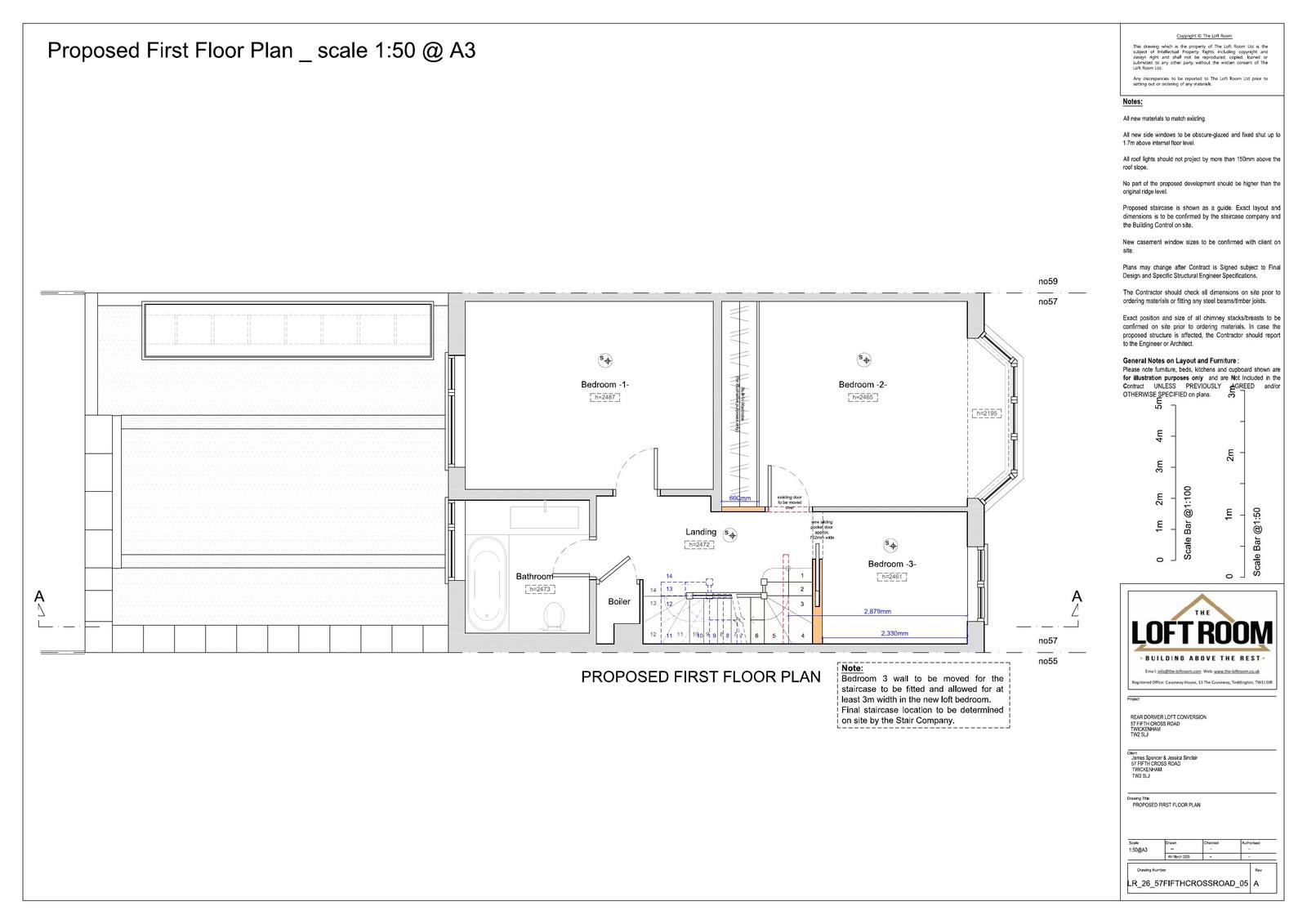
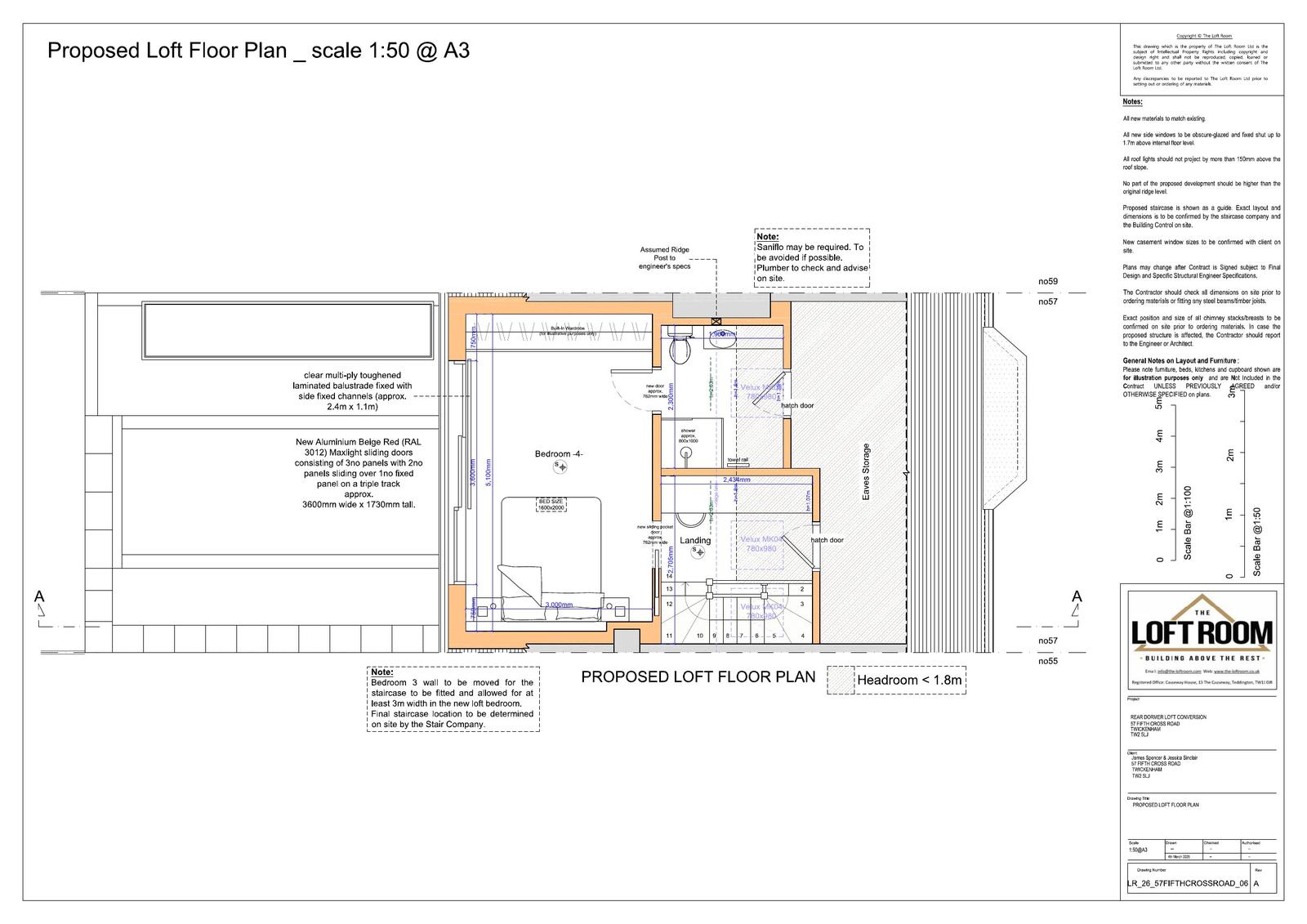
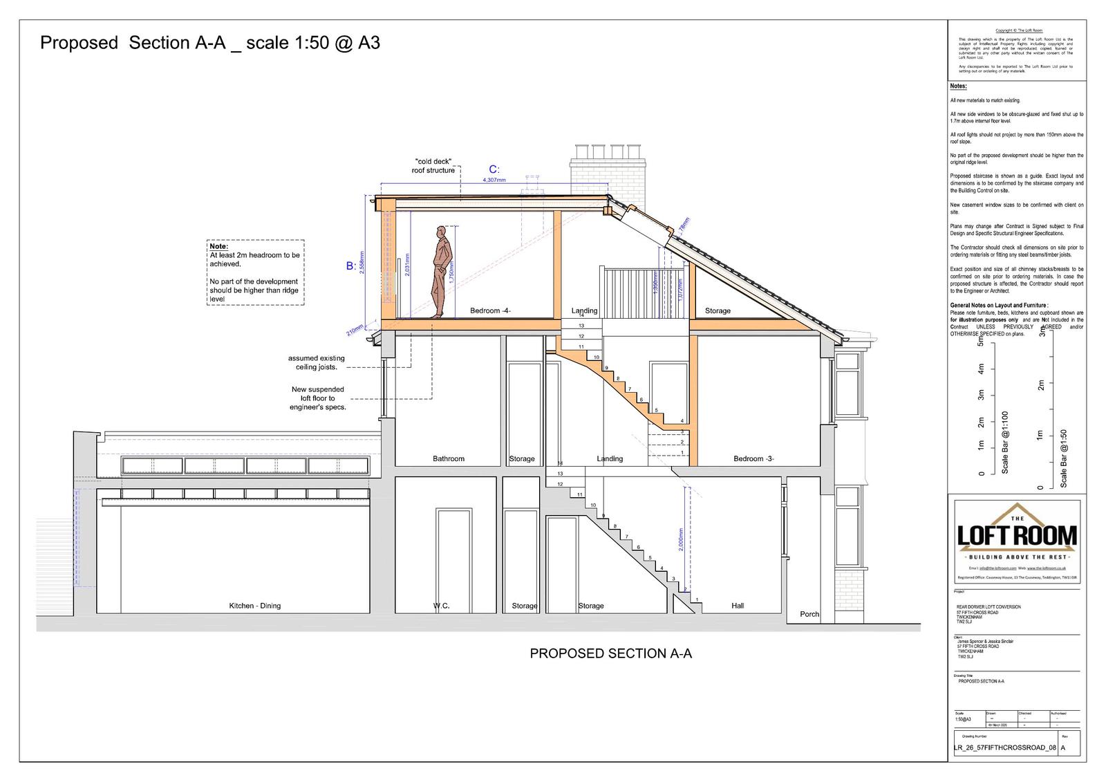
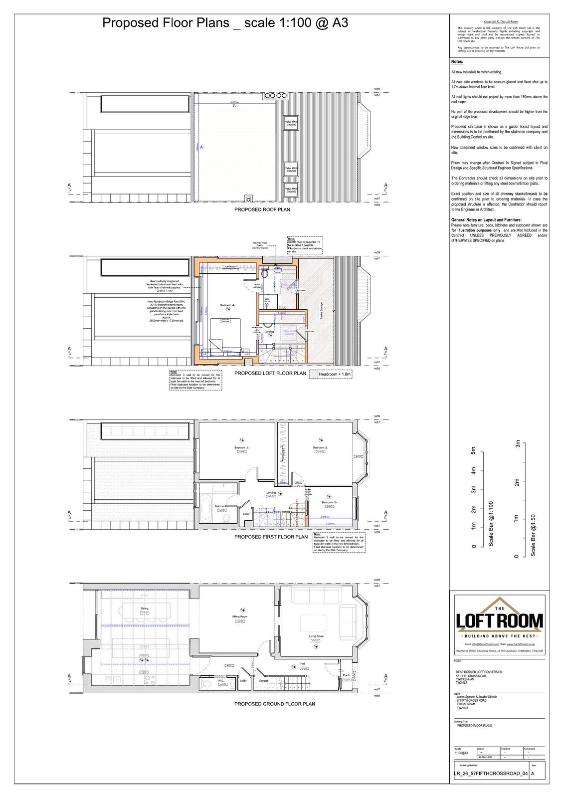
Rear dormer loft conversion and installation of 3 x roof lights on the front roof slope

Documents

Submitted Drawing
Archived · Original link
Submitted Drawing
Archived · Original link
Submitted Drawing
Archived · Original link
Submitted Drawing
Archived · Original link
Submitted Drawing
Archived · Original link
Submitted Drawing
Archived · Original link
Submitted Drawing
Archived · Original link
Submitted Drawing
Archived · Original link
Submitted Drawing
Archived · Original link

Have your say

Your comment matters. Councils must consider every representation that raises material planning considerations.

Write a comment