← Rochdale Borough Council

Status

Pending Change of use
Received
Not recorded
New homes
0

Full proposal

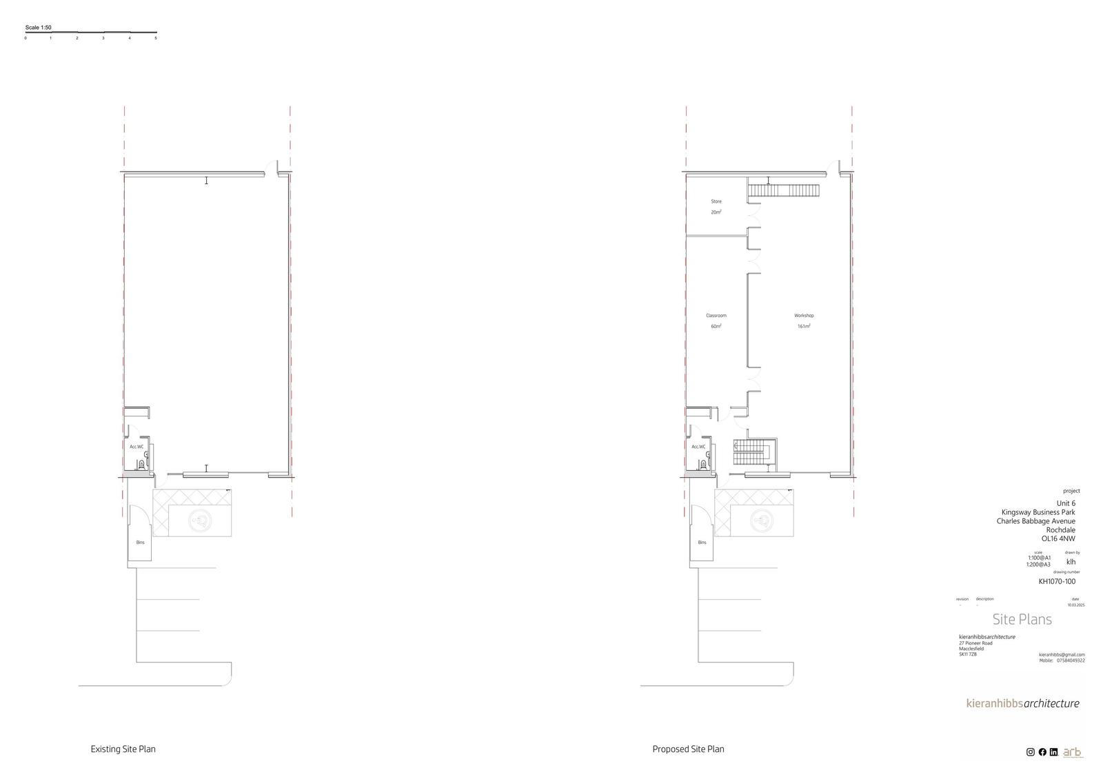
Reference 25/00264/FUL Application type Full planning permission Site address Kingsway Business Park, Logic 6 Charles Babbage Avenue Rochdale OL16 4NW Description Proposed change of use from industrial warehouse unit to construction training academy (F1a) Status Decision Made Decision Approve with Conditions

Documents

Uncategorised
Archived · Original link
Uncategorised
Archived · Original link
Download (HTML, 49.41KB)
Uncategorised
Not yet archived · Original link
Download (HTML, 55.34KB)
Uncategorised
Not yet archived · Original link
Download (HTML, 69.85KB)
Uncategorised
Not yet archived · Original link
Uncategorised
Archived · Original link
Uncategorised
Archived · Original link
Uncategorised
Archived · Original link
Uncategorised
Archived · Original link
Uncategorised
Archived · Original link
Uncategorised
Archived · Original link
Uncategorised
Archived · Original link
Uncategorised
Archived · Original link
Uncategorised
Archived · Original link
Uncategorised
Archived · Original link
Uncategorised
Archived · Original link
Uncategorised
Archived · Original link
Uncategorised
Archived · Original link

Have your say

Your comment matters. Councils must consider every representation that raises material planning considerations.

Write a comment