← Rochdale Borough Council

Status

Pending House extension
Received
Not recorded
New homes
0

Full proposal

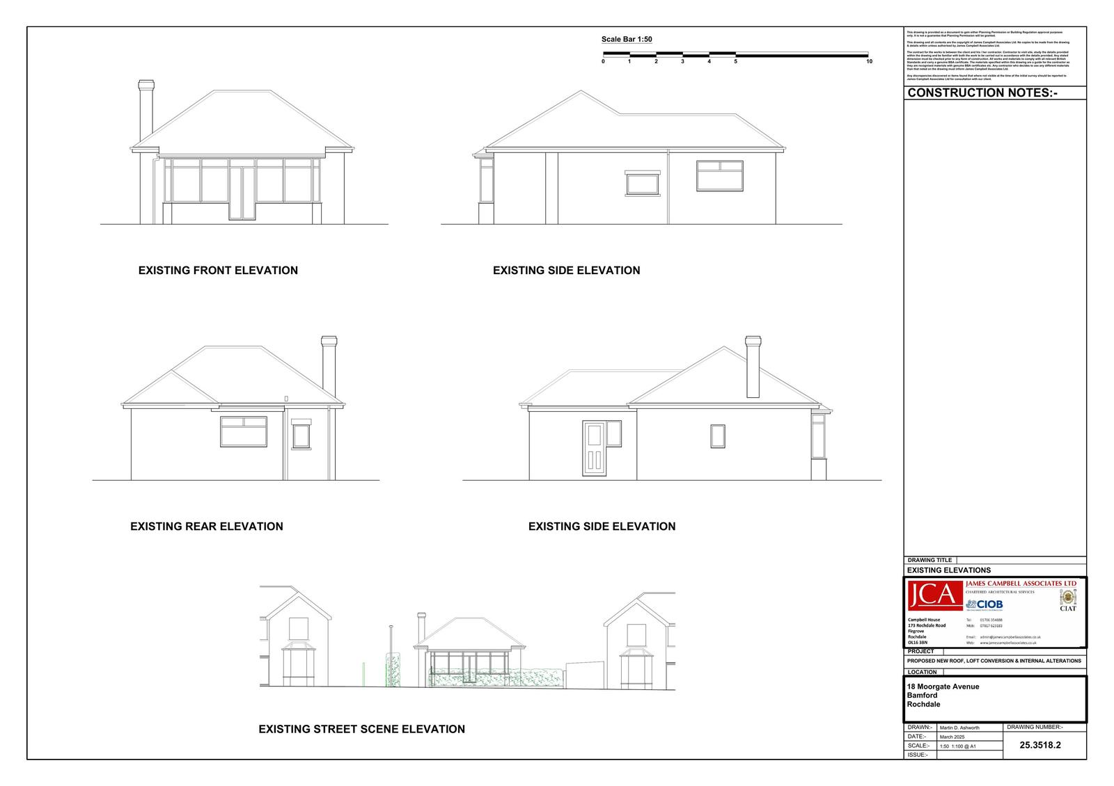
Reference 25/00310/HOUS Application type Householder planning permission Site address 18 Moorgate Avenue Rochdale OL11 5JY Description Front porch extension, increase to ridge height to create loft conversion, including roof lights and alteration to fenestration Status Decision Made Decision Approve with Conditions

Documents

Uncategorised
Archived · Original link
Uncategorised
Archived · Original link
Uncategorised
Archived · Original link
Uncategorised
Archived · Original link
Uncategorised
Archived · Original link
Uncategorised
Archived · Original link
Uncategorised
Archived · Original link
Uncategorised
Archived · Original link
Uncategorised
Archived · Original link
Uncategorised
Archived · Original link
Uncategorised
Archived · Original link

Have your say

Your comment matters. Councils must consider every representation that raises material planning considerations.

Write a comment