← Rochdale Borough Council

Status

Pending Change of use
Received
Not recorded
New homes
10

Full proposal

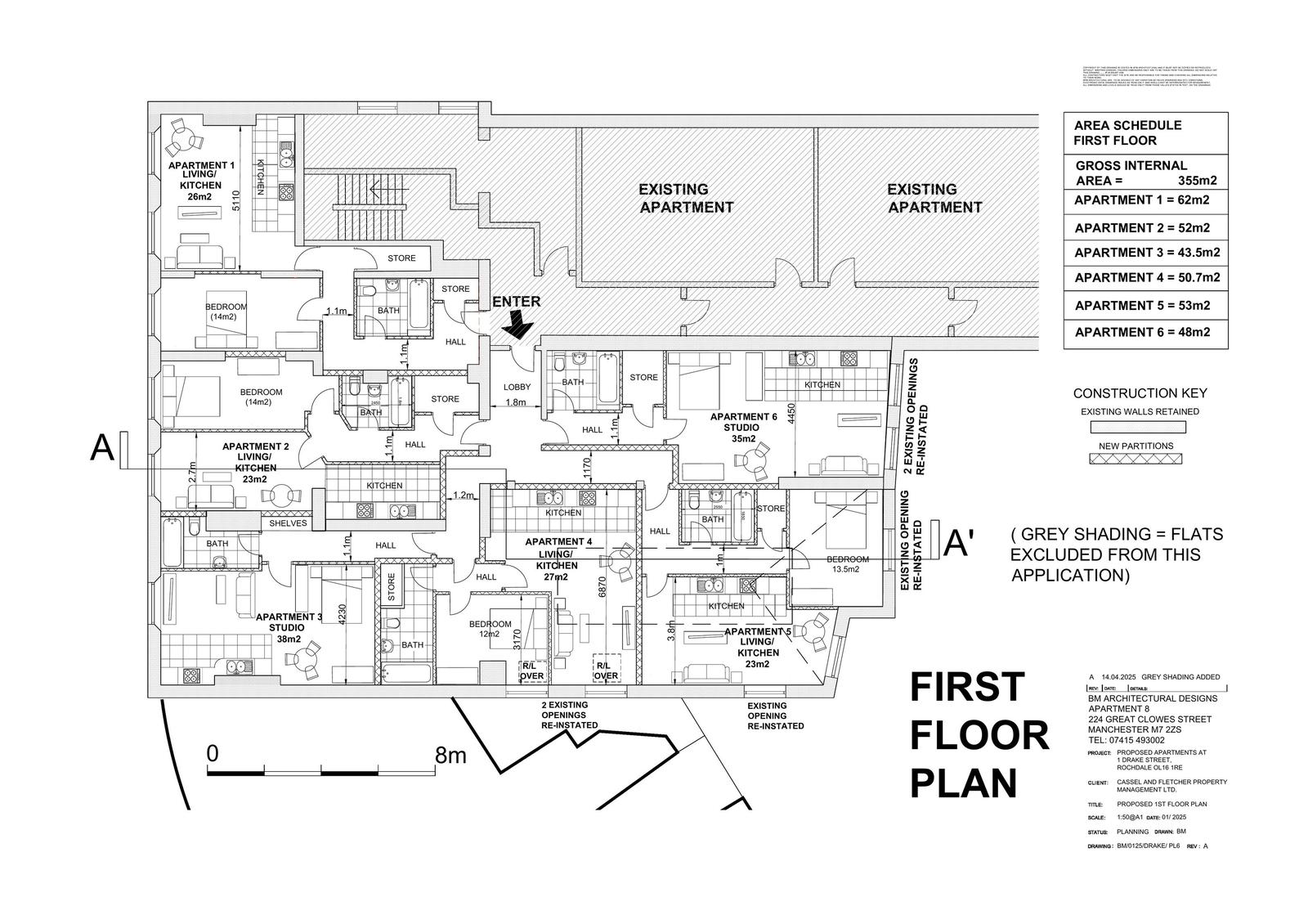
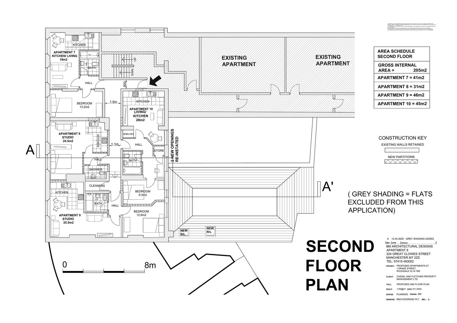
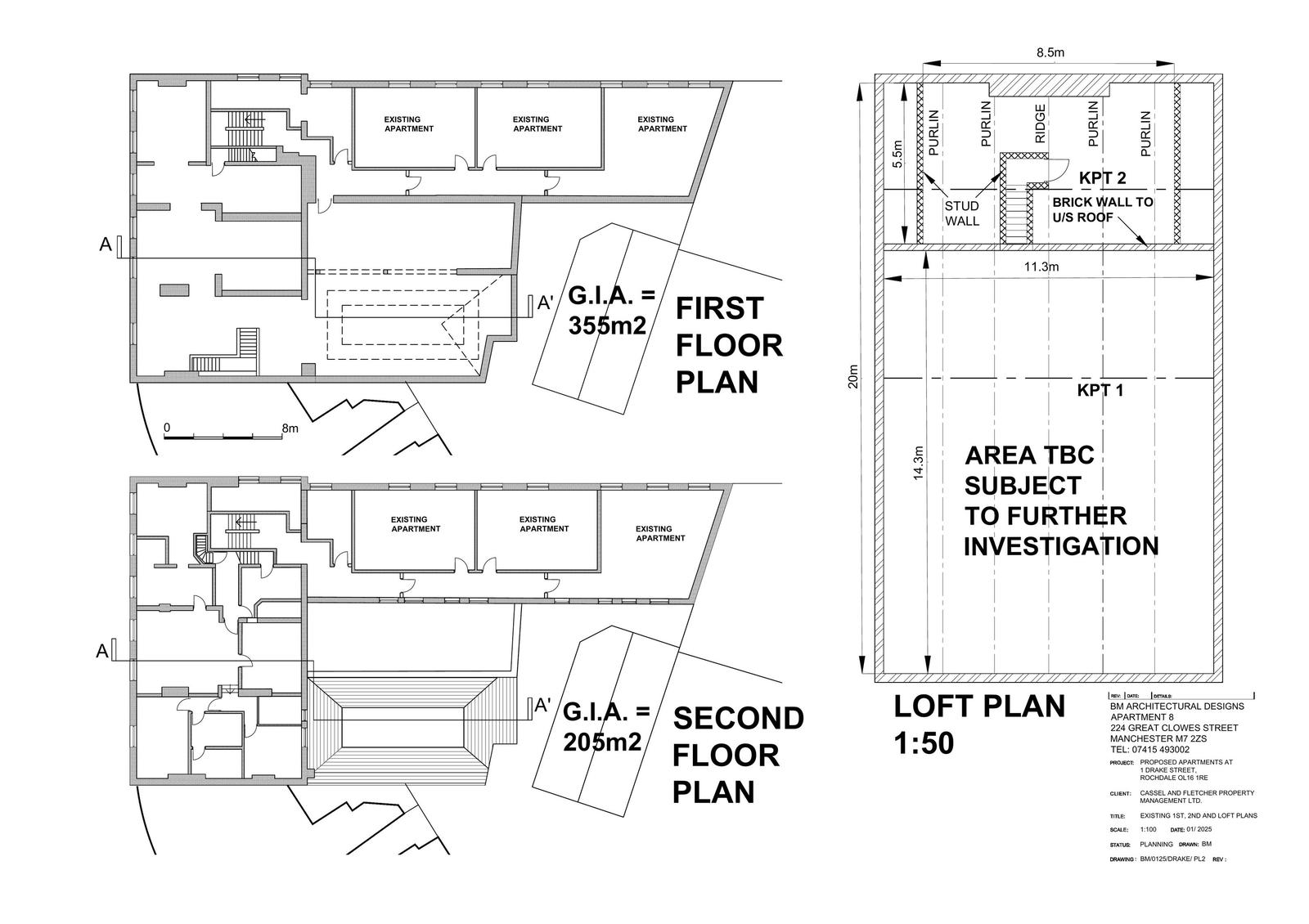
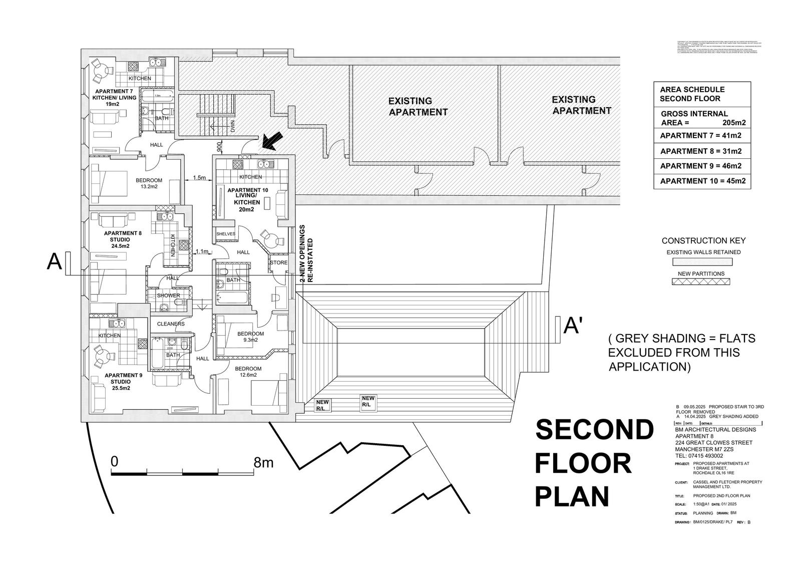
Reference 25/00314/FUL Application type Full planning permission Site address 1 Drake Street Rochdale OL16 1RE Description Change of use of first and second floors from vacant commercial floorspace to 10no. residential apartments (use class C3) and external alterations including new window openings and associated ground floor cycle storage and external bin storage Status Decision Made Decision Approve with Conditions

Documents

Uncategorised
Archived · Original link
Uncategorised
Archived · Original link
Uncategorised
Archived · Original link
Uncategorised
Archived · Original link
Uncategorised
Archived · Original link
Uncategorised
Archived · Original link
Uncategorised
Archived · Original link
Uncategorised
Archived · Original link
Uncategorised
Archived · Original link
Uncategorised
Archived · Original link
Uncategorised
Archived · Original link
Uncategorised
Archived · Original link
Uncategorised
Archived · Original link
Uncategorised
Archived · Original link
Uncategorised
Archived · Original link
Uncategorised
Archived · Original link
Uncategorised
Archived · Original link
Uncategorised
Archived · Original link
Uncategorised
Archived · Original link
Uncategorised
Archived · Original link

Have your say

Your comment matters. Councils must consider every representation that raises material planning considerations.

Write a comment