25/00348/HOUS
Rochdale Borough Council
Status
Pending
House extension
Received
Not recorded
New homes
0
Full proposal
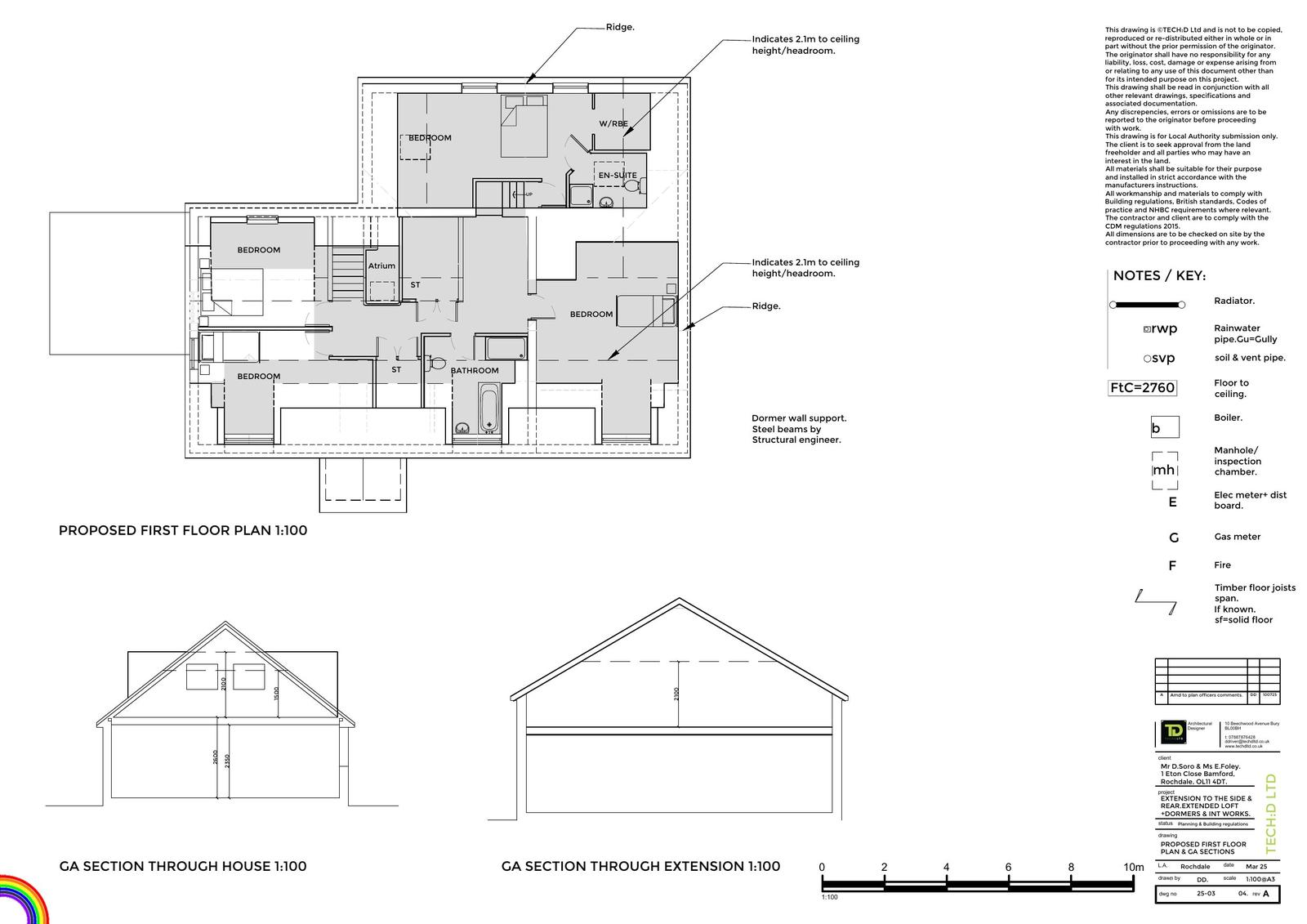
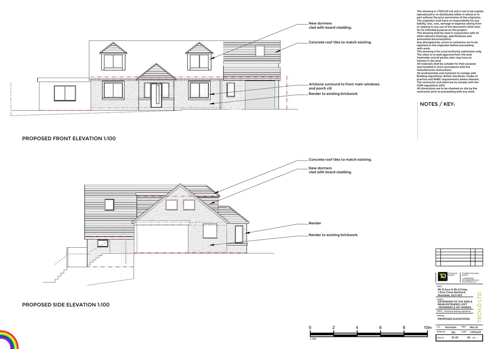
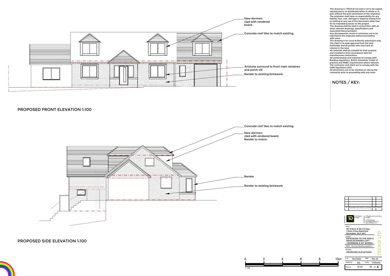
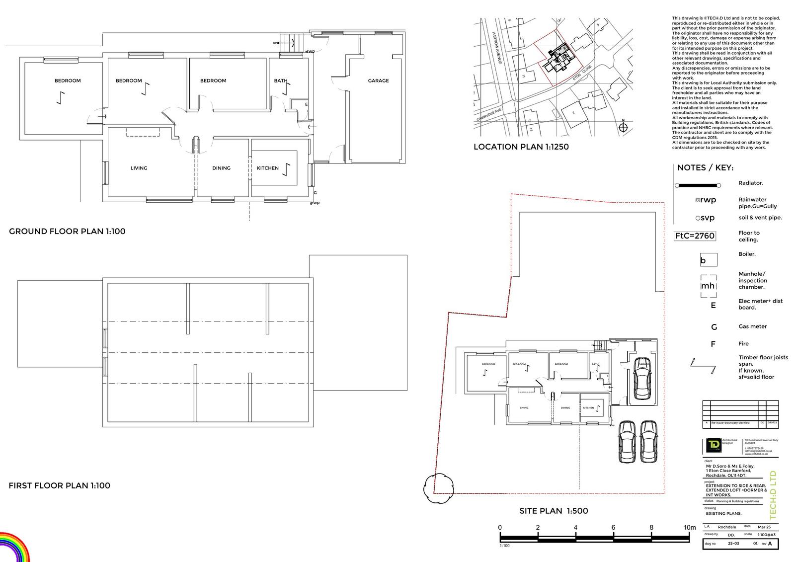
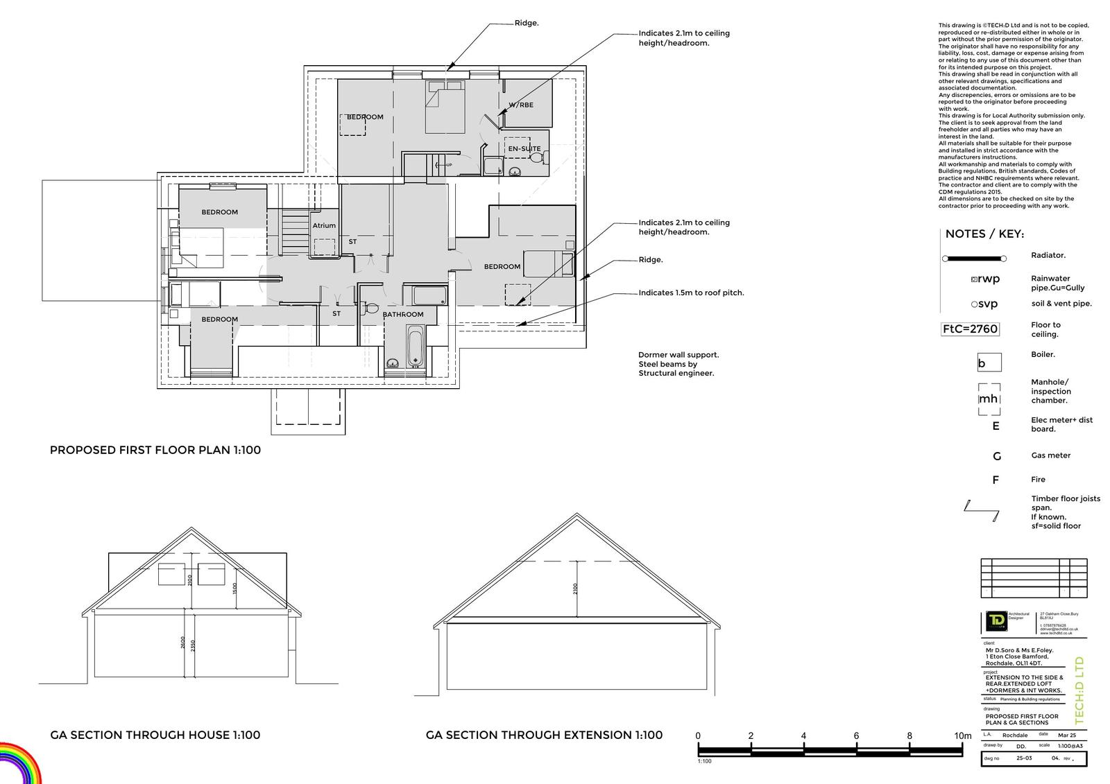
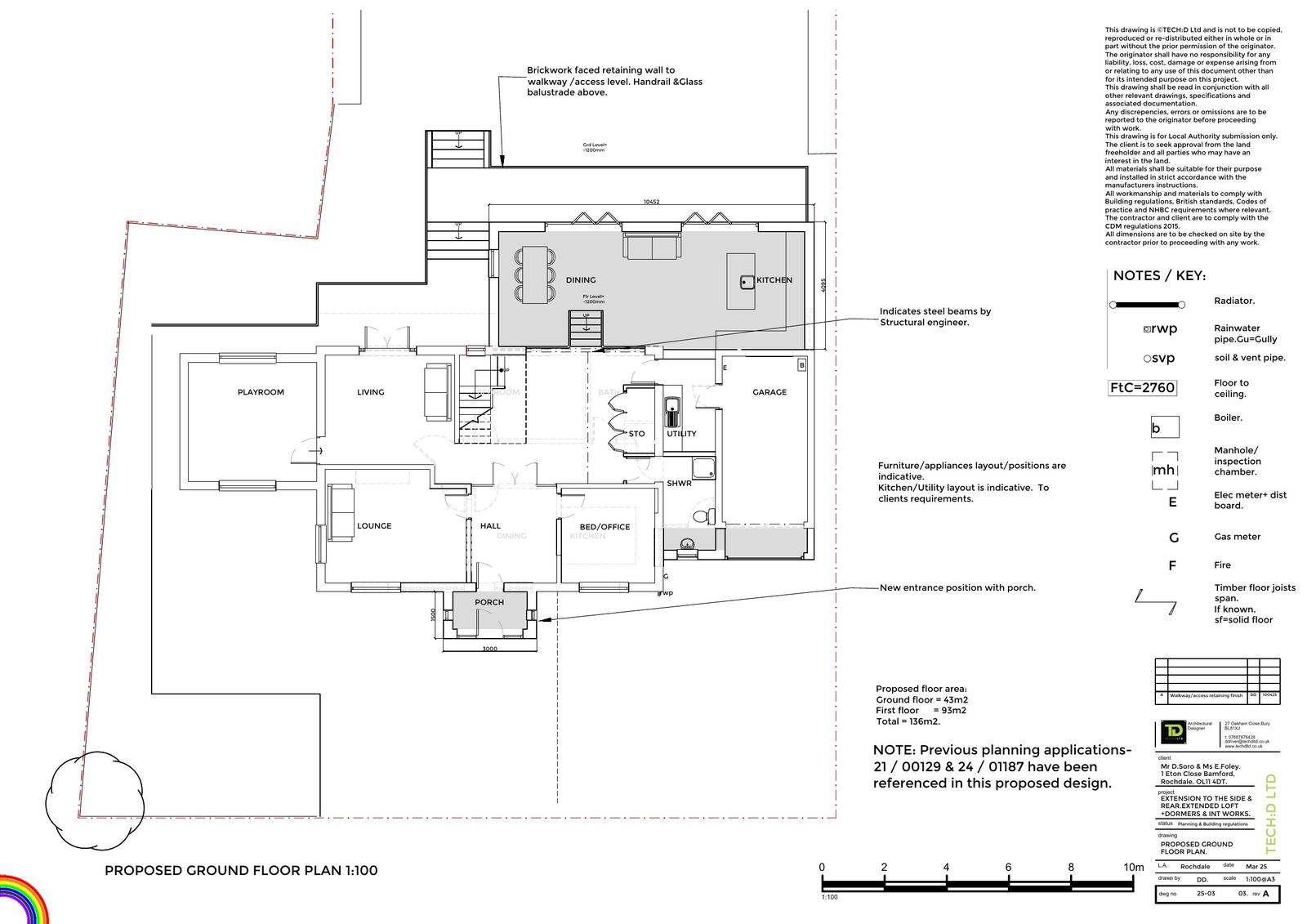
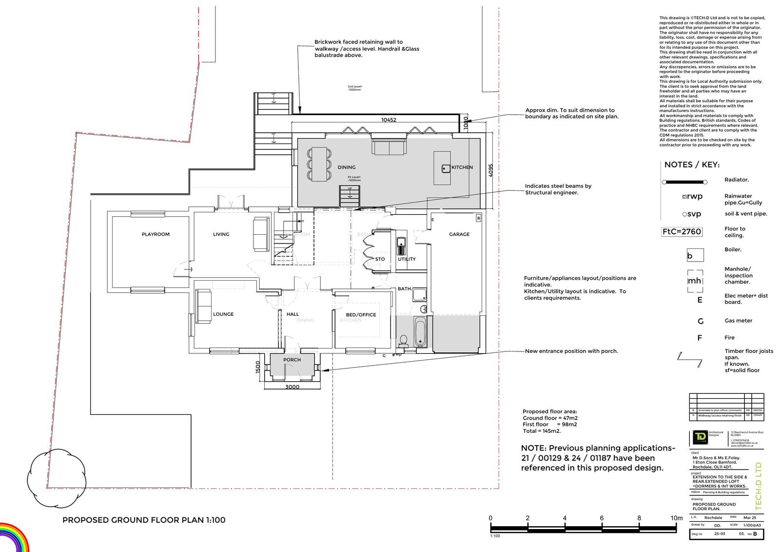
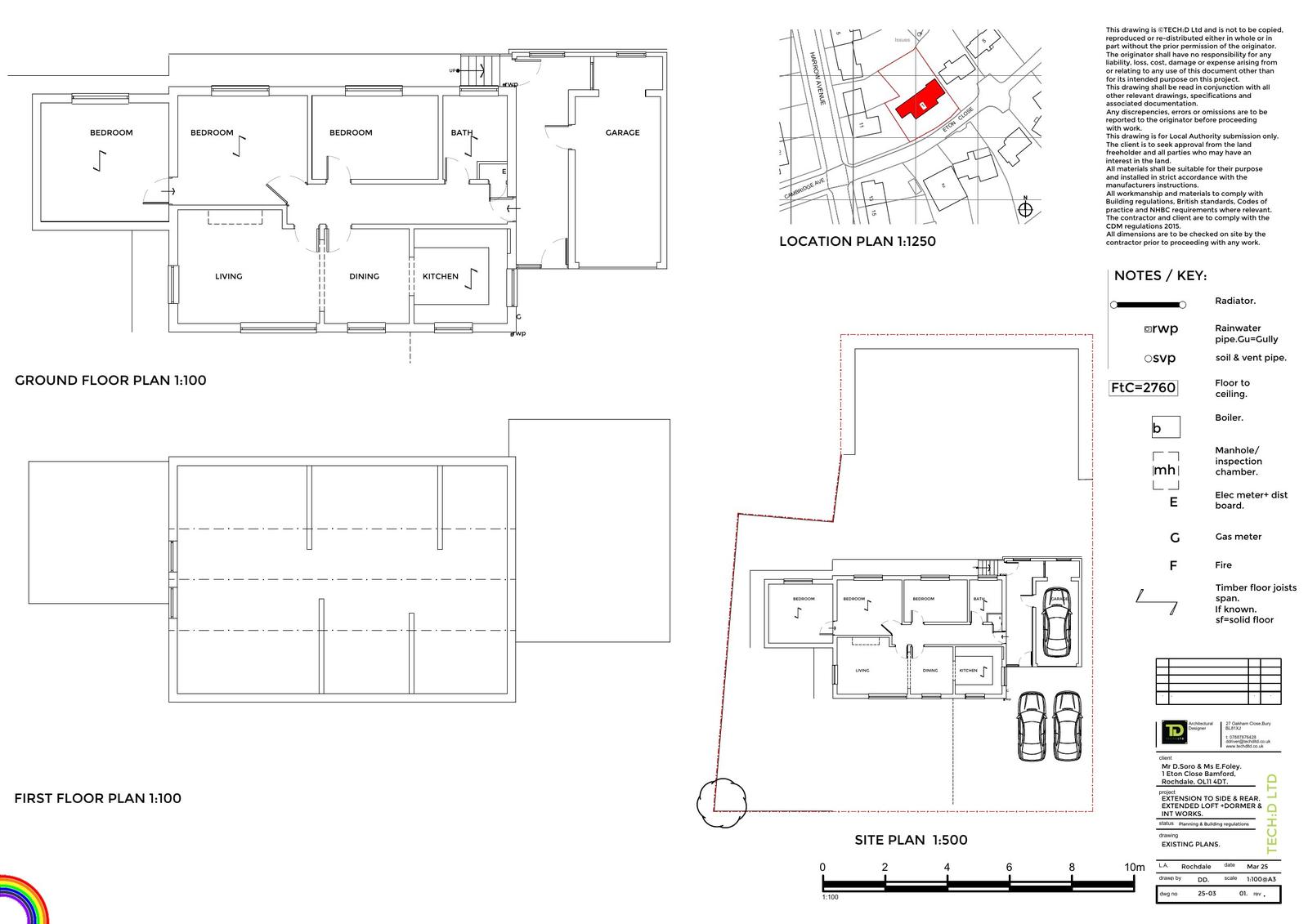
Reference 25/00348/HOUS Application type Householder planning permission Site address 1 Eton Close Rochdale OL11 4DT Description Two-storey rear, part two storey part first floor side extension, front and rear dormers, single-storey front extension, pitched roof to existing single storey side extension, alterations to fenestration, application of render to front and side elevations, raised platform including glass balustrade to rear following excavation of land Status Decision Made Decision Approve with Conditions
Documents
Have your say
Your comment matters. Councils must consider every representation that raises material planning considerations.