← Rochdale Borough Council

Status

Pending New housing
Received
Not recorded
New homes
2

Full proposal

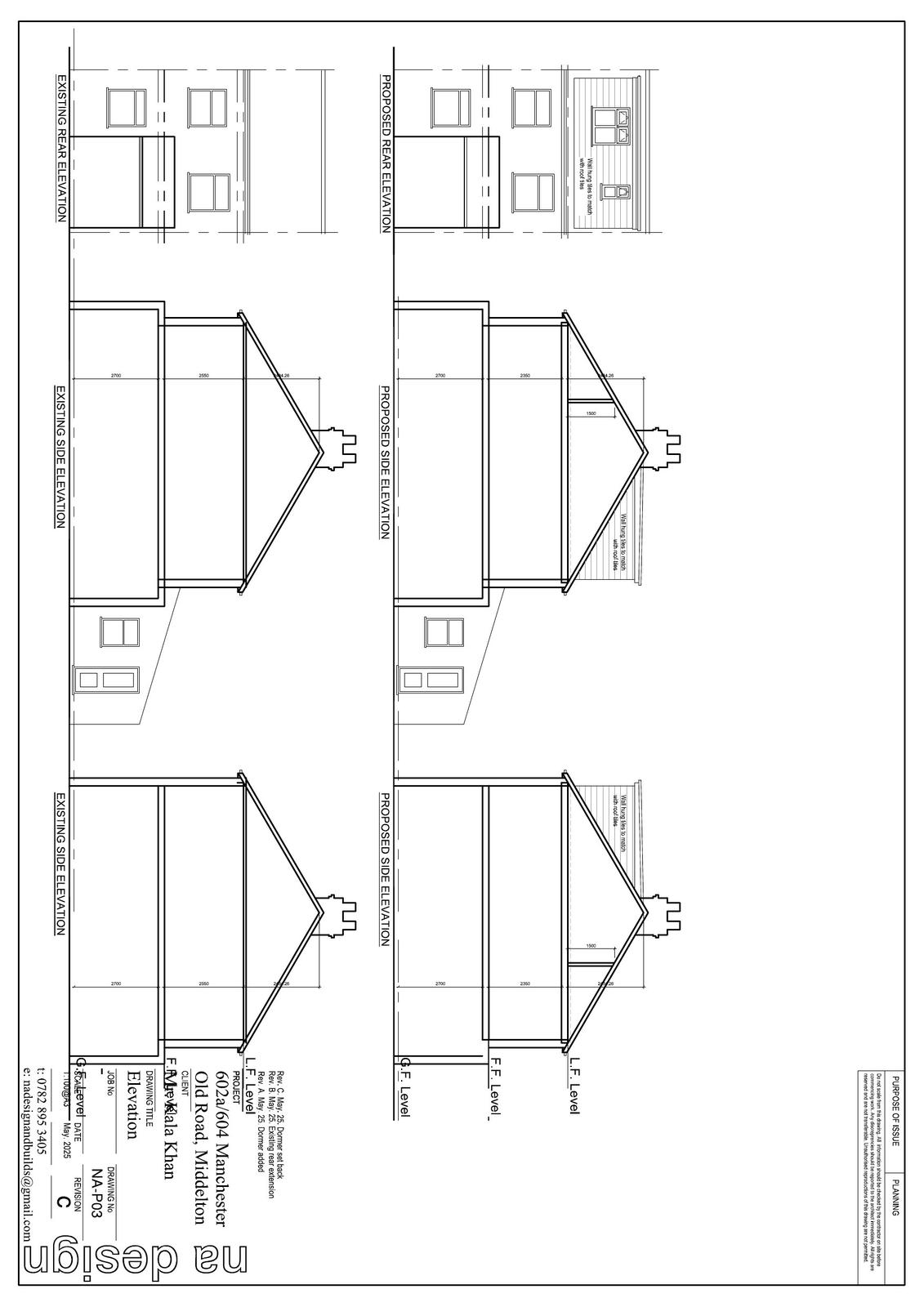
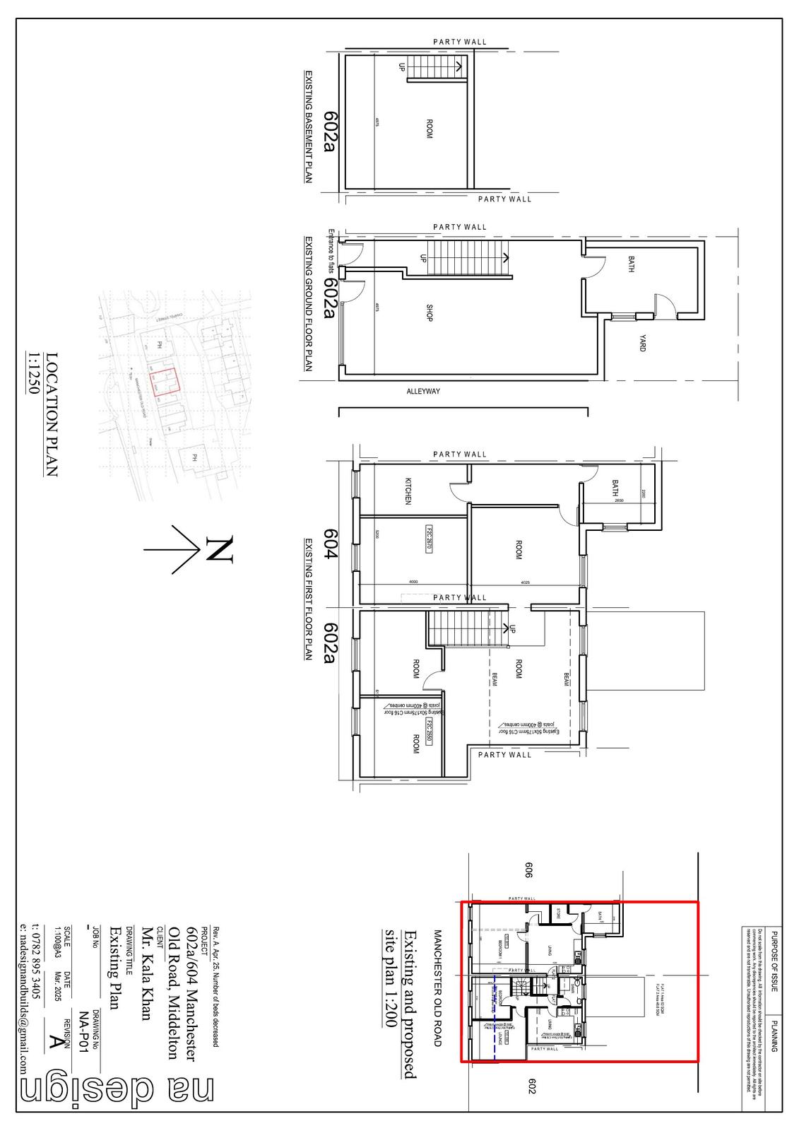
Reference 25/00349/FUL Application type Full planning permission Site address 602A And 604 Manchester Old Road Middleton M24 4PW Description Subdivision of existing first floor residential accommodation to provide 1 no. 1-bed flat on the first floor and 1 no. 2-bed flat on the first and second floors including the construction of a rear dormer Status Decision Made Decision Approve with Conditions

Documents

Uncategorised
Archived · Original link
Uncategorised
Archived · Original link
Uncategorised
Archived · Original link
Uncategorised
Archived · Original link
Uncategorised
Archived · Original link
Uncategorised
Archived · Original link
Uncategorised
Archived · Original link
Uncategorised
Archived · Original link
Uncategorised
Archived · Original link

Have your say

Your comment matters. Councils must consider every representation that raises material planning considerations.

Write a comment