← Rochdale Borough Council

Status

Pending New housing
Received
Not recorded
New homes
28

Full proposal

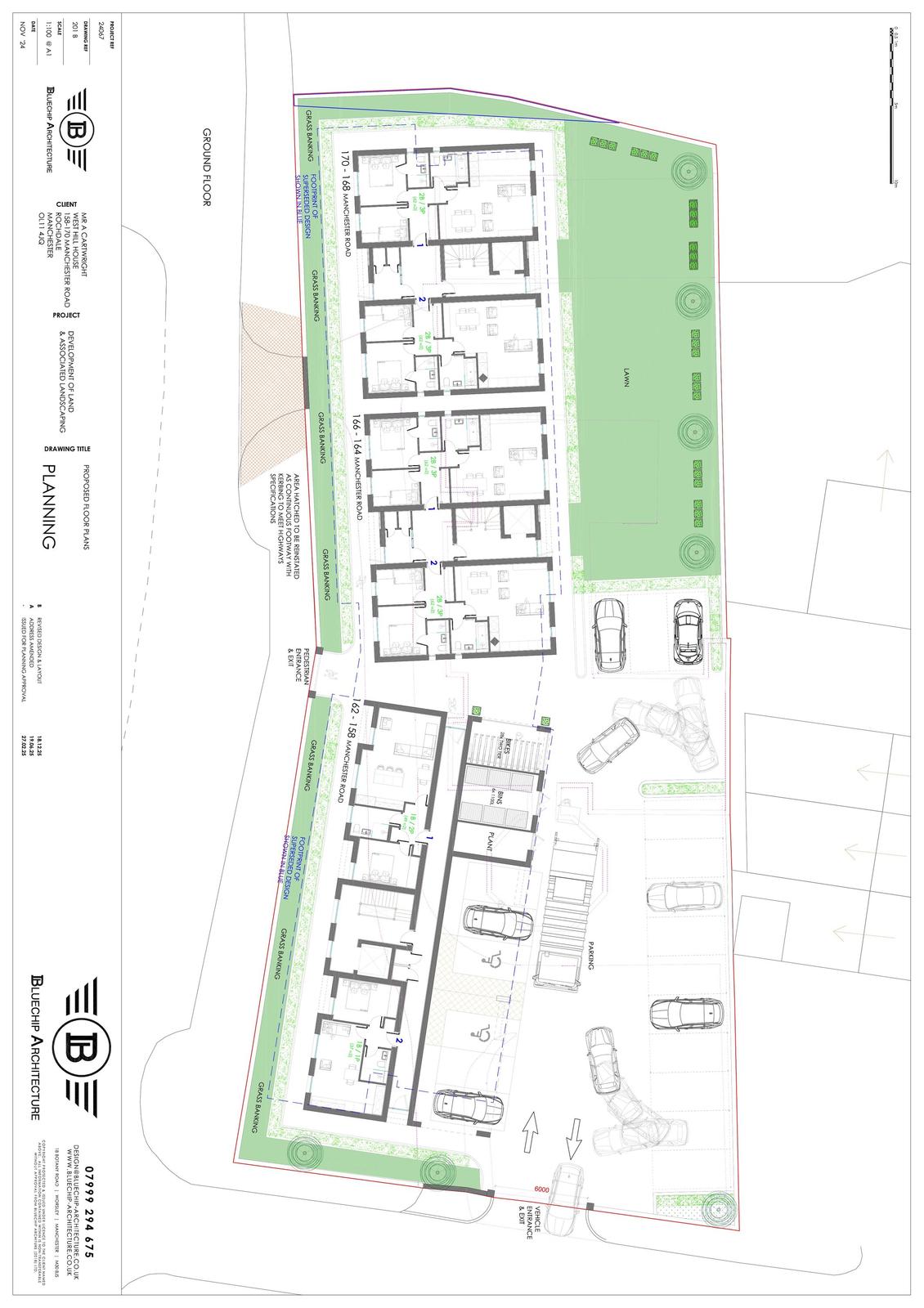
Reference 25/00353/FUL Application type Full planning permission Site address Cope Funeral Services Ltd West Hill House 158-170 Manchester Road Rochdale OL11 4JQ Description Demolition of existing funeral home and detached garages and the erection of 28 self-contained apartments over 3 floors with concierge entrance, staff facilities and residents gym, including associated landscaping and on-site parking (18 Cars), bike storage and bin storage, new vehicular entrance from Castle Avenue, closure of the vehicular entrance from Manchester Road and new pedestrian entrance from Manchester Road. Status Under Consultation Decision

Documents

Uncategorised
Archived · Original link
Uncategorised
Archived · Original link
Uncategorised
Archived · Original link
Uncategorised
Archived · Original link
Uncategorised
Archived · Original link
Uncategorised
Archived · Original link
Uncategorised
Archived · Original link
Uncategorised
Archived · Original link
Uncategorised
Archived · Original link
Uncategorised
Archived · Original link
Uncategorised
Archived · Original link
Uncategorised
Archived · Original link
Uncategorised
Archived · Original link
Uncategorised
Archived · Original link
Uncategorised
Archived · Original link
Uncategorised
Archived · Original link
Uncategorised
Archived · Original link
Uncategorised
Archived · Original link
Uncategorised
Archived · Original link
Uncategorised
Archived · Original link

Have your say

Your comment matters. Councils must consider every representation that raises material planning considerations.

Write a comment