← Rochdale Borough Council

Status

Pending Change of use
Received
Not recorded
New homes
2

Full proposal

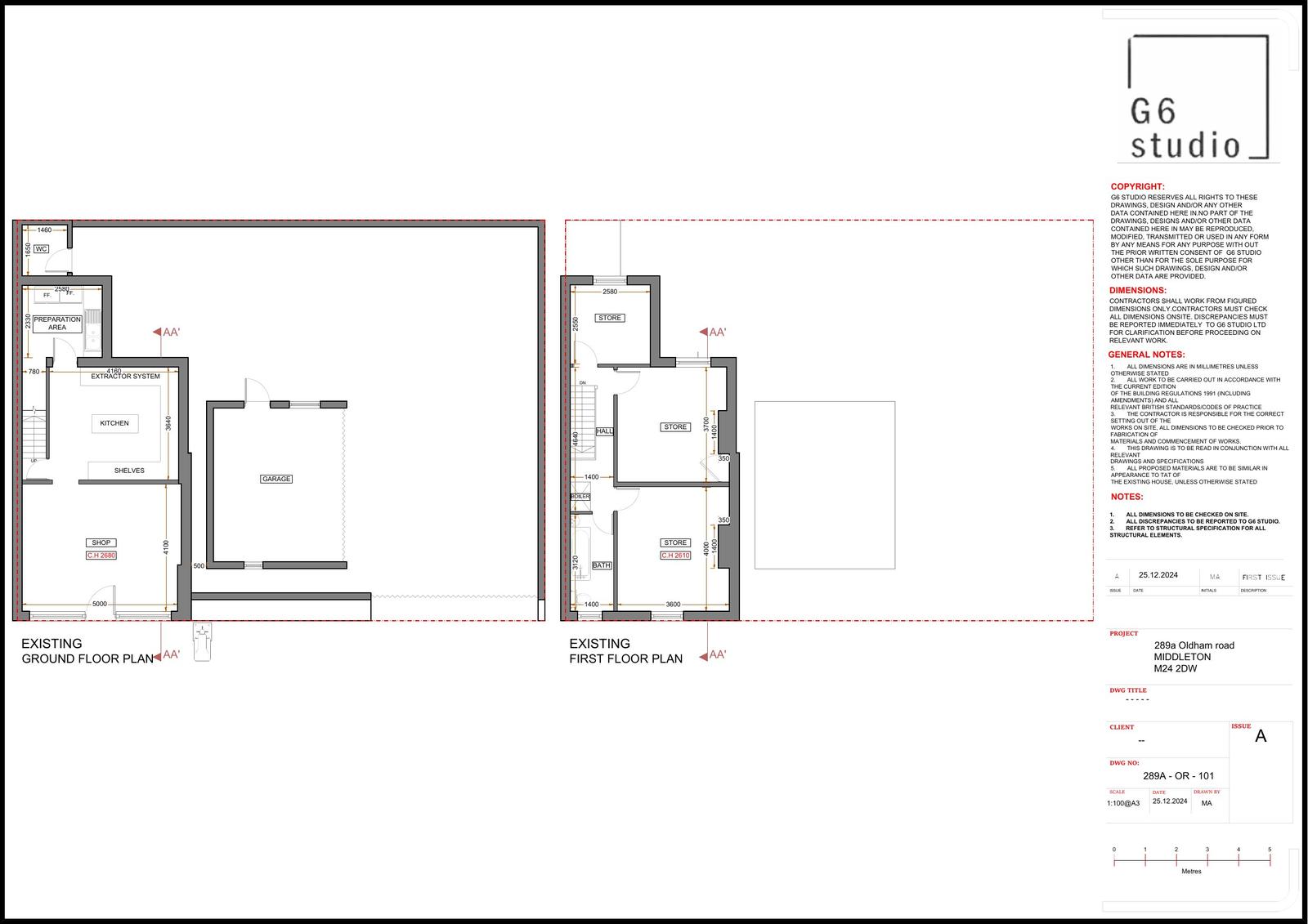
Reference 25/00356/FUL Application type Full planning permission Site address 289A Oldham Road Middleton Rochdale M24 2DW Description Change of use from one hot food takeaway to mixed use of a hot food takeaway at ground floor (Sui Generis), a retail unit (E) and self-contained flat (C3) at first floor and a self-contained flat (C3) at second floor including a rear dormer, roof lights, the repositioning of the extraction flue and the installation of external staircase to provide access to proposed retail unit and flats Status Decision Made Decision Refuse

Documents

Uncategorised
Archived · Original link
Uncategorised
Archived · Original link
Uncategorised
Archived · Original link
Uncategorised
Archived · Original link
Uncategorised
Archived · Original link
Uncategorised
Archived · Original link
Uncategorised
Archived · Original link
Uncategorised
Archived · Original link
Uncategorised
Archived · Original link

Have your say

Your comment matters. Councils must consider every representation that raises material planning considerations.

Write a comment