← Rochdale Borough Council

Status

Pending Change of use
Received
Not recorded
New homes
0

Full proposal

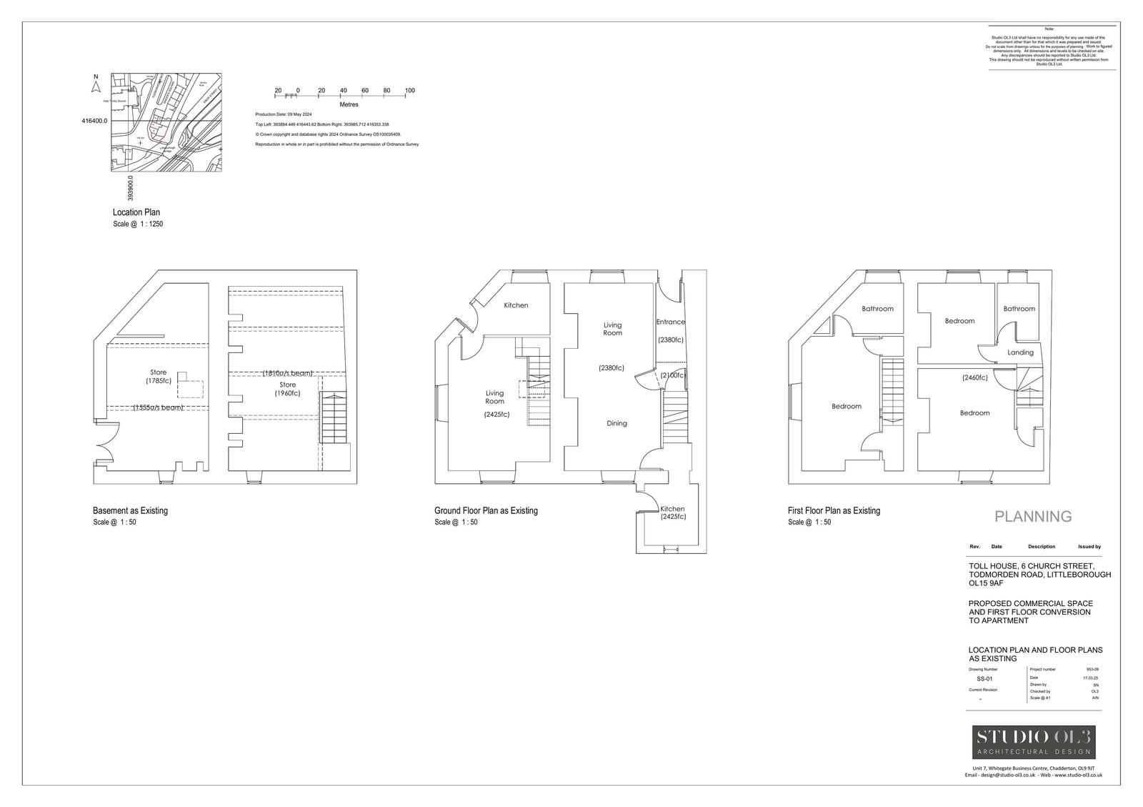
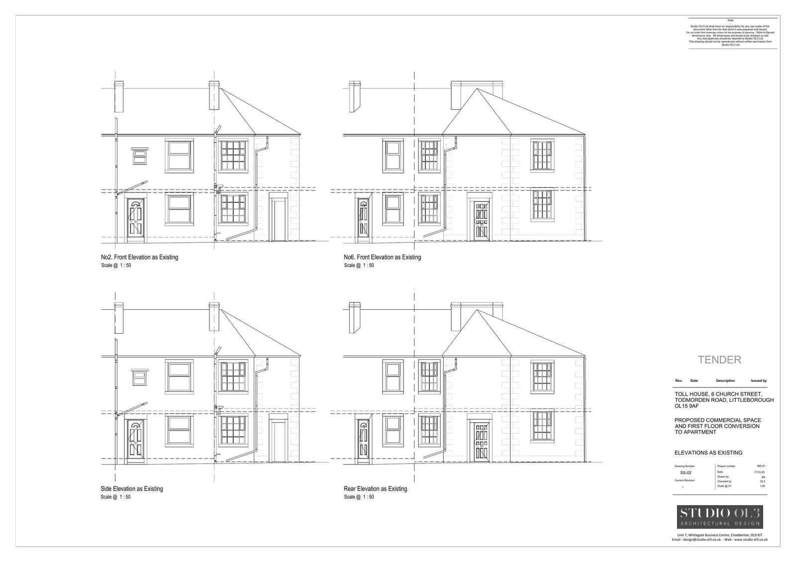
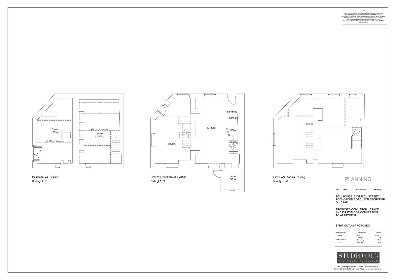
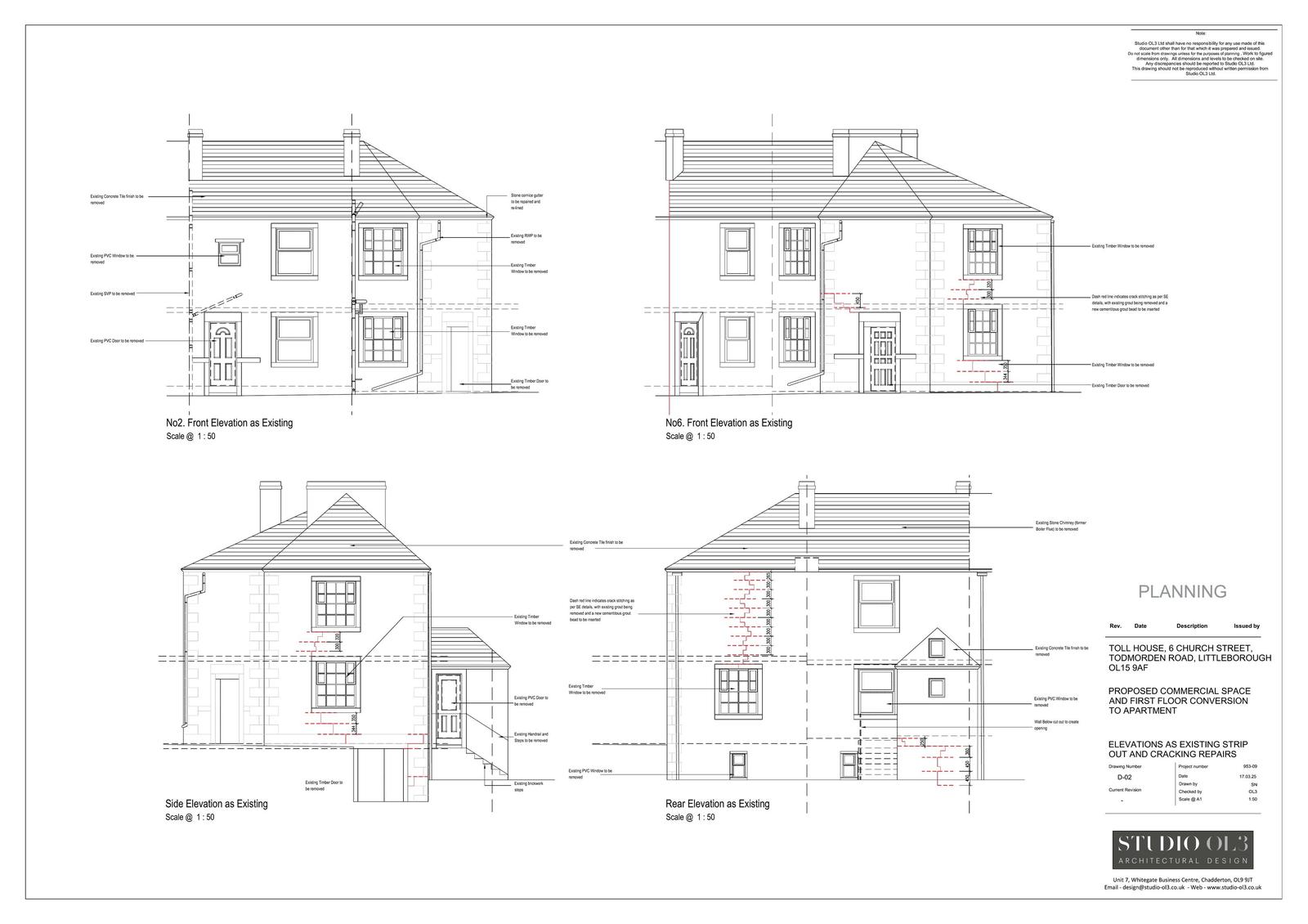
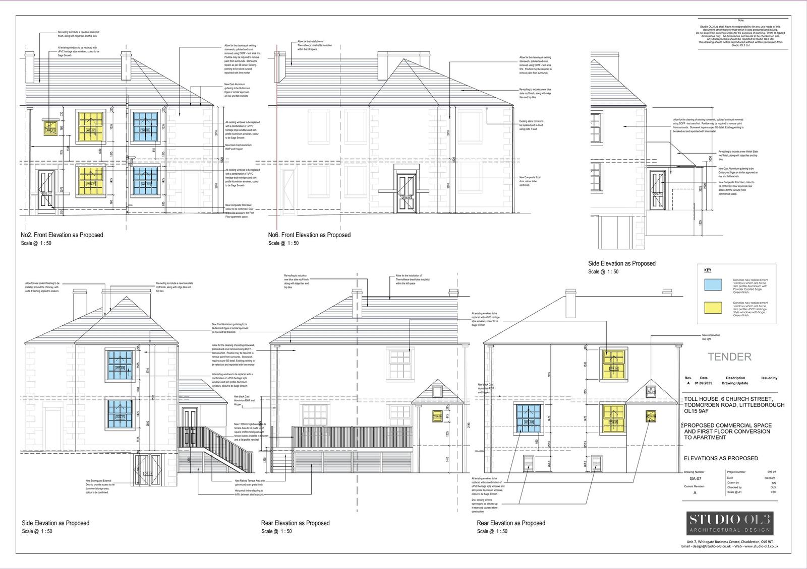
Reference 25/00363/FUL Application type Full planning permission Site address 6 Church Street  2 Todmorden Road Littleborough Rochdale OL15 9AF Description Change of use to commercial at ground floor level and self-contained flat at first floor level, together with alterations to fenestration and the erection of an external staircase and terrace Status Decision Made Decision Approve with Conditions

Documents

Uncategorised
Archived · Original link
Uncategorised
Archived · Original link
Download (HTML, 75.44KB)
Uncategorised
Not yet archived · Original link
Download (HTML, 97.09KB)
Uncategorised
Not yet archived · Original link
Uncategorised
Archived · Original link
Uncategorised
Archived · Original link
Uncategorised
Archived · Original link
Uncategorised
Archived · Original link
Uncategorised
Archived · Original link
Uncategorised
Archived · Original link
Uncategorised
Archived · Original link
Uncategorised
Archived · Original link
Uncategorised
Archived · Original link
Uncategorised
Archived · Original link
Uncategorised
Archived · Original link
Uncategorised
Archived · Original link
Uncategorised
Archived · Original link
Uncategorised
Archived · Original link
Uncategorised
Archived · Original link
Uncategorised
Archived · Original link

Have your say

Your comment matters. Councils must consider every representation that raises material planning considerations.

Write a comment