← Rochdale Borough Council

Status

Pending Commercial
Received
Not recorded
New homes
0

Full proposal

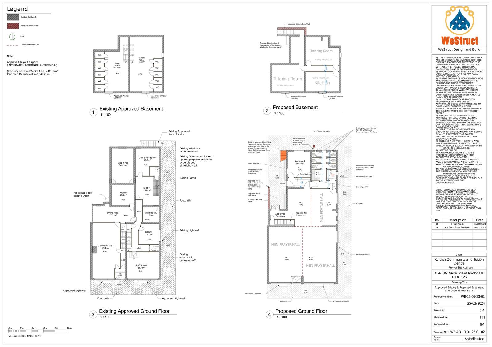
Reference 25/00412/FUL Application type Full planning permission Site address 134-136 Drake Street Rochdale OL16 1PS Description Proposed flat roof rear dormer for tuition class use. Erection of brick wall at ground floor with fire escape balcony area above. Additional fire exit stairwell at first floor, relocation of previously approved fire escape stairwell. Erection of additional side window to the ground floor, and additional rear windows and door at first and ground floor Status Decision Made Decision Refuse

Documents

Uncategorised
Archived · Original link
Uncategorised
Archived · Original link
Uncategorised
Archived · Original link
Uncategorised
Archived · Original link
Uncategorised
Archived · Original link
Uncategorised
Archived · Original link
Uncategorised
Archived · Original link
Uncategorised
Archived · Original link
Uncategorised
Archived · Original link
Uncategorised
Archived · Original link
Uncategorised
Archived · Original link
Uncategorised
Archived · Original link
Uncategorised
Archived · Original link
Uncategorised
Archived · Original link

Have your say

Your comment matters. Councils must consider every representation that raises material planning considerations.

Write a comment