← Rochdale Borough Council

Status

Pending House extension
Received
Not recorded
New homes
0

Full proposal

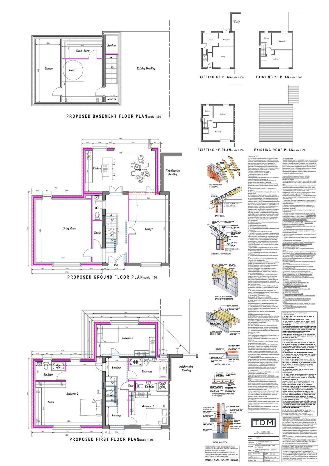
Reference 25/00421/HOUS Application type Householder planning permission Site address 8 Ajax Street Rochdale OL11 3HN Description Two storey side, part two storey/part single storey rear extensions, rear dormer extensions, excavation of land to facilitate new basement level together with associated landscaping Status Decision Made Decision Refuse

Documents

Uncategorised
Archived · Original link
Uncategorised
Archived · Original link
Uncategorised
Archived · Original link
Uncategorised
Archived · Original link
Uncategorised
Archived · Original link
Uncategorised
Archived · Original link
Uncategorised
Archived · Original link

Have your say

Your comment matters. Councils must consider every representation that raises material planning considerations.

Write a comment