← Rochdale Borough Council

Status

Pending House extension
Received
Not recorded
New homes
0

Full proposal

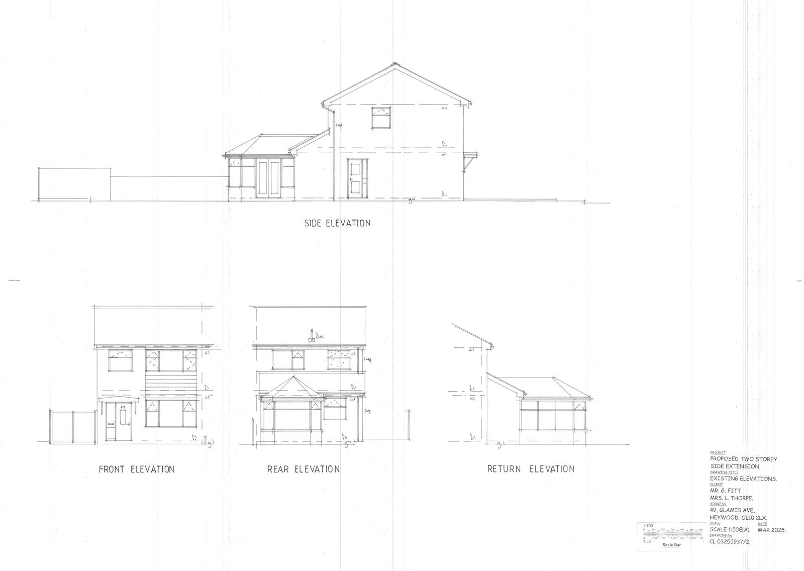
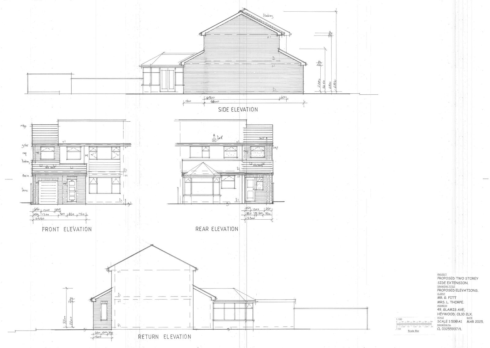
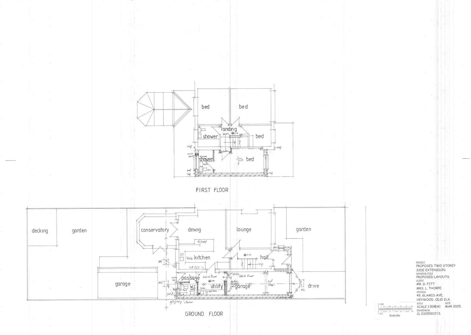
Reference 25/00423/HOUS Application type Householder planning permission Site address 49 Glamis Avenue Heywood Rochdale OL10 2LX Description Two storey side extension together with single rear and front extensions Status Decision Made Decision Approve with Conditions

Documents

Uncategorised
Archived · Original link
Uncategorised
Archived · Original link
Uncategorised
Archived · Original link
Uncategorised
Archived · Original link
Uncategorised
Archived · Original link
Uncategorised
Archived · Original link
Uncategorised
Archived · Original link
Uncategorised
Archived · Original link
Uncategorised
Archived · Original link

Have your say

Your comment matters. Councils must consider every representation that raises material planning considerations.

Write a comment