← Rochdale Borough Council

Status

Pending Change of use
Received
Not recorded
New homes
0

Full proposal

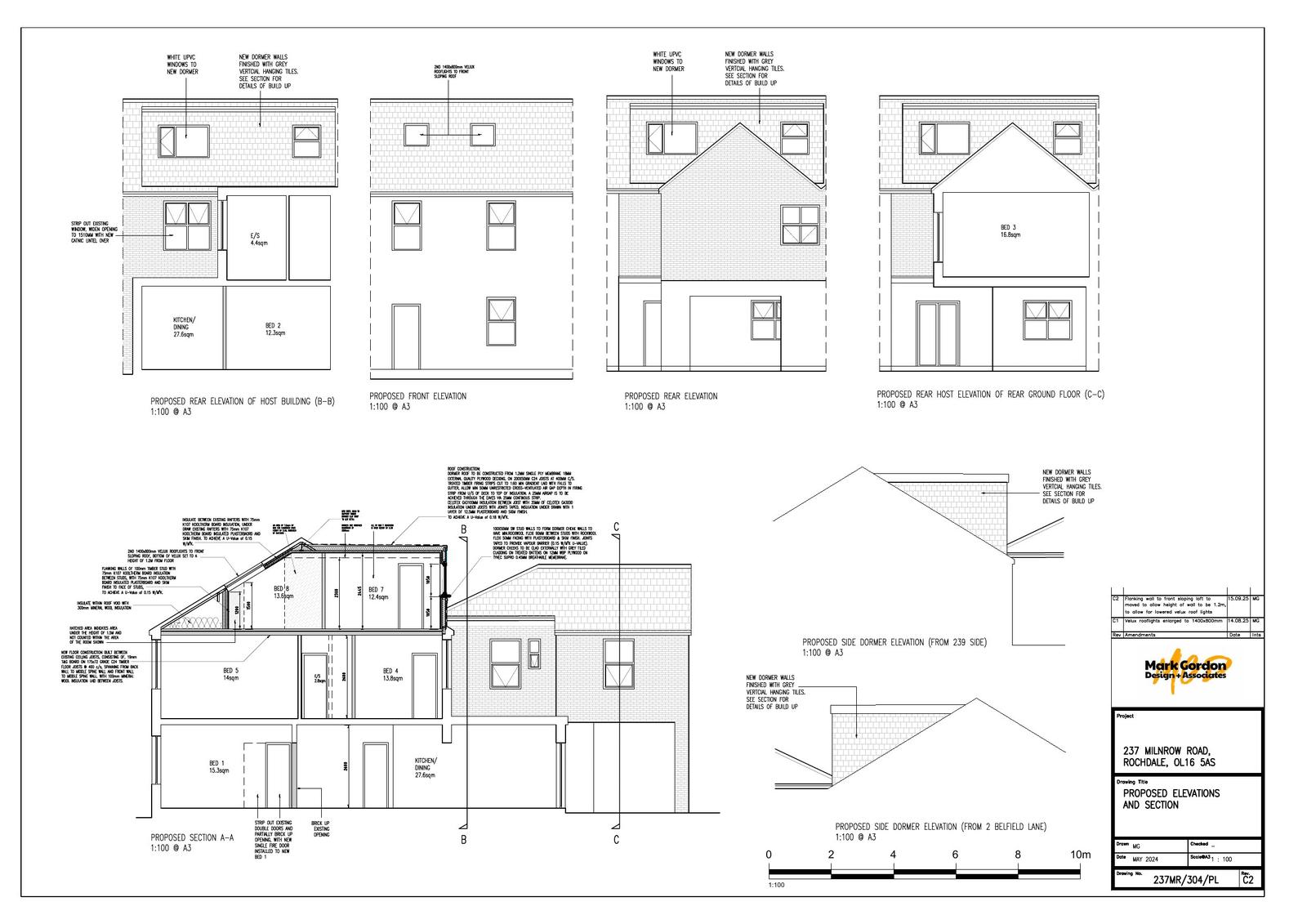
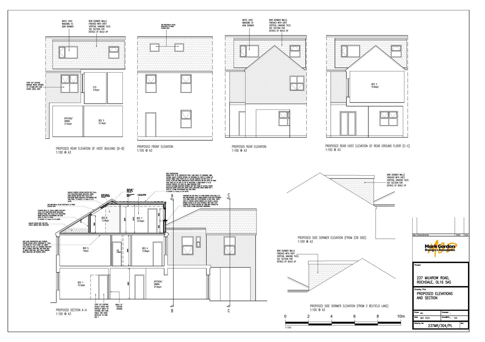
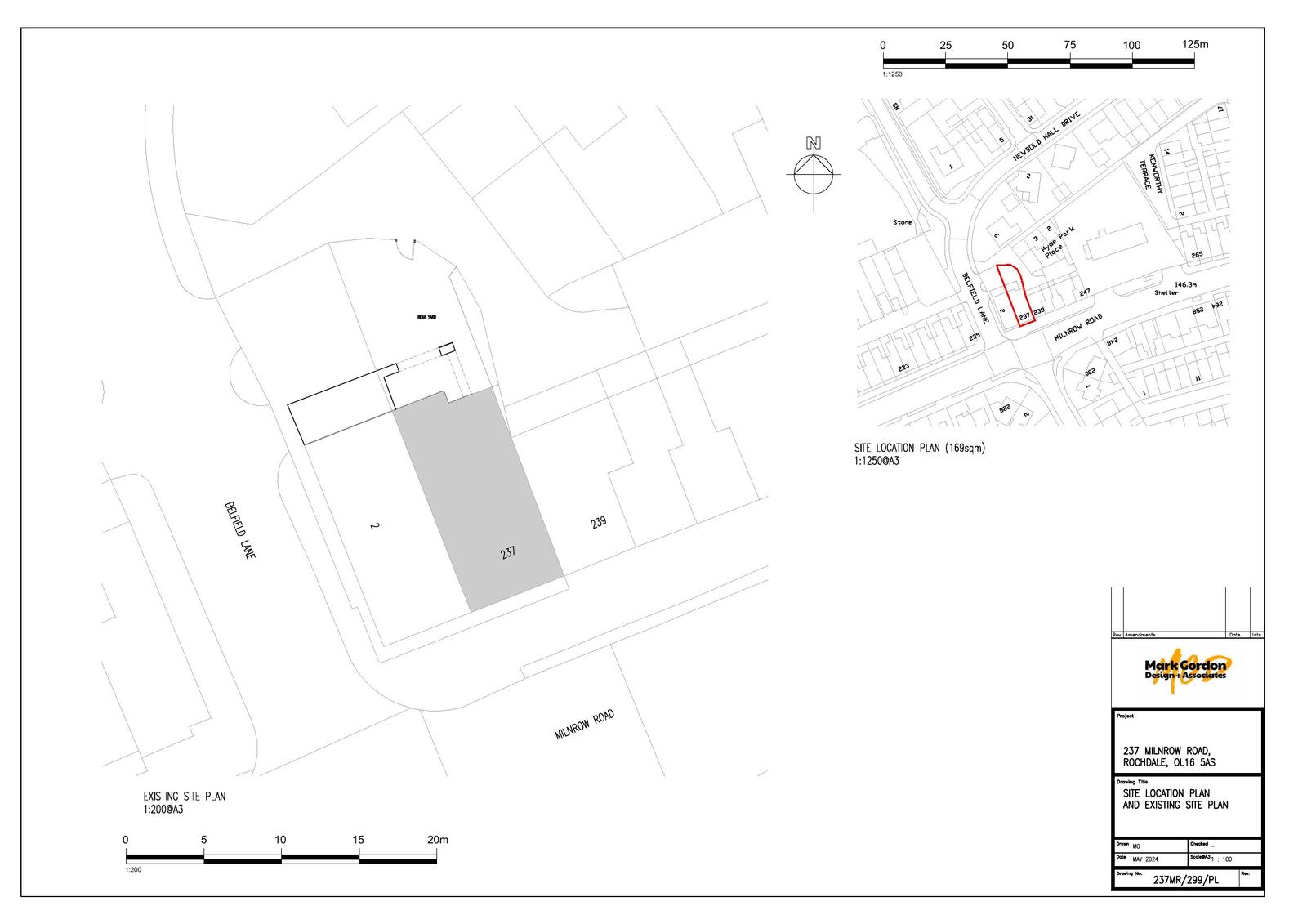
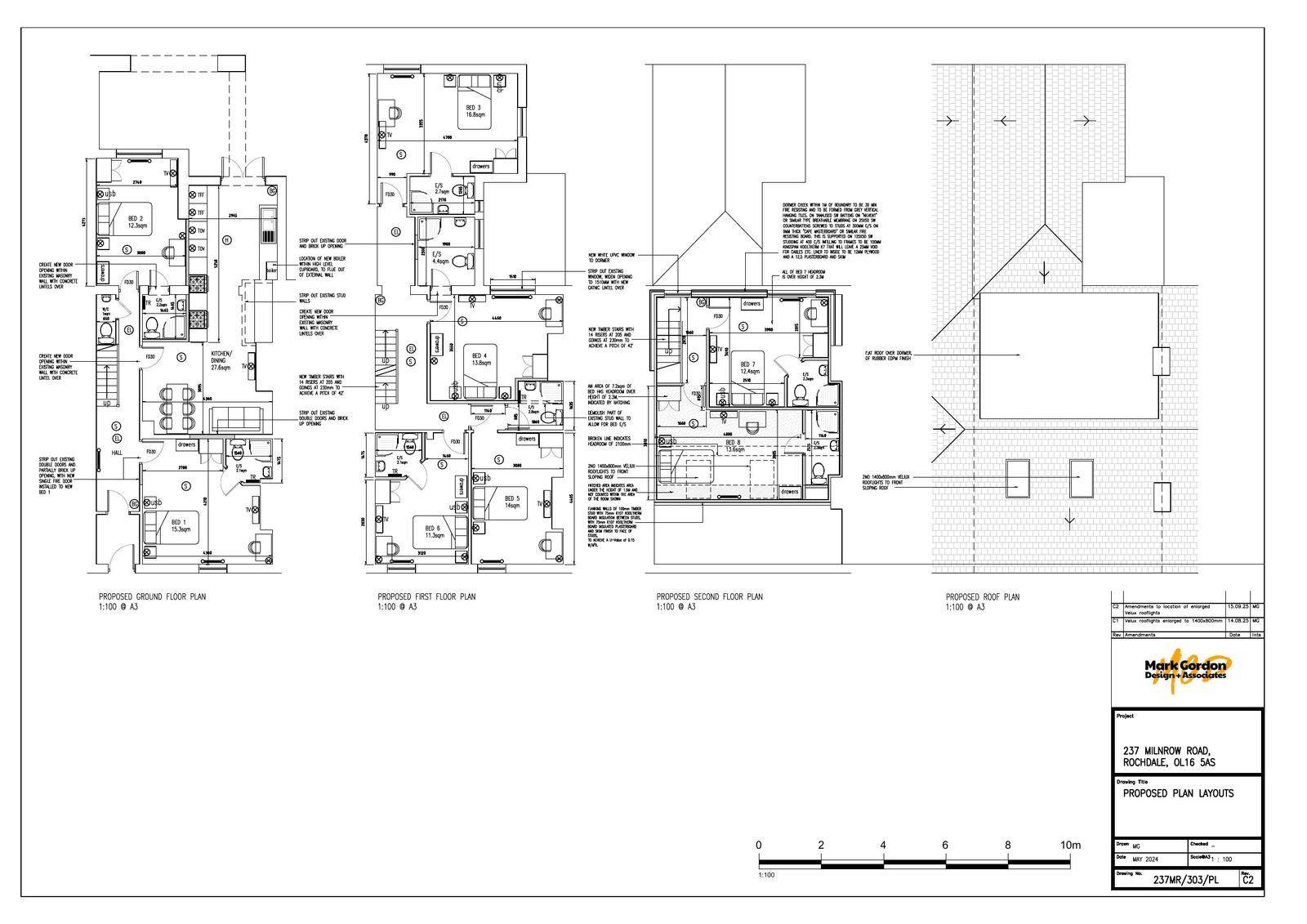
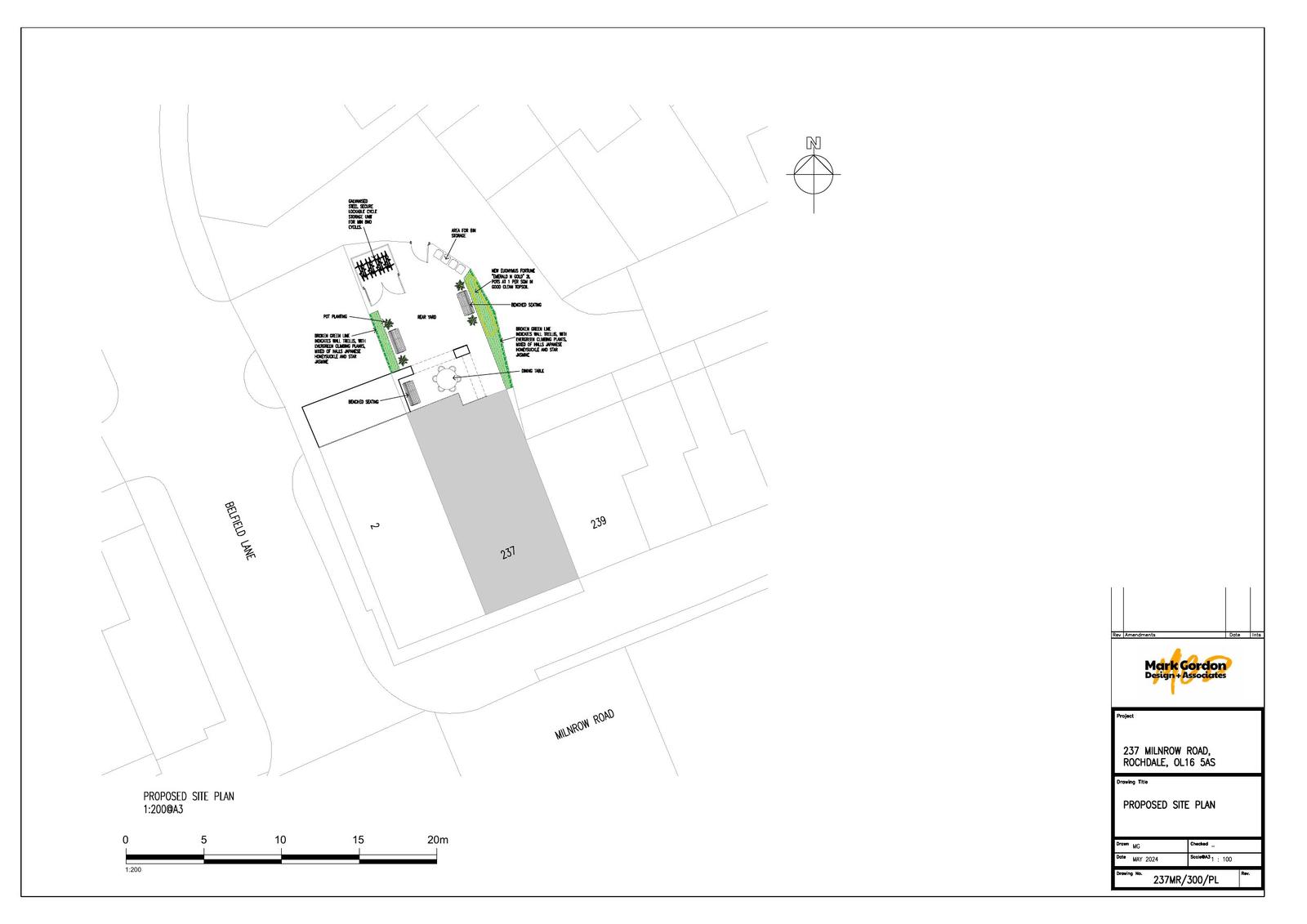
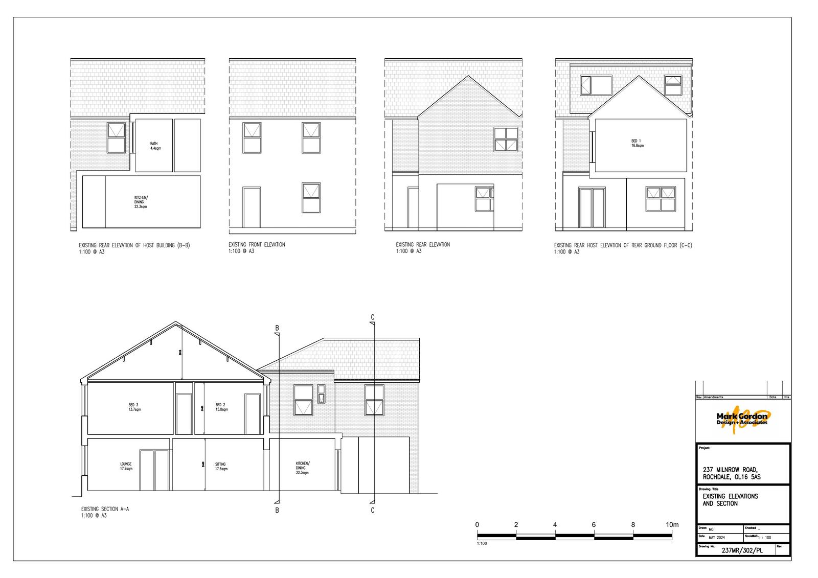
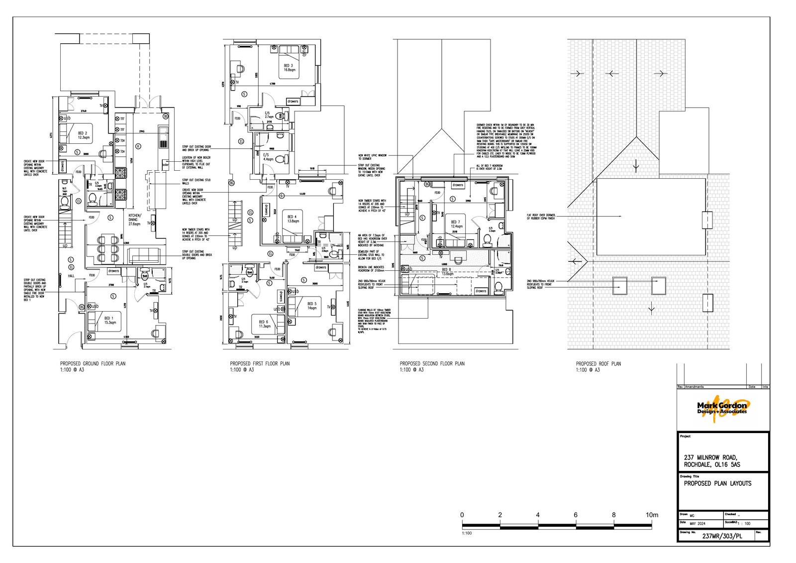
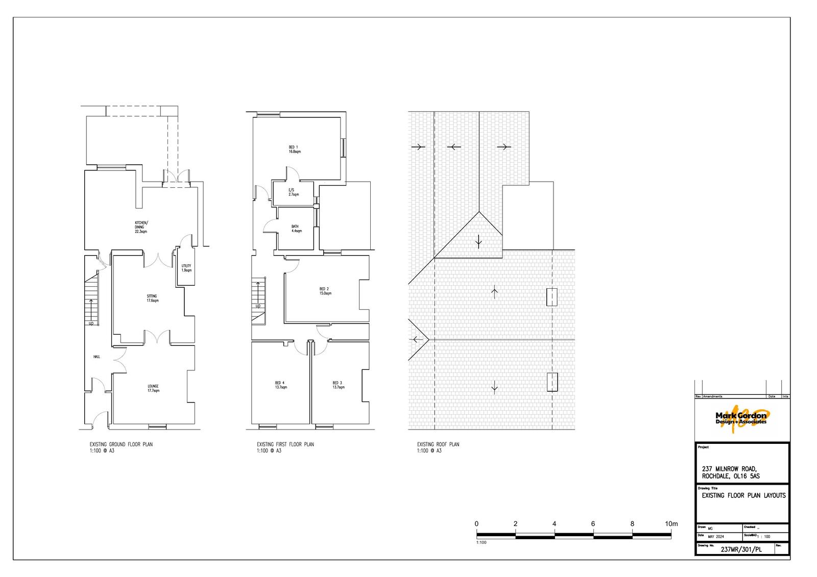
Reference 25/00428/FUL Application type Full planning permission Site address 237 Milnrow Road Rochdale OL16 5AS Description Change of use and conversion of existing dwelling (Use Class C3) into 8 bedroom House of Multiple Occupation (HMO) (Use Class Sui Generis) including rear dormer extension, alteration to fenestration at rear elevation, insertion of 2no rooflights to front roof elevation and associated work including landscaping and provision of cycle shelter Status Decision Made Decision Approve with Conditions

Documents

Download (HTML, 48.1KB)
Uncategorised
Not yet archived · Original link
Download (HTML, 48.1KB)
Uncategorised
Not yet archived · Original link
Uncategorised
Archived · Original link
Uncategorised
Archived · Original link
Uncategorised
Archived · Original link
Uncategorised
Archived · Original link
Uncategorised
Archived · Original link
Uncategorised
Archived · Original link
Uncategorised
Archived · Original link
Uncategorised
Archived · Original link
Uncategorised
Archived · Original link
Uncategorised
Archived · Original link
Uncategorised
Archived · Original link
Uncategorised
Archived · Original link
Uncategorised
Archived · Original link
Uncategorised
Archived · Original link
Uncategorised
Archived · Original link
Uncategorised
Archived · Original link
Uncategorised
Archived · Original link
Uncategorised
Archived · Original link

Have your say

Your comment matters. Councils must consider every representation that raises material planning considerations.

Write a comment