← Rochdale Borough Council

Status

Pending Change of use
Received
Not recorded
New homes
1

Full proposal

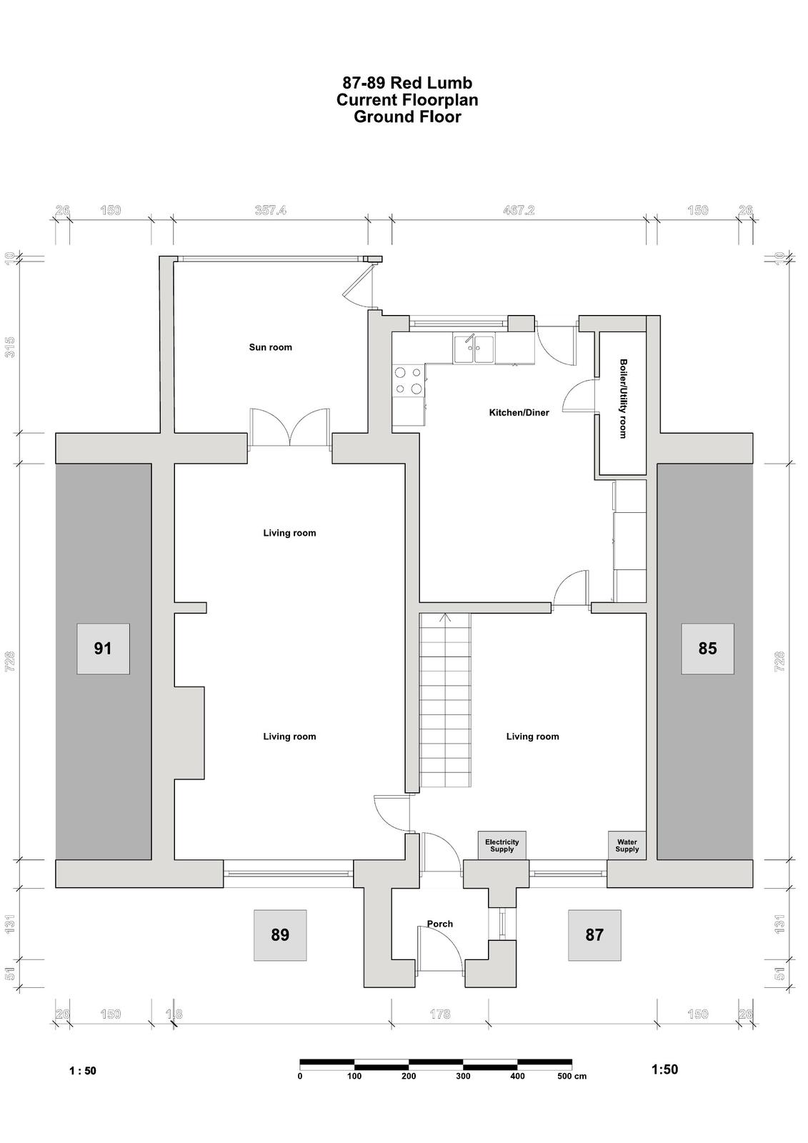
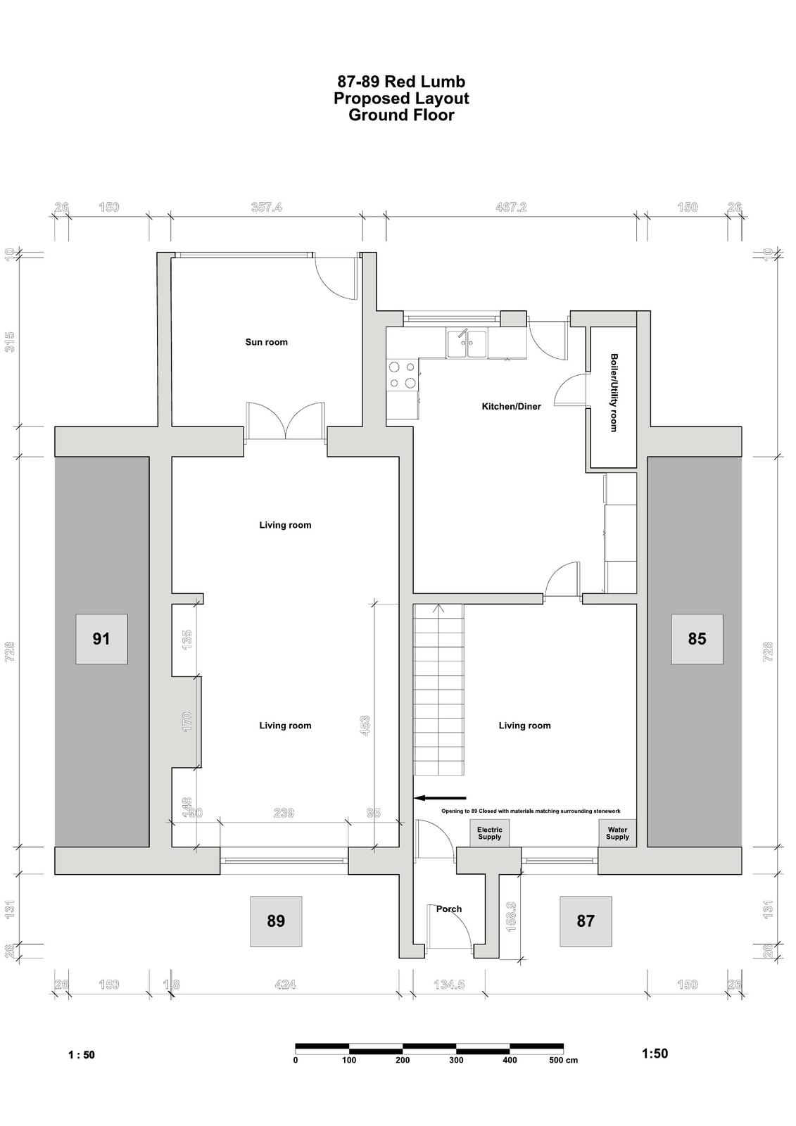
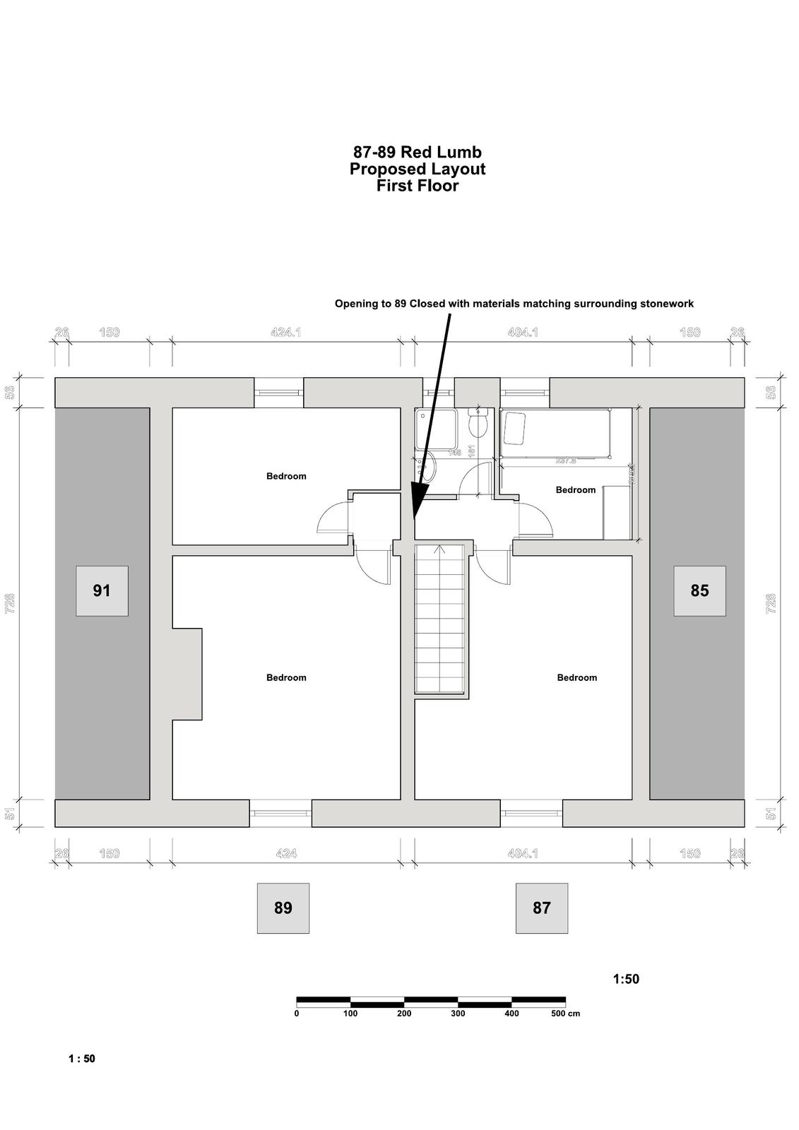
Reference 25/00479/FUL Application type Full planning permission Site address 87-89 Red Lumb Street Rochdale OL12 7TX Description Subdivision of one dwelling house to two separate dwellings Status Decision Made Decision Approve with Conditions

Documents

Uncategorised
Archived · Original link
Uncategorised
Archived · Original link
Uncategorised
Archived · Original link
Uncategorised
Archived · Original link
Uncategorised
Archived · Original link
Uncategorised
Archived · Original link
Uncategorised
Archived · Original link
Uncategorised
Archived · Original link
Uncategorised
Archived · Original link
Uncategorised
Archived · Original link
Uncategorised
Archived · Original link
Uncategorised
Archived · Original link
Uncategorised
Archived · Original link
Uncategorised
Archived · Original link

Have your say

Your comment matters. Councils must consider every representation that raises material planning considerations.

Write a comment