← Rochdale Borough Council

Status

Pending Change of use
Received
Not recorded
New homes
6

Full proposal

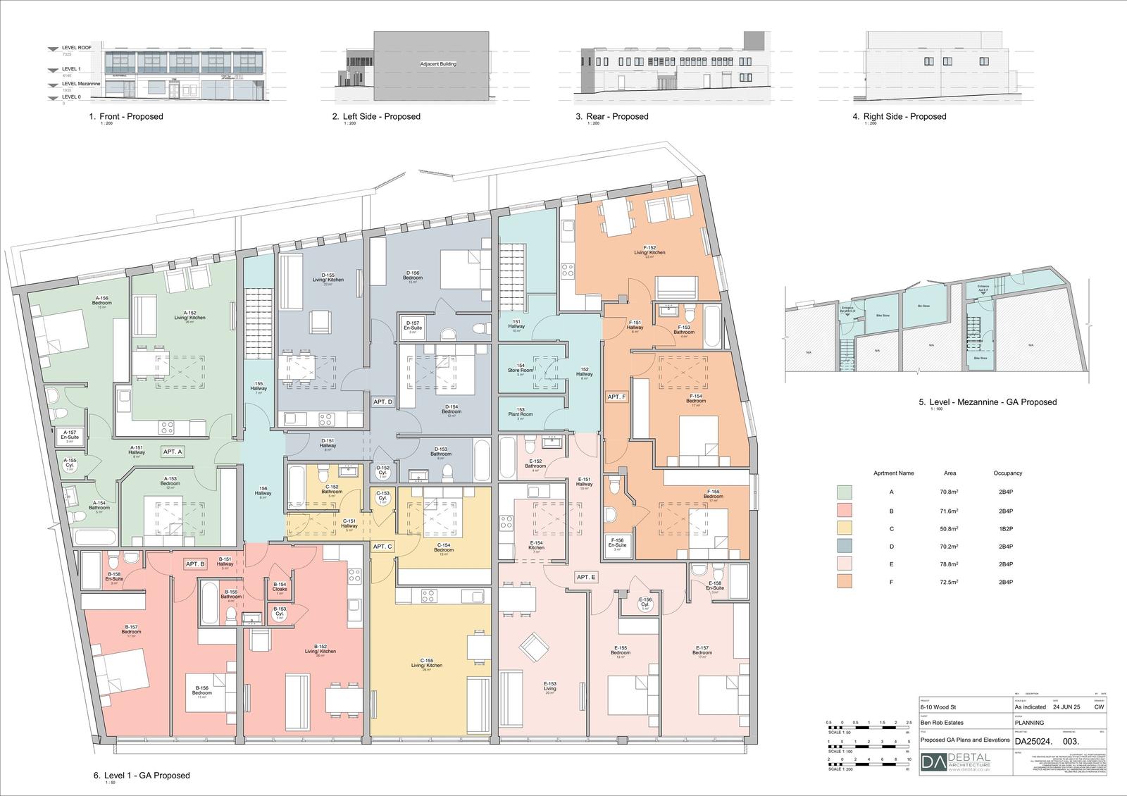
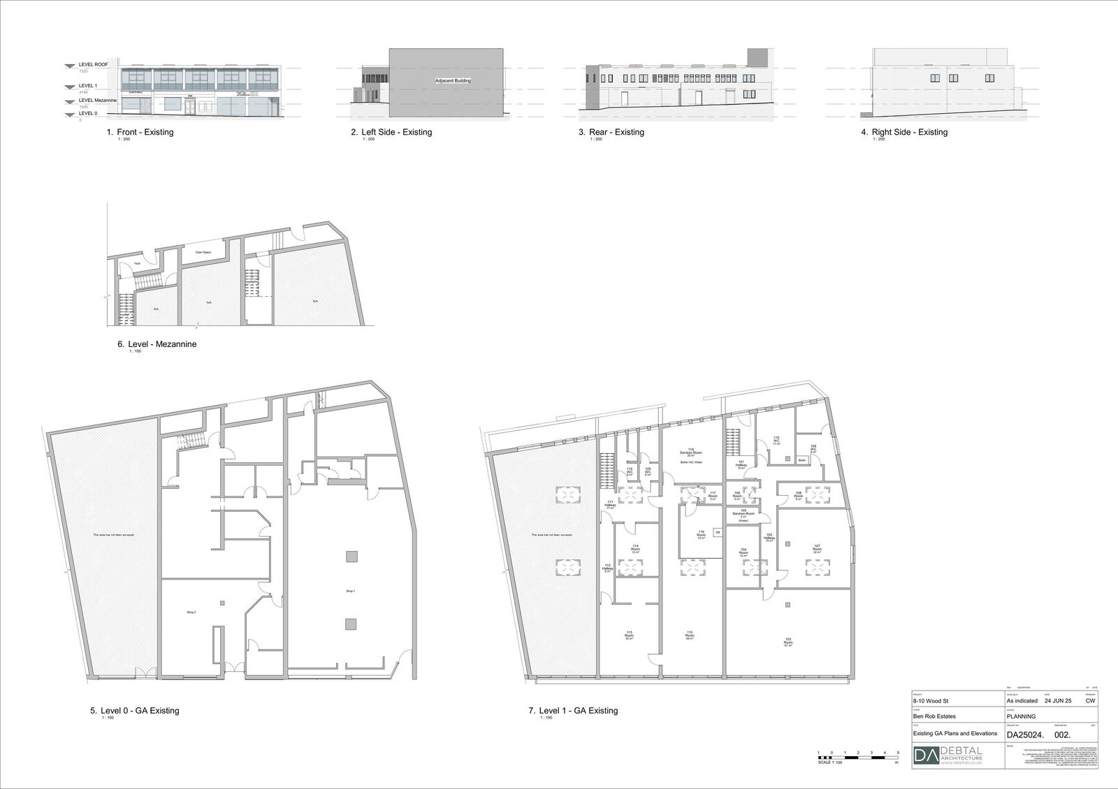
Reference 25/00767/PRA56 Application type Prior approval - Commercial, business and service uses to dwellinghouses Site address 10 Wood Street Middleton Rochdale M24 5TF Description Prior approval for the change of use from first floor offices (Class E) to 6 self-contained apartments (Class C3) under Schedule 2, Part 3, Class MA of the Town and Country Planning (General Permitted Development) (England) Order 2015 (as amended) Status Decision Made Decision Approve with Conditions

Documents

Uncategorised
Archived · Original link
Uncategorised
Archived · Original link
Uncategorised
Archived · Original link
Uncategorised
Archived · Original link
Uncategorised
Archived · Original link
Uncategorised
Archived · Original link
Uncategorised
Archived · Original link

Have your say

Your comment matters. Councils must consider every representation that raises material planning considerations.

Write a comment