← Rochdale Borough Council

Status

Pending Change of use
Received
Not recorded
New homes
4

Summary

Extend convenience store to four flats, add storage and entrance.

Full proposal

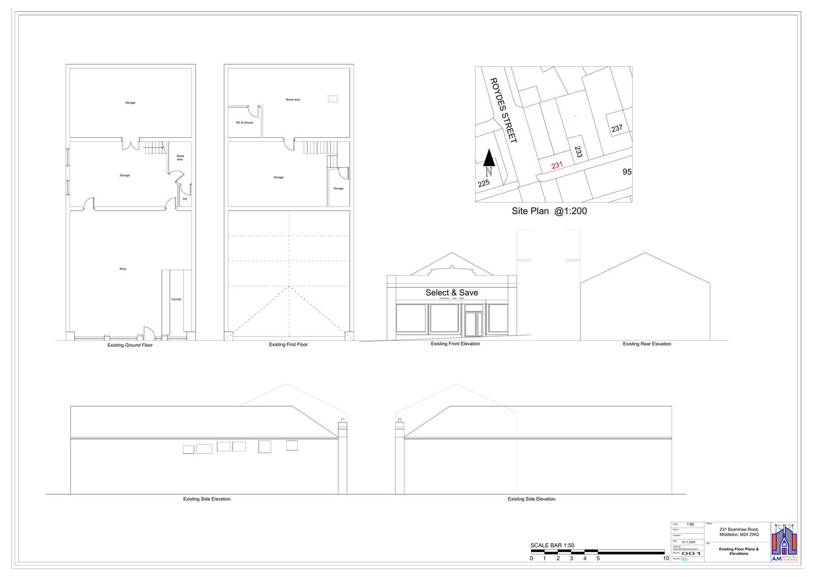
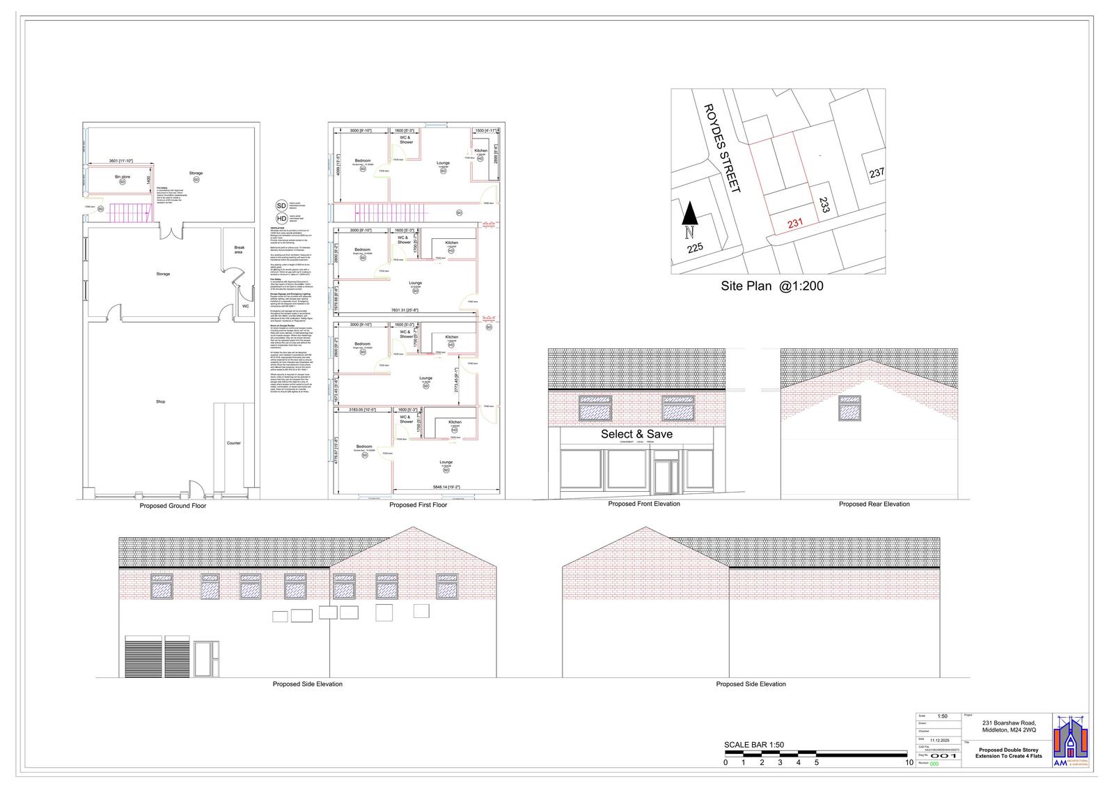
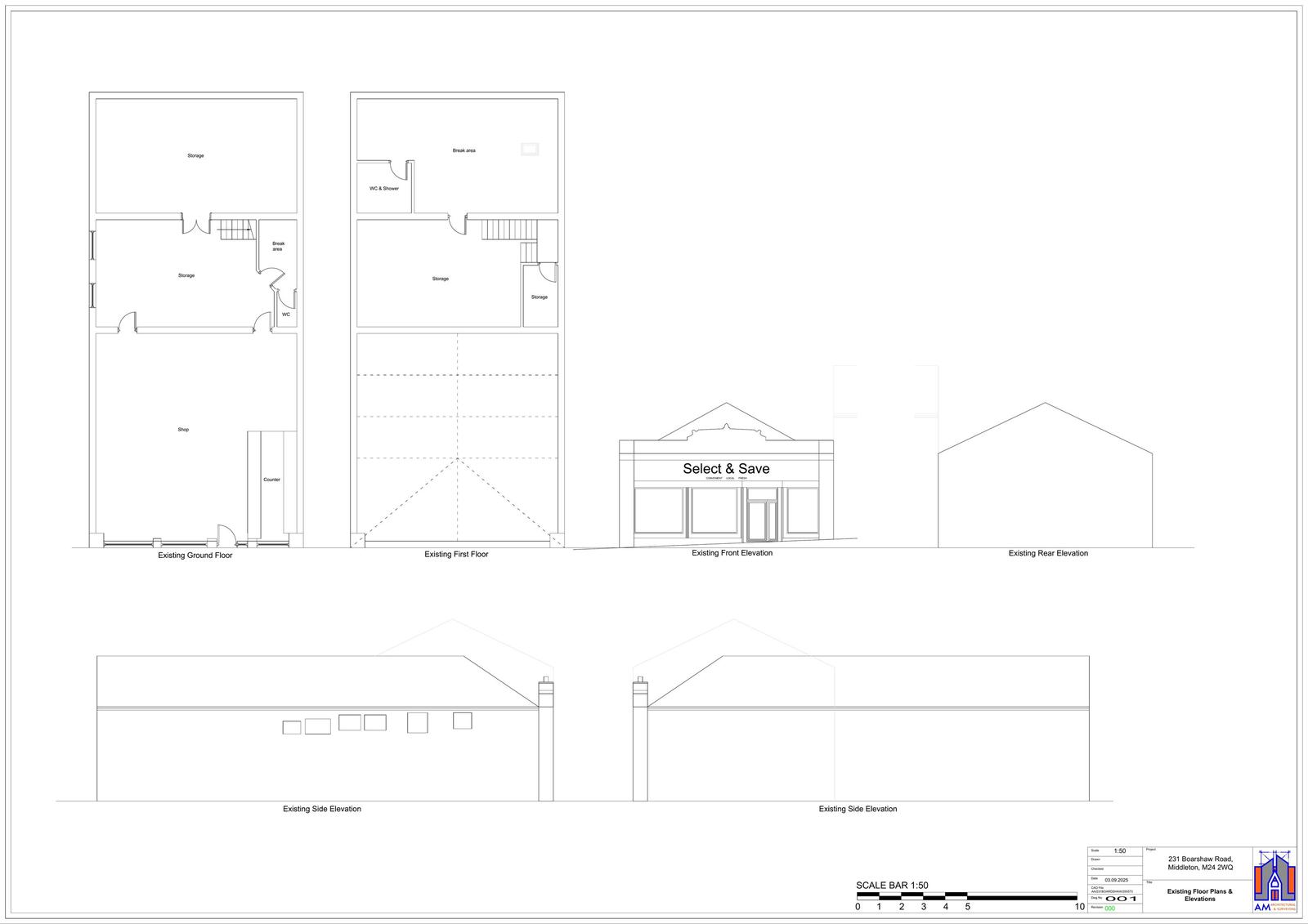
Reference 25/00922/FUL Application type Full planning permission Site address 231 Boarshaw Road Middleton Rochdale M24 2WQ Description Construction of a full first-floor extension and change of use of the first floor of the existing convenience store to create four self-contained residential flats including the formation of a bin store, a new side entrance door and associated window openings Status Decision Made Decision Refuse

Documents

Uncategorised
Archived · Original link
Uncategorised
Archived · Original link
Uncategorised
Archived · Original link
Uncategorised
Archived · Original link
Uncategorised
Archived · Original link
Uncategorised
Archived · Original link
Uncategorised
Archived · Original link
Uncategorised
Archived · Original link
Uncategorised
Archived · Original link
Uncategorised
Archived · Original link

Have your say

Your comment matters. Councils must consider every representation that raises material planning considerations.

Write a comment