← Rochdale Borough Council

Status

Pending Change of use
Received
Not recorded
New homes
0

Full proposal

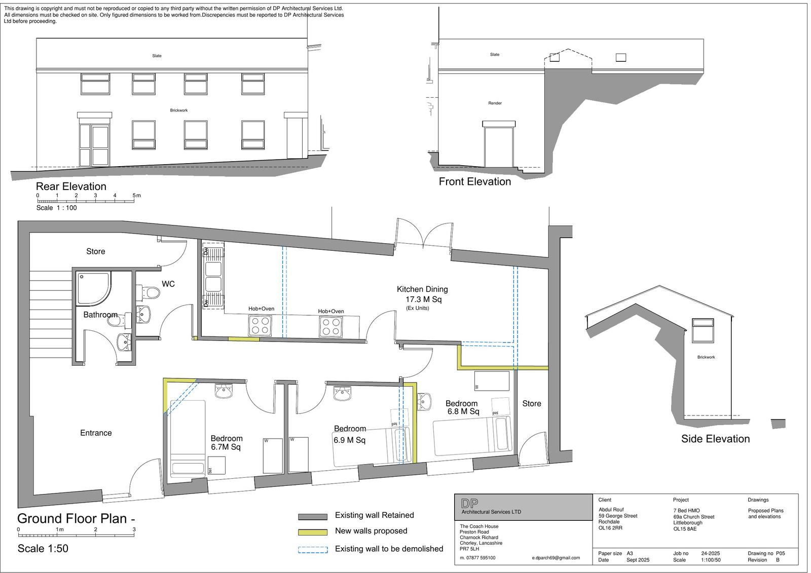
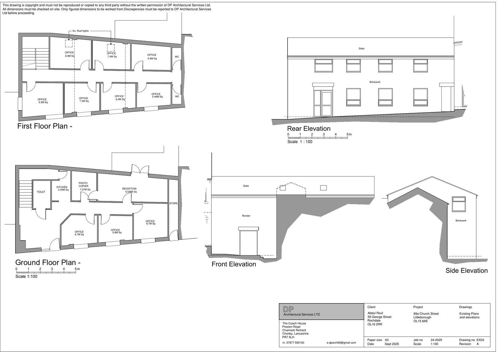
Reference 25/00983/FUL Application type Full planning permission Site address 69A Church Street Littleborough OL15 8AB Description Change of use and conversion of existing office building (Use Class E) into 7-bedroom House of Multiple Occupation (HMO) (Sui Generis) and associated works including removal of security shutters and grilles and installation of cycle rack Status Decision Made Decision Refuse

Documents

Uncategorised
Archived · Original link
Uncategorised
Archived · Original link
Uncategorised
Archived · Original link
Uncategorised
Archived · Original link
Uncategorised
Archived · Original link
Uncategorised
Archived · Original link
Uncategorised
Archived · Original link
Uncategorised
Archived · Original link

Have your say

Your comment matters. Councils must consider every representation that raises material planning considerations.

Write a comment