← Rochdale Borough Council

Status

Pending Change of use
Received
Not recorded
New homes
1

Full proposal

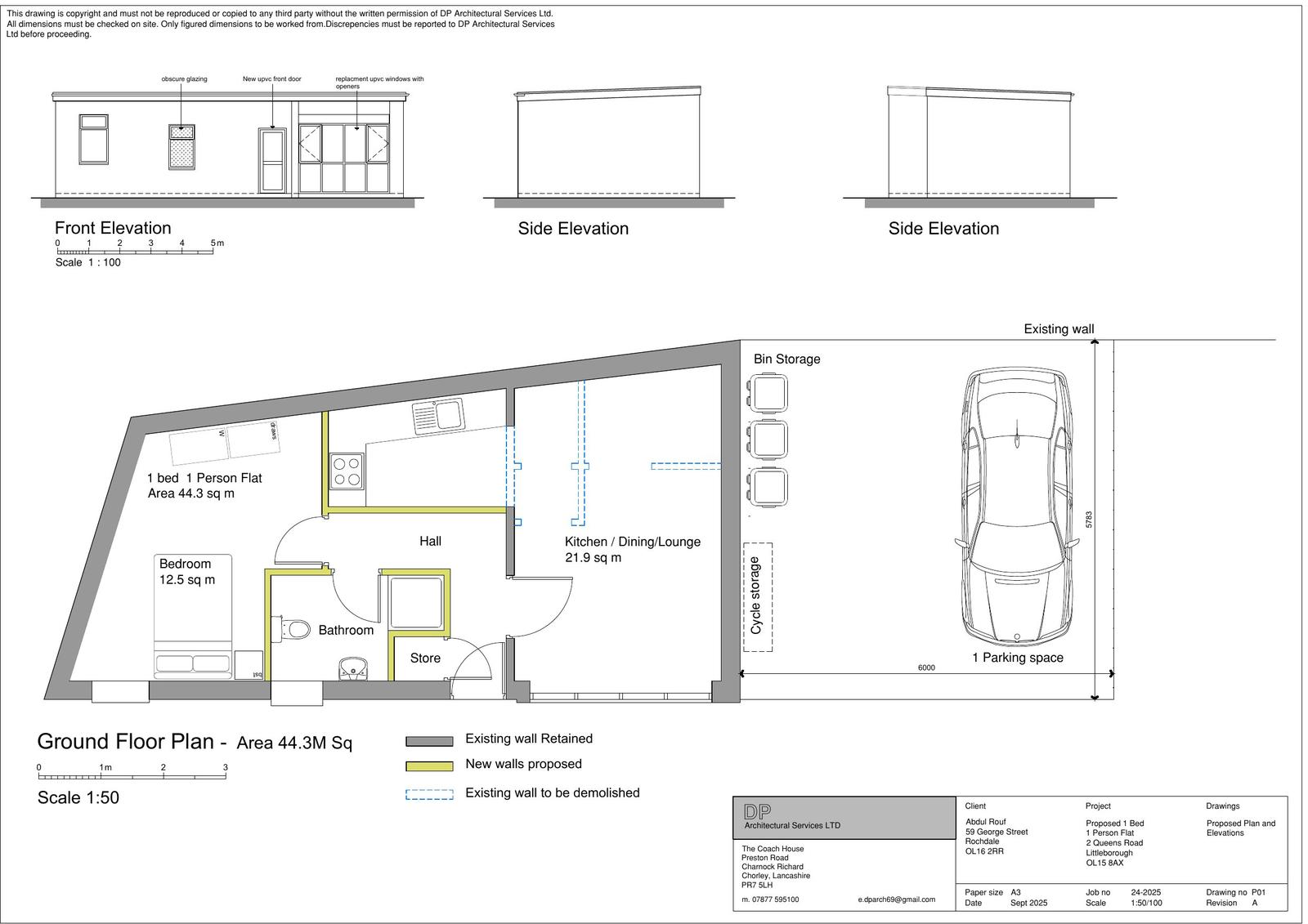
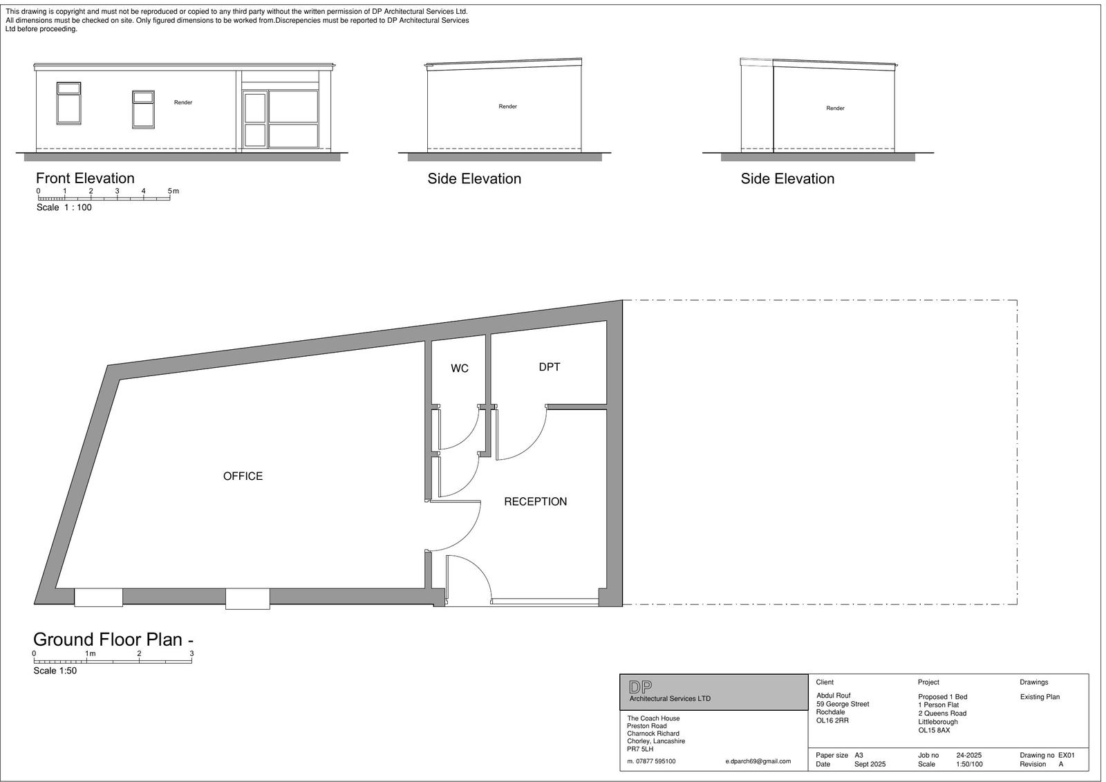
Reference 25/00984/FUL Application type Full planning permission Site address 2 Queens Road Littleboorough OL15 8AX Description Change of use and conversion of existing office building (Use Class E) into 1-bedroom flat (Use Class C3) and associated works including alterations to fenestration and removal of security shutters and grilles and installation of cycle rack Status Decision Made Decision Refuse

Documents

Uncategorised
Archived · Original link
Uncategorised
Archived · Original link
Uncategorised
Archived · Original link
Uncategorised
Archived · Original link
Uncategorised
Archived · Original link
Uncategorised
Archived · Original link
Uncategorised
Archived · Original link
Uncategorised
Archived · Original link
Uncategorised
Archived · Original link
Uncategorised
Archived · Original link

Have your say

Your comment matters. Councils must consider every representation that raises material planning considerations.

Write a comment