← Rochdale Borough Council

Status

Pending Change of use
Received
Not recorded
New homes
2

Summary

Public house converted to retail and flats

Full proposal

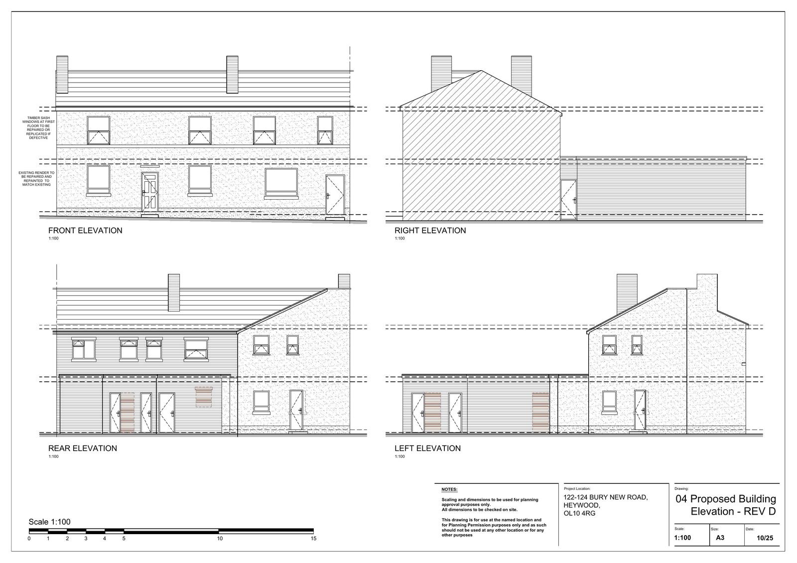
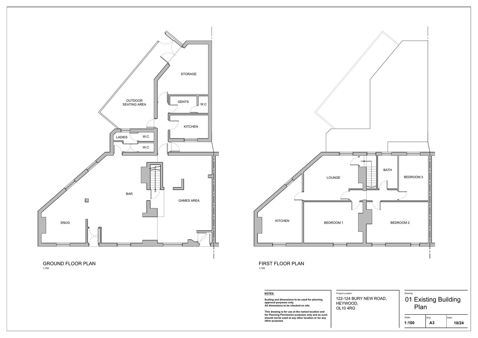
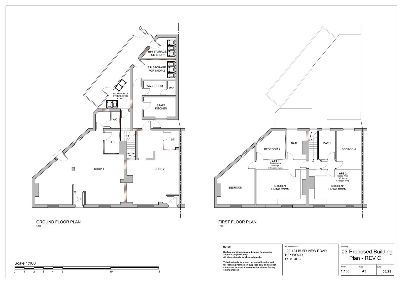
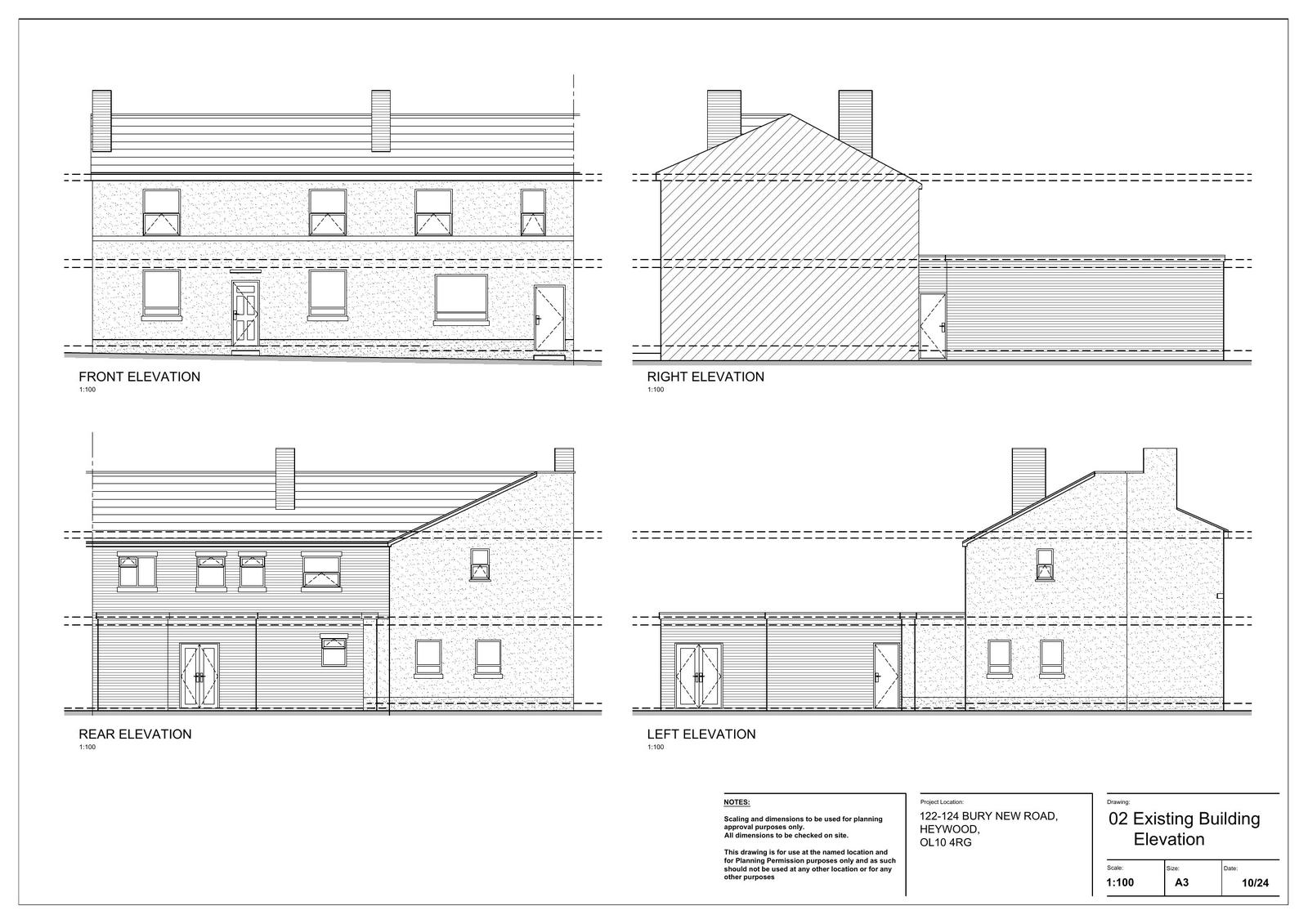
Reference 25/00990/FUL Application type Full planning permission Site address 122-124 Hark To Towler Bury New Road Heywood Rochdale OL10 4RG Description Change of use from a Public House (Sui Generis) to 2 no. retail units (Class E) on ground floor and 2 no. self-contained flats (Class C3) on first floor with alterations to fenestration and insertion of new windows and doors to the rear and side elevations Status Decision Made Decision Approve with Conditions

Documents

Uncategorised
Archived · Original link
Uncategorised
Archived · Original link
Uncategorised
Archived · Original link
Uncategorised
Archived · Original link
Uncategorised
Archived · Original link
Uncategorised
Archived · Original link
Uncategorised
Archived · Original link
Uncategorised
Archived · Original link
Uncategorised
Archived · Original link
Uncategorised
Archived · Original link

Have your say

Your comment matters. Councils must consider every representation that raises material planning considerations.

Write a comment