← Rochdale Borough Council

Status

Pending Change of use
Received
Not recorded
New homes
0

Summary

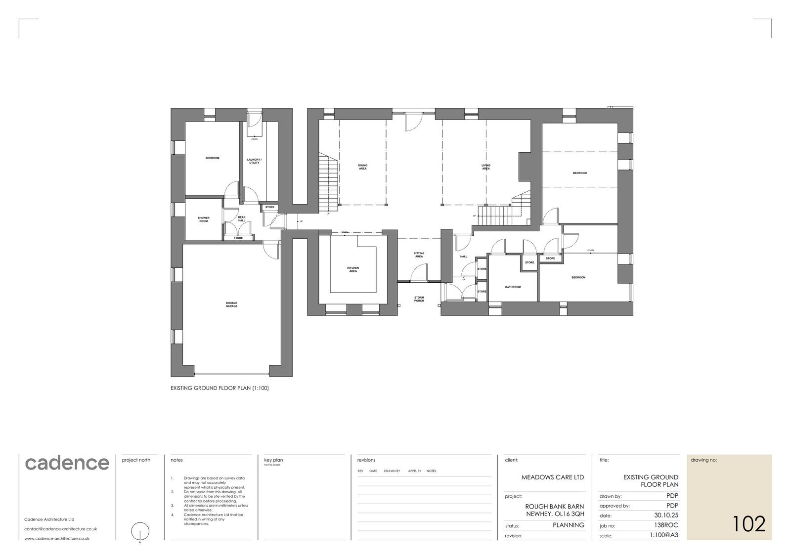
Convert dwellinghouse to residential children's home for four children and three carers.

Full proposal

Reference 25/01008/FUL Application type Full planning permission Site address Rough Bank Barn Rough Bank Milnrow Rochdale OL16 3QH Description Change of use from dwellinghouse (Use Class C3) to a residential children's home (Use Class C2), providing care and accommodation for up to four childrens and three carers Status Under Consultation Decision

Documents

Uncategorised
Archived · Original link
Download (HTML, 59.31KB)
Uncategorised
Not yet archived · Original link
Uncategorised
Archived · Original link
Uncategorised
Archived · Original link
Uncategorised
Archived · Original link
Uncategorised
Archived · Original link
Uncategorised
Archived · Original link
Uncategorised
Archived · Original link
Uncategorised
Archived · Original link
Uncategorised
Archived · Original link
Uncategorised
Archived · Original link
Uncategorised
Archived · Original link
Uncategorised
Archived · Original link

Have your say

Your comment matters. Councils must consider every representation that raises material planning considerations.

Write a comment