← Rochdale Borough Council

Status

Pending House extension
Received
Not recorded
New homes
0

Full proposal

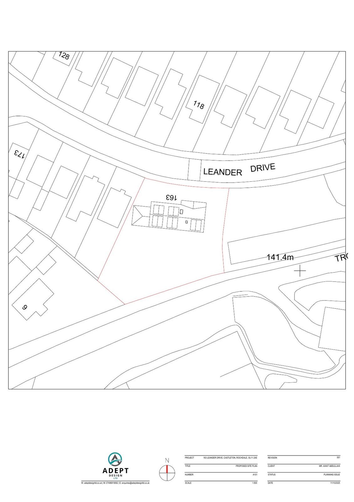
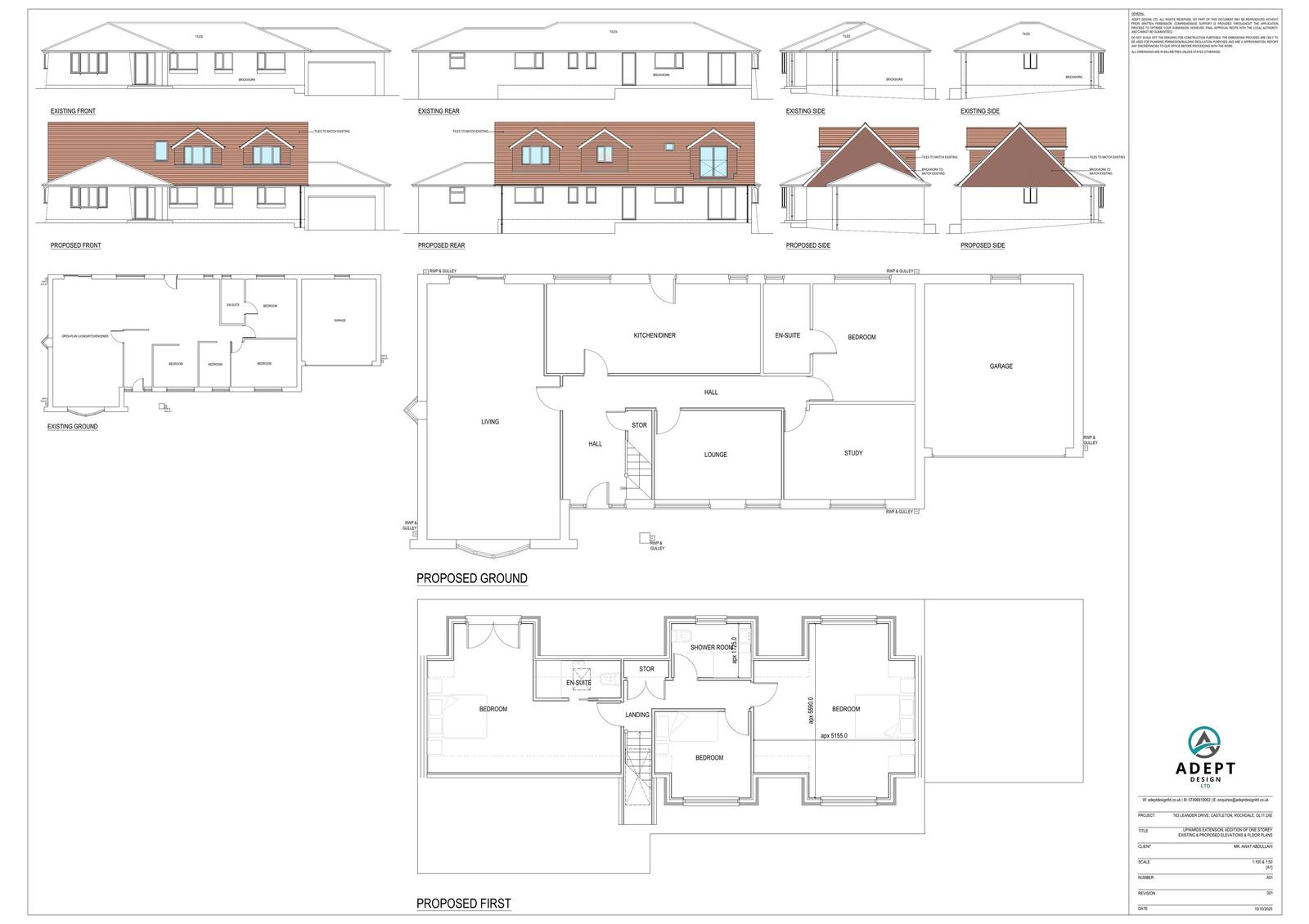
Reference 25/01041/HOUS Application type Householder planning permission Site address 163 Leander Drive Rochdale OL11 2XE Description Alterations to existing roof increase in ridge height and hip-to-gable roof conversion, erection of 3no pitched roof rear dormers and 2no pitched roof front dormers Status Decision Made Decision Approve with Conditions

Documents

Uncategorised
Archived · Original link
Uncategorised
Archived · Original link
Uncategorised
Archived · Original link
Uncategorised
Archived · Original link

Have your say

Your comment matters. Councils must consider every representation that raises material planning considerations.

Write a comment