← Rochdale Borough Council

Status

Pending House extension
Received
Not recorded
New homes
0

Full proposal

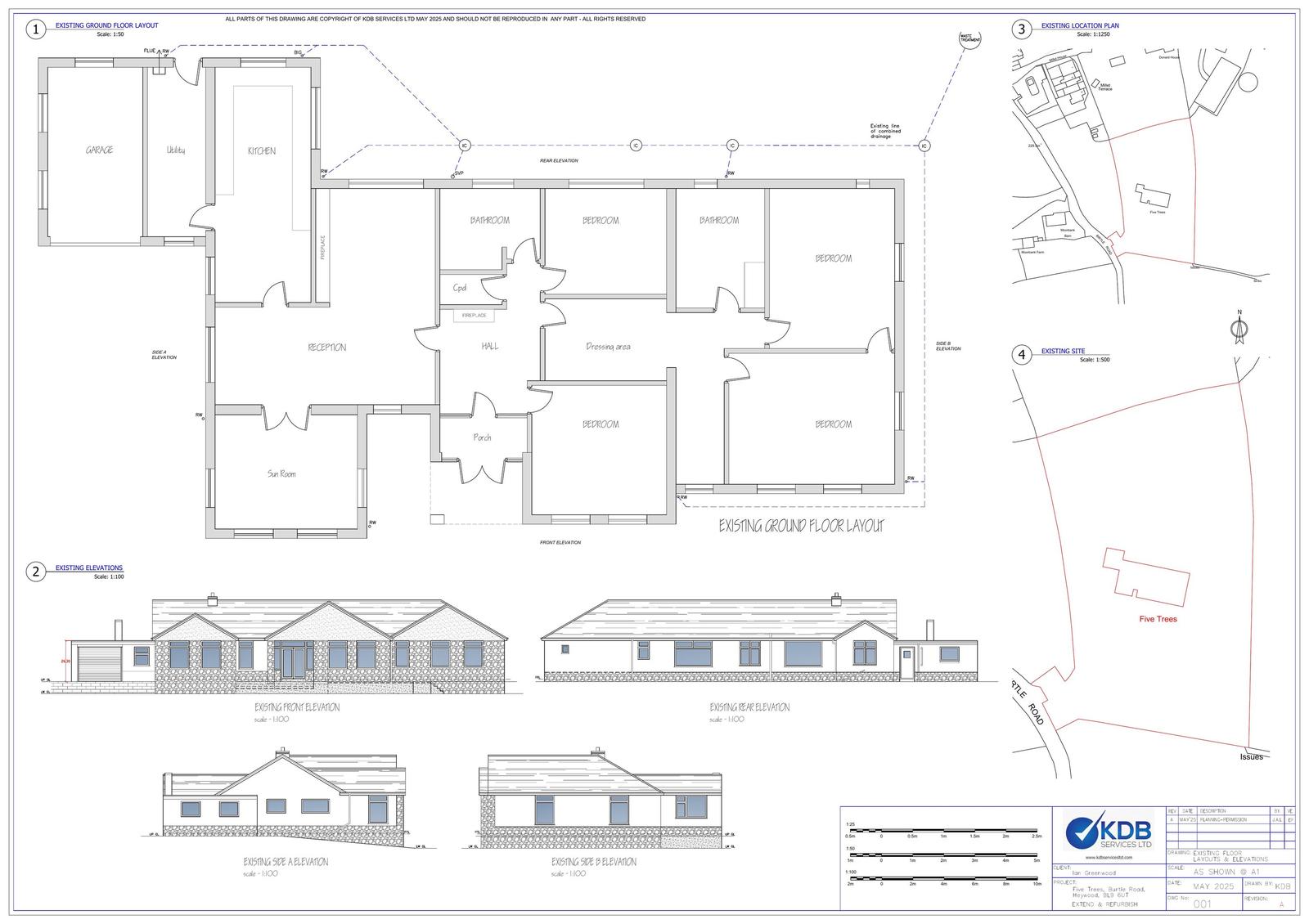
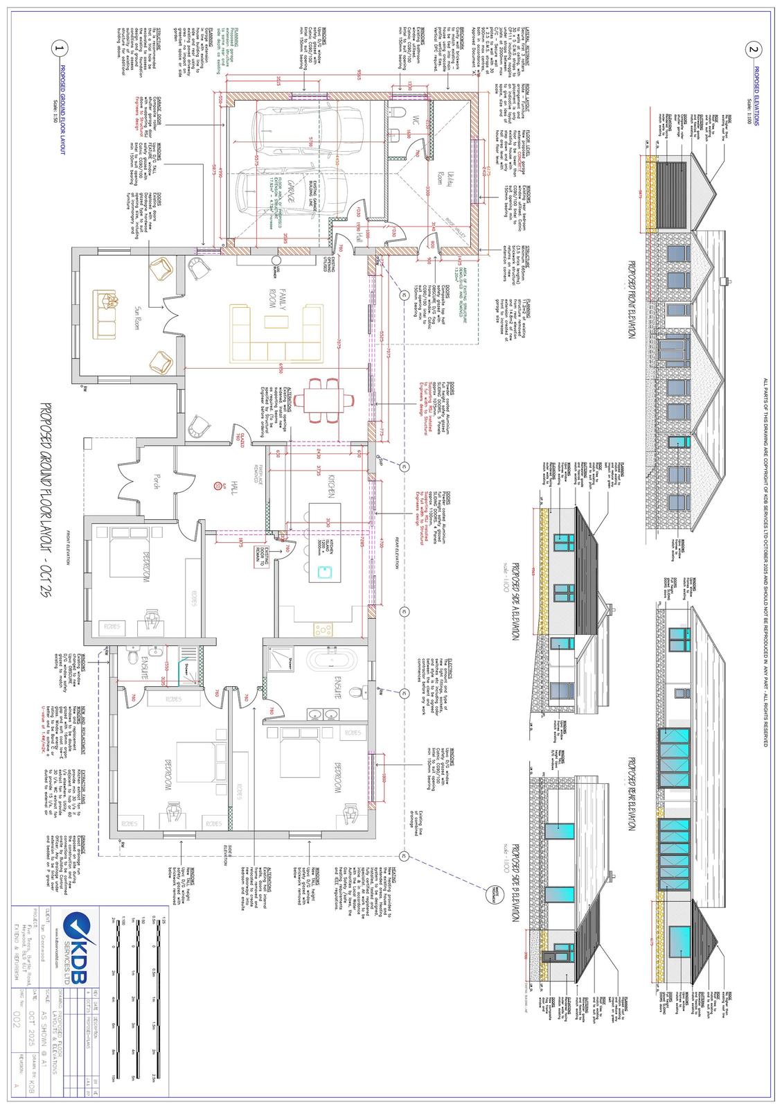
Reference 25/01059/HOUS Application type Householder planning permission Site address Five Trees Birtle Road Heywood Rochdale BL9 6UT Description Single storey side and rear extension and alterations to fenestration following demolition of existing garage and kitchen extensions. Status Decision Made Decision Approve with Conditions

Documents

Uncategorised
Archived · Original link
Uncategorised
Archived · Original link
Uncategorised
Archived · Original link
Uncategorised
Archived · Original link
Uncategorised
Archived · Original link
Uncategorised
Archived · Original link

Have your say

Your comment matters. Councils must consider every representation that raises material planning considerations.

Write a comment