← Rochdale Borough Council

Status

Pending Change of use
Received
Not recorded
New homes
8

Full proposal

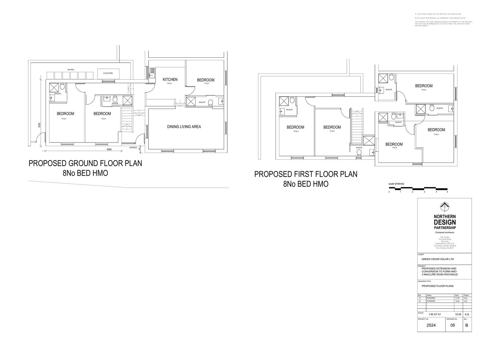
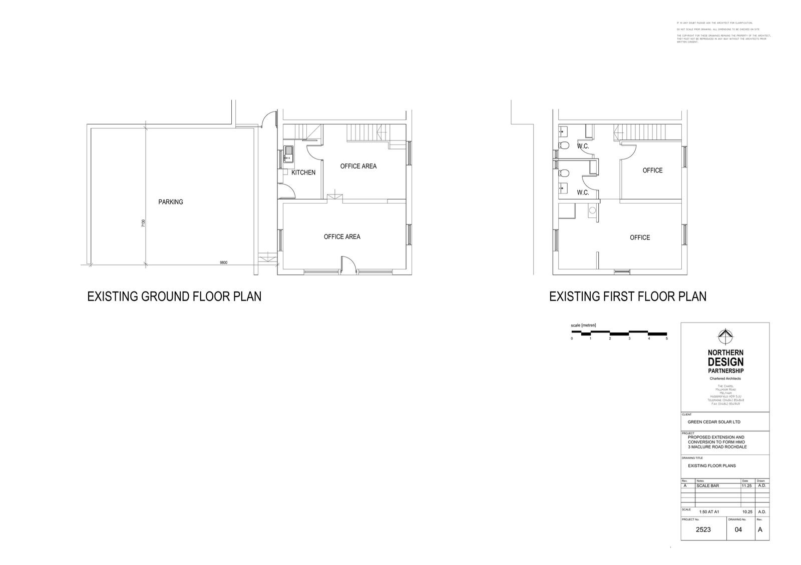
Reference 25/01070/FUL Application type Full planning permission Site address 3 Maclure Road Rochdale OL11 1DN Description Change of use from offices (Class E) to an 8-bedroom house of multiple occupation (Sui Generis) together with a two-storey link extension on the side elevation, alteration to fenestration on front and side elevations Status Under Consultation Decision

Documents

Uncategorised
Archived · Original link
Uncategorised
Archived · Original link
Uncategorised
Archived · Original link
Uncategorised
Archived · Original link
Uncategorised
Archived · Original link
Uncategorised
Archived · Original link
Uncategorised
Archived · Original link
Uncategorised
Archived · Original link
Uncategorised
Archived · Original link
Uncategorised
Archived · Original link
Uncategorised
Archived · Original link
Uncategorised
Archived · Original link
Uncategorised
Archived · Original link
Uncategorised
Archived · Original link
Uncategorised
Archived · Original link

Have your say

Your comment matters. Councils must consider every representation that raises material planning considerations.

Write a comment