← Rochdale Borough Council

Status

Pending House extension
Received
Not recorded
New homes
0

Full proposal

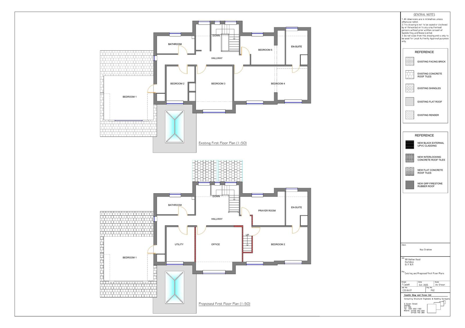
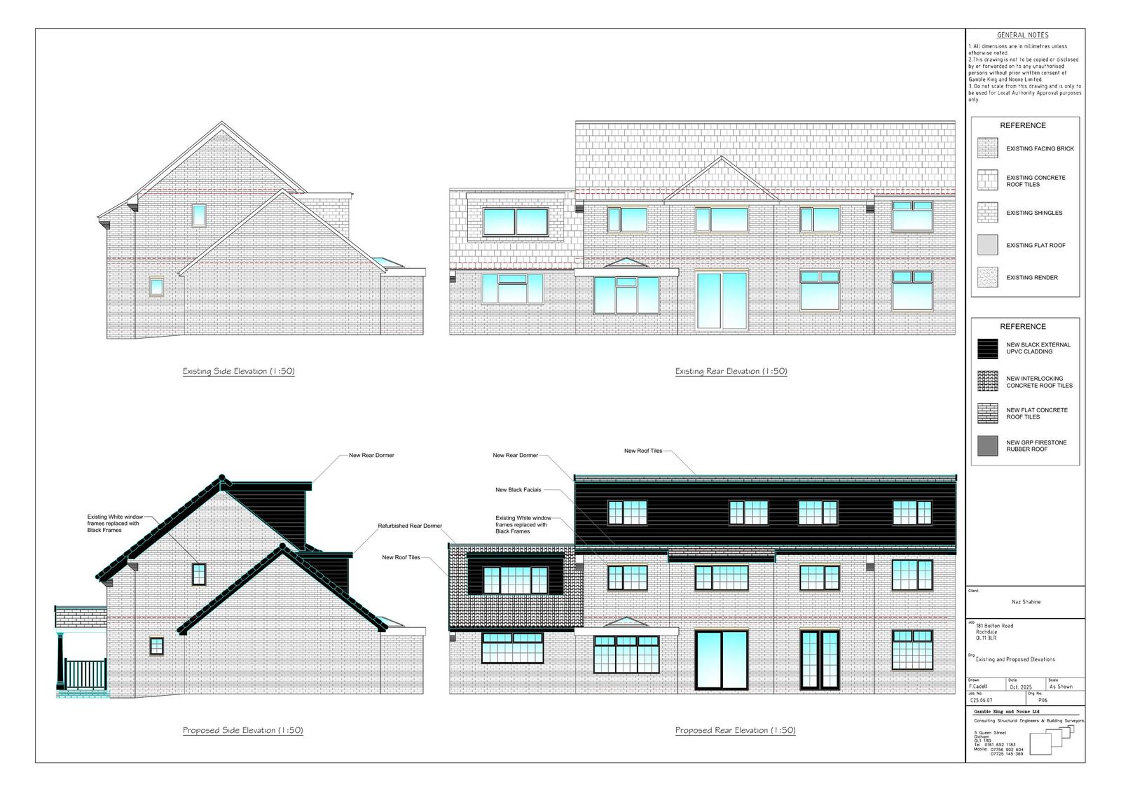
Reference 25/01132/HOUS Application type Householder planning permission Site address 181 Bolton Road Rochdale OL11 3LR Description Refurbishment of Existing dormer, Proposed Rear Dormer with an increase to the Ridge height of the Main Dwelling by 225mm, Replacement of all existing Windows plus the construction of a Portico at the front of the property Status Decision Made Decision Refuse

Documents

Uncategorised
Archived · Original link
Uncategorised
Archived · Original link
Uncategorised
Archived · Original link
Uncategorised
Archived · Original link
Uncategorised
Archived · Original link
Uncategorised
Archived · Original link
Uncategorised
Archived · Original link
Uncategorised
Archived · Original link
Uncategorised
Archived · Original link

Have your say

Your comment matters. Councils must consider every representation that raises material planning considerations.

Write a comment