← Rochdale Borough Council

Status

Pending Change of use
Received
Not recorded
New homes
0

Full proposal

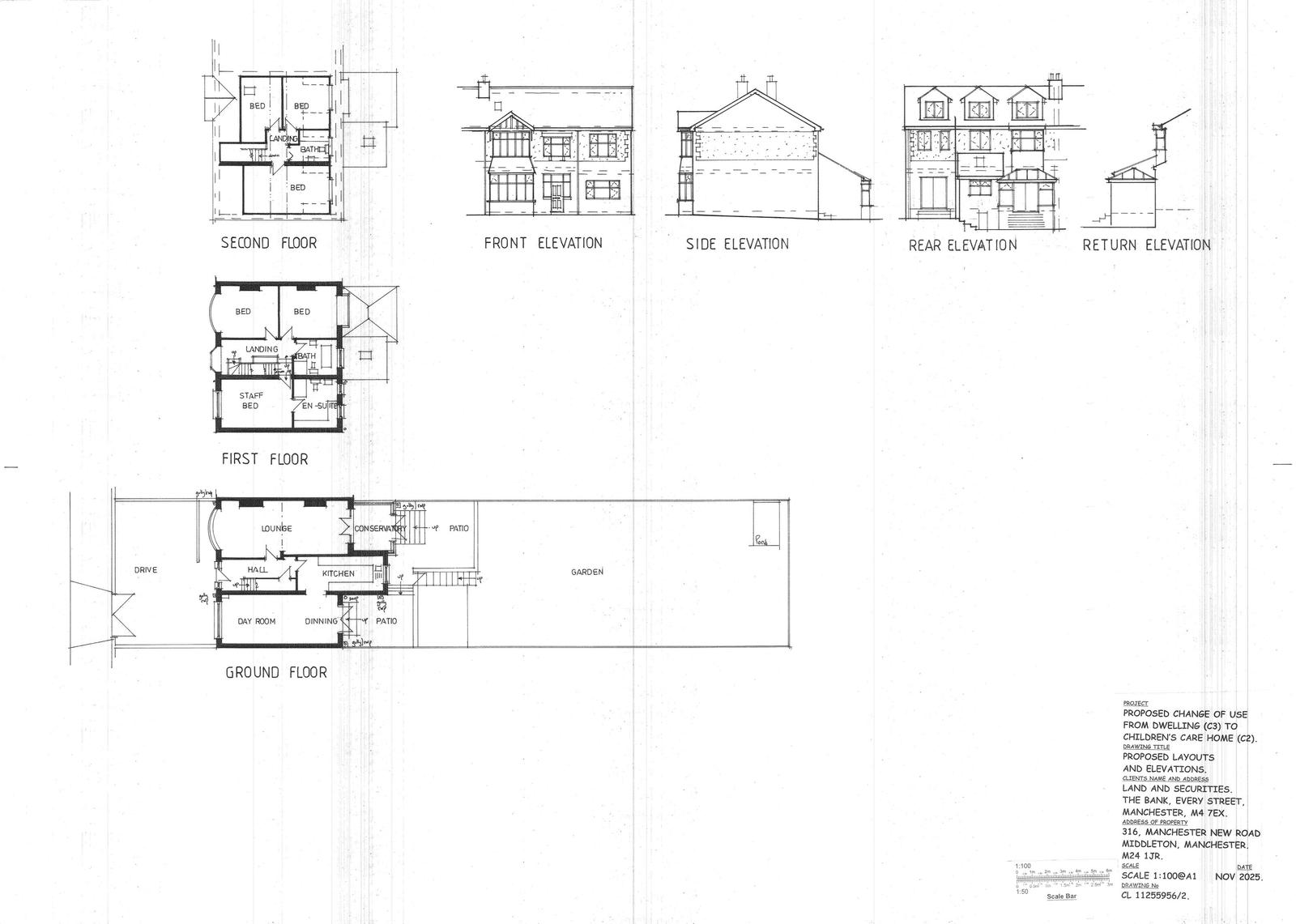
Reference 25/01172/FUL Application type Full planning permission Site address 316 MANCHESTER NEW ROAD, MIDDLETON, MANCHESTER, M24 1JR Description Change of use from dwellinghouse to children's care home (Use Class C2) for a maximum of 4 children with carer accommodation Status Decision Made Decision Approve with Conditions

Documents

Uncategorised
Archived · Original link
Uncategorised
Archived · Original link
Uncategorised
Archived · Original link
Uncategorised
Archived · Original link
Uncategorised
Archived · Original link
Uncategorised
Archived · Original link
Uncategorised
Archived · Original link

Have your say

Your comment matters. Councils must consider every representation that raises material planning considerations.

Write a comment