← Rochdale Borough Council

Status

Pending House extension
Received
Not recorded
New homes
0

Full proposal

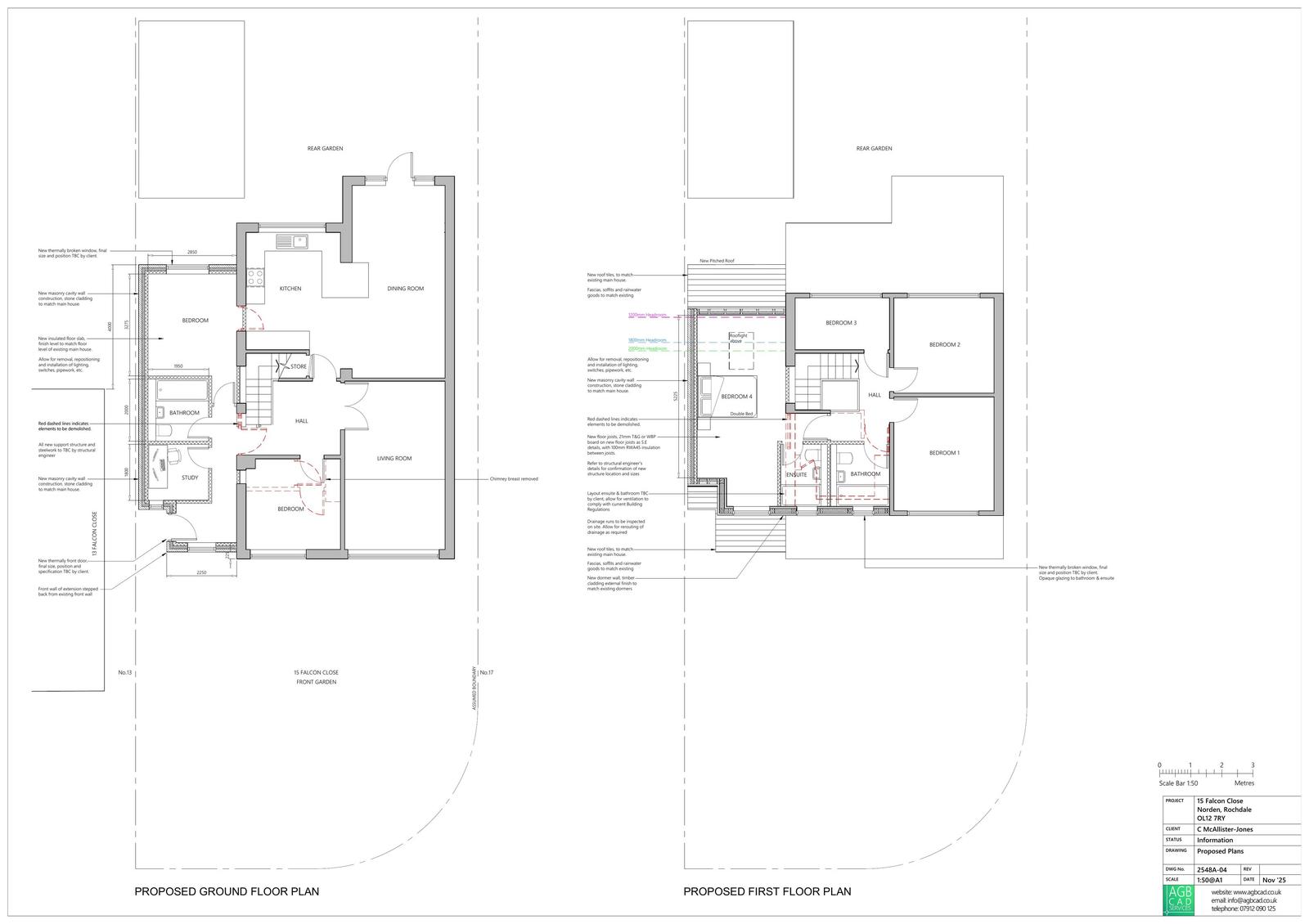
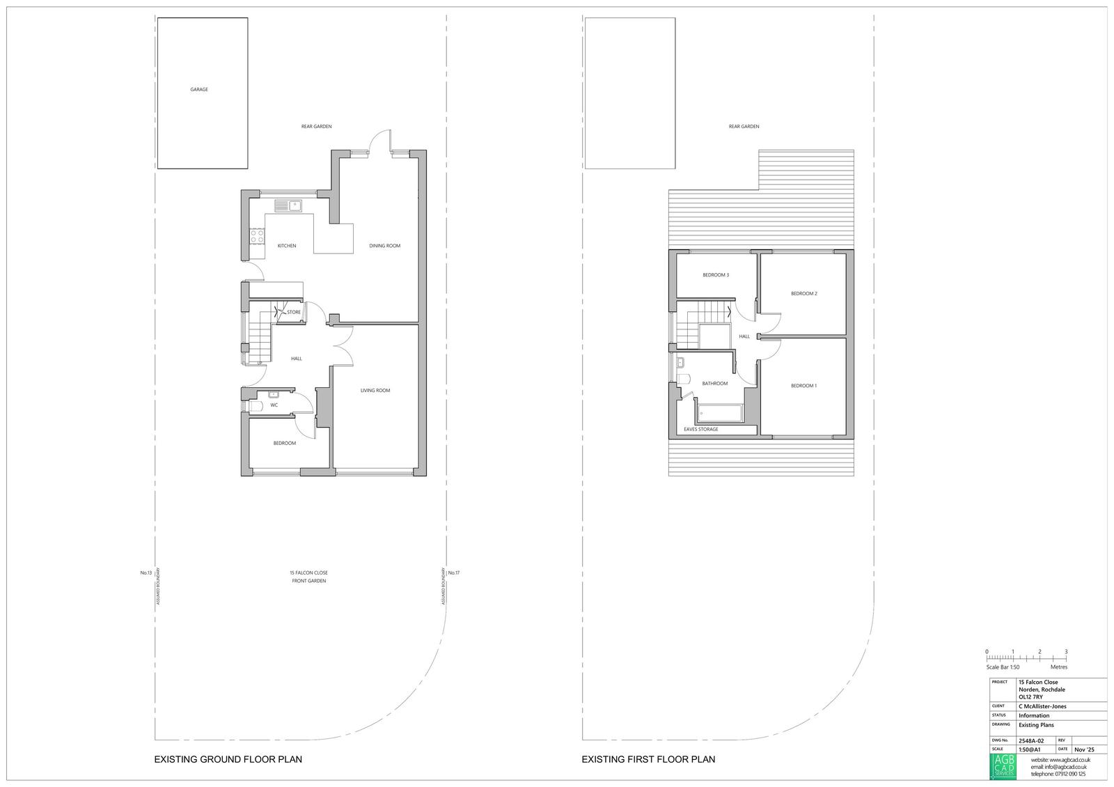
Reference 25/01179/HOUS Application type Householder planning permission Site address 15 Falcon Close, Rochdale, OL12 7RY Description Two storey side extension incorporating front dormer extension and removal of existing chimney Status Decision Made Decision Approve with Conditions

Documents

Uncategorised
Archived · Original link
Uncategorised
Archived · Original link
Uncategorised
Archived · Original link
Uncategorised
Archived · Original link
Uncategorised
Archived · Original link
Uncategorised
Archived · Original link
Uncategorised
Archived · Original link
Uncategorised
Archived · Original link
Uncategorised
Archived · Original link
Uncategorised
Archived · Original link

Have your say

Your comment matters. Councils must consider every representation that raises material planning considerations.

Write a comment