← Rochdale Borough Council

Status

Pending House extension
Received
Not recorded
New homes
0

Full proposal

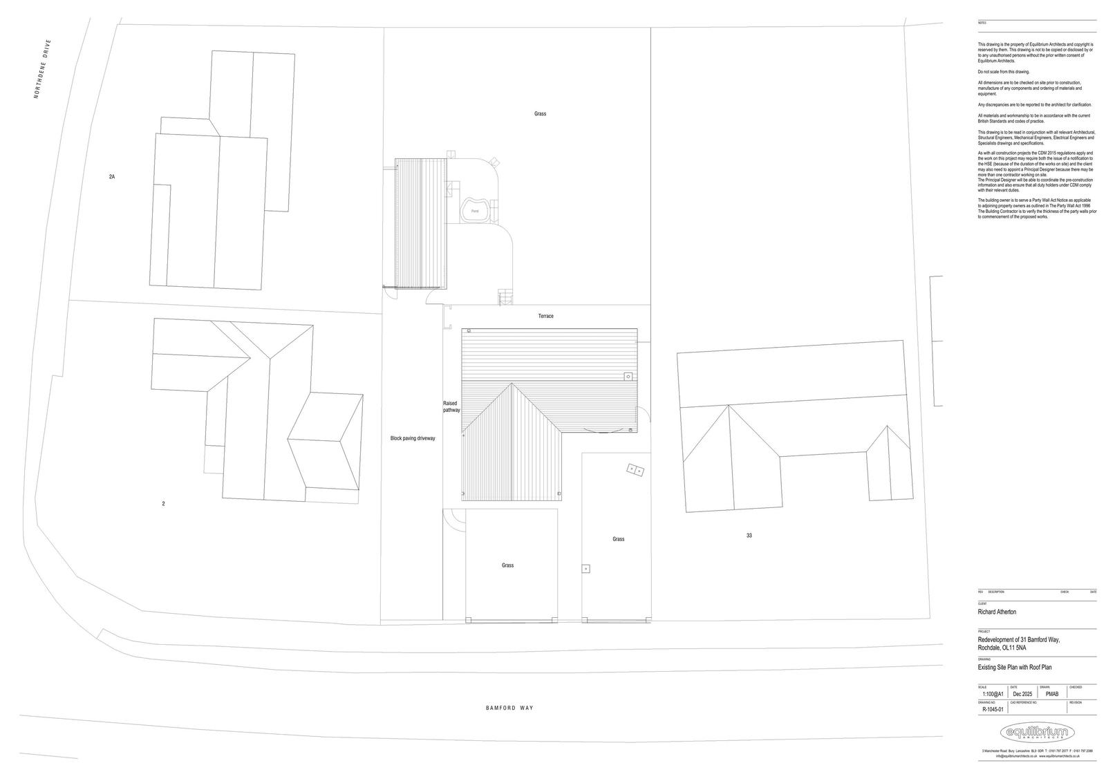
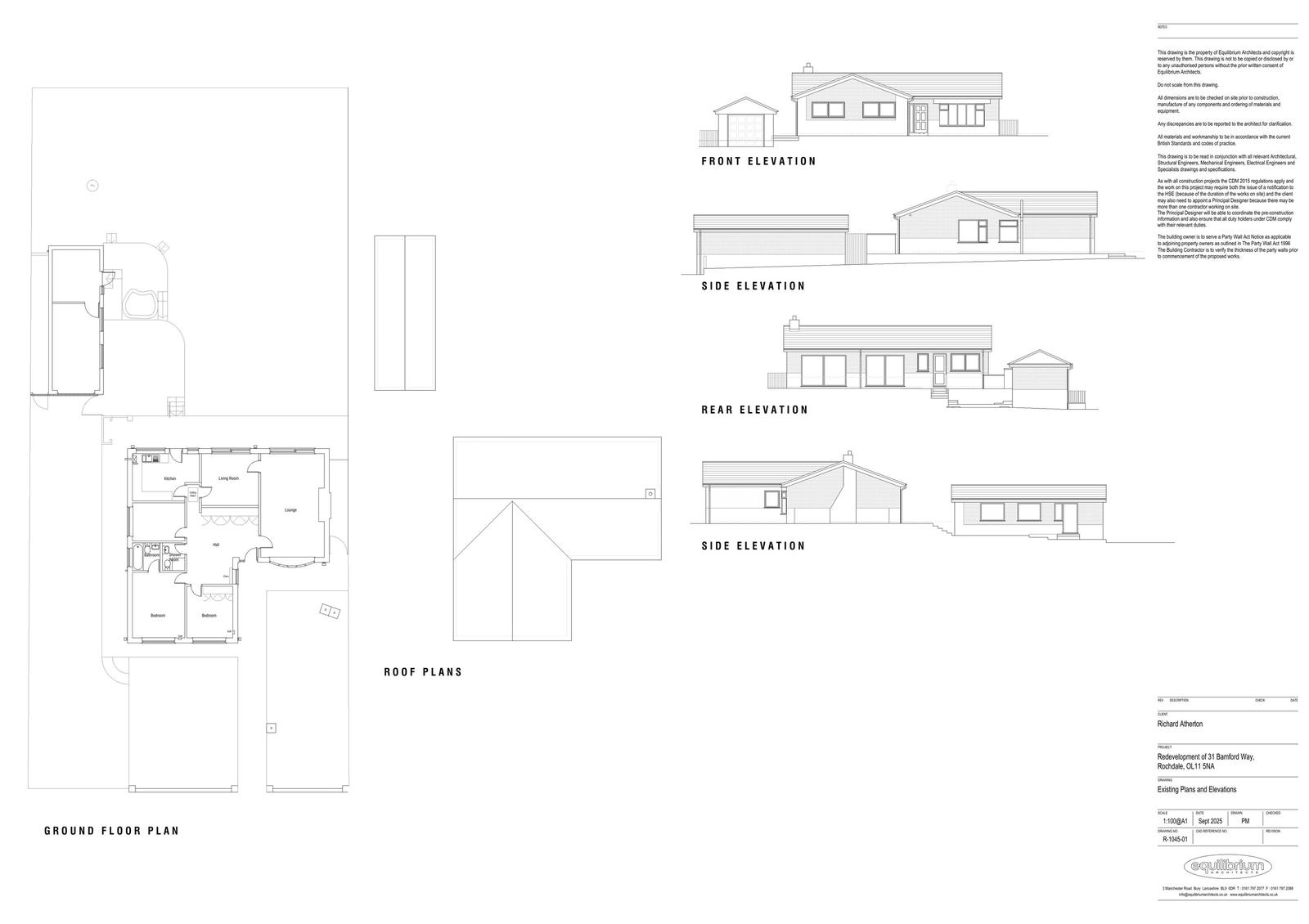
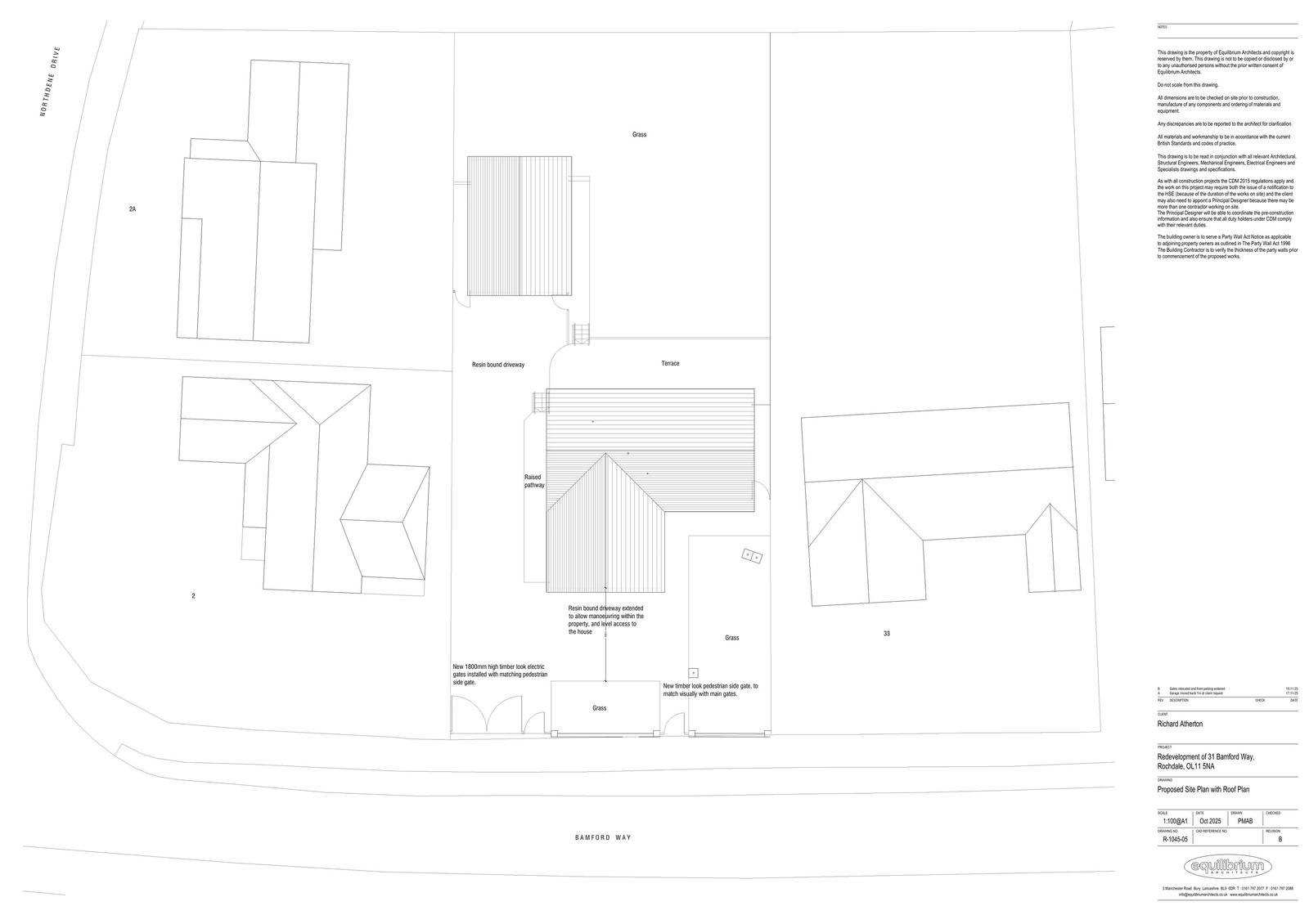
Reference 25/01182/HOUS Application type Householder planning permission Site address 31 BAMFORD WAY, ROCHDALE, OL11 5NA Description Alterations to existing bungalow including improvements to accessibility, alteration of fenestration and application of render and cladding following removal of chimney, proposed extension to garage, extension of rear raised terrace and balustrade, erection of 1.8m high gates and timber-appearance fencing Status Under Consultation Decision

Documents

Uncategorised
Archived · Original link
Uncategorised
Archived · Original link
Uncategorised
Archived · Original link
Uncategorised
Archived · Original link
Uncategorised
Archived · Original link
Uncategorised
Archived · Original link
Uncategorised
Archived · Original link
Uncategorised
Archived · Original link

Have your say

Your comment matters. Councils must consider every representation that raises material planning considerations.

Write a comment