R24/0843
Rugby Borough Council
Status
Decision Made
Change of use
Received
05 Sep 2024
New homes
1
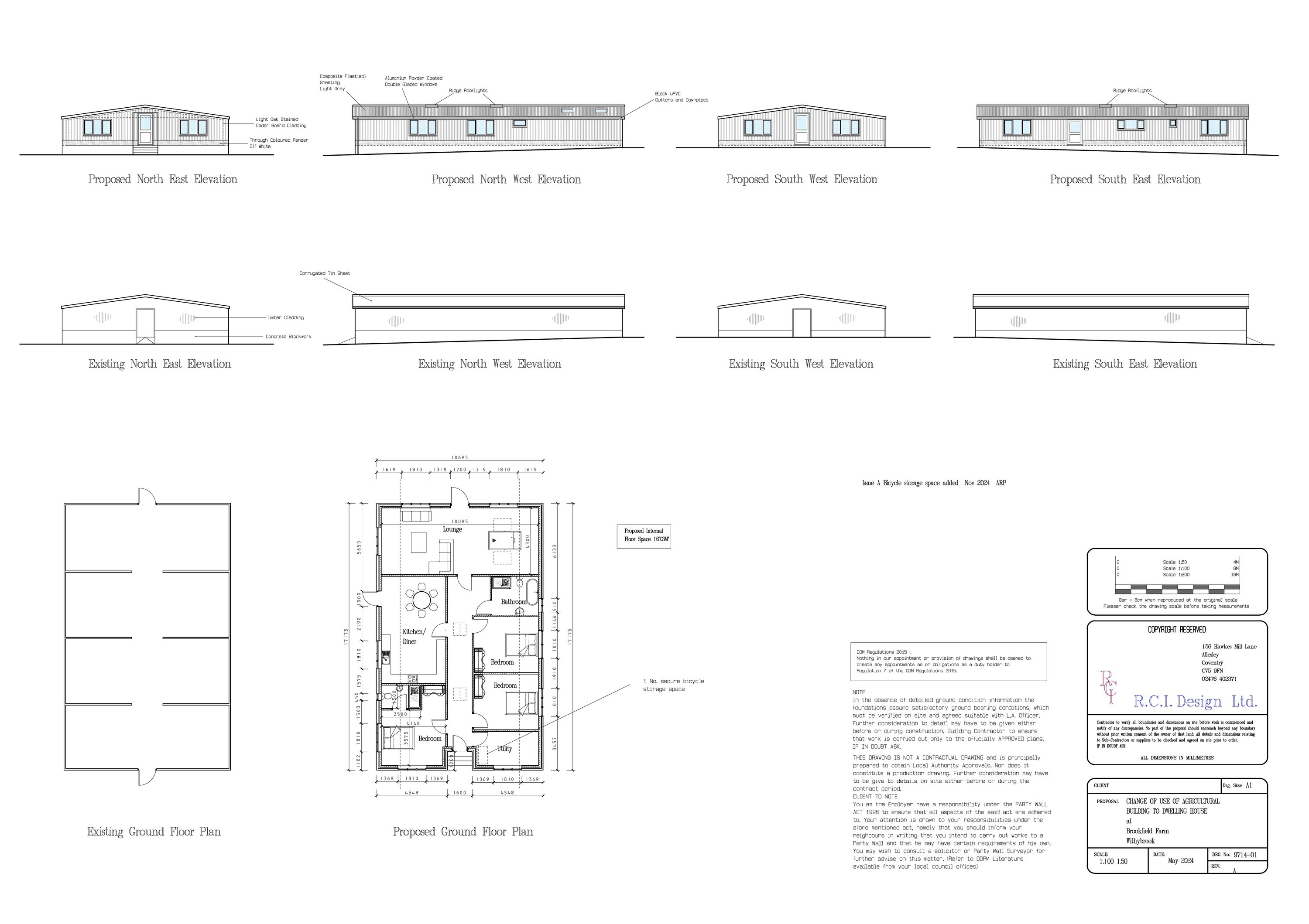
Full proposal
Prior approval under Class Q (a) and (b) for change of use of agricultural building and land within it's curtilage to 1no. dwelling with associated building operations.
Documents
Appendix Structural Report R10837/rs dated 28 August 2024 received on 11.11.2024
Supporting Information
Not yet archived
· Original link
Applicant's building operations response received on 11.11.2024
Supporting Information
Not yet archived
· Original link
Applicants response to HA (info only as parts superseded)
Superseded
Not yet archived
· Original link
Amended Plans
Archived
· Original link
Site/Block Plan 9714-02 Rev B received on 14.01.2025
Site, Location or Block Plan
Not yet archived
· Original link
Site/Block Plan 9714-03 Rev A received on 14.01.2025
Site, Location or Block Plan
Not yet archived
· Original link
Have your say
Your comment matters. Councils must consider every representation that raises material planning considerations.