← Rugby Borough Council

Status

Decision Made Change of use
Received
15 Jan 2025
New homes
1

Summary

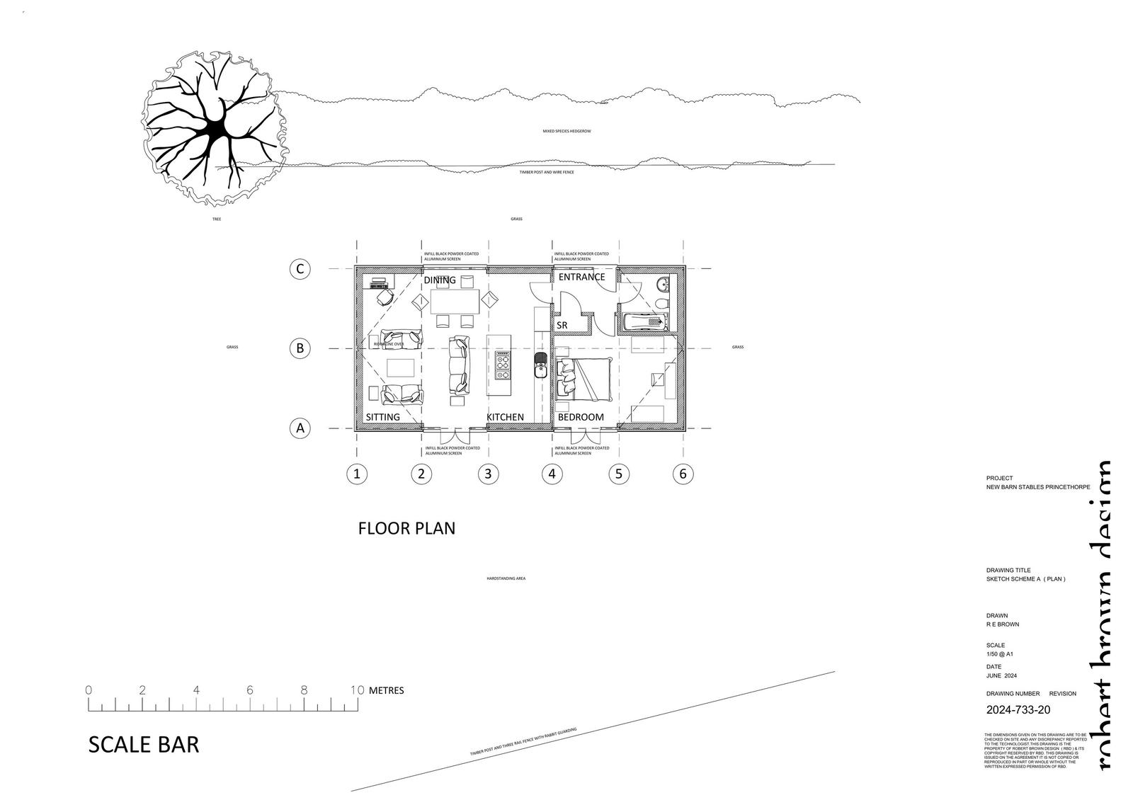
Prior approval for change of use from agricultural building to a dwellinghouse.

Full proposal

Prior approval for change of use from agricultural to dwellinghouse.

Have your say

Your comment matters. Councils must consider every representation that raises material planning considerations.

Write a comment