← Rugby Borough Council

Status

Application valid House extension
Received
Last month
New homes
0

Full proposal

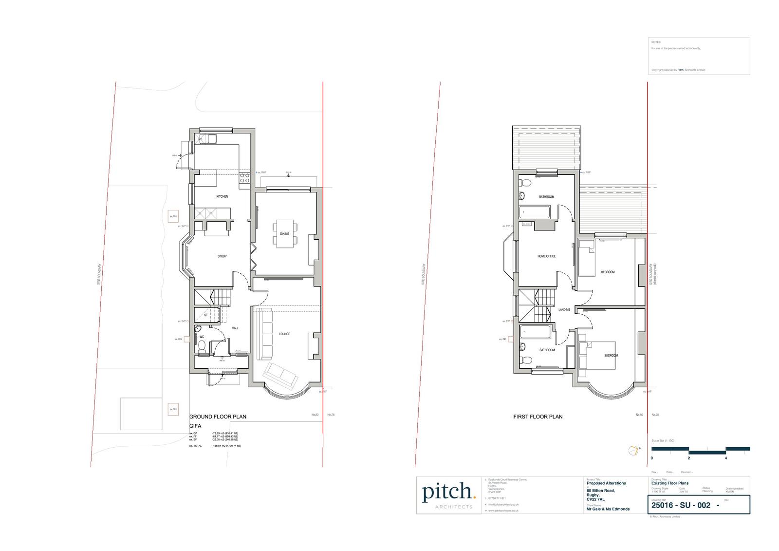
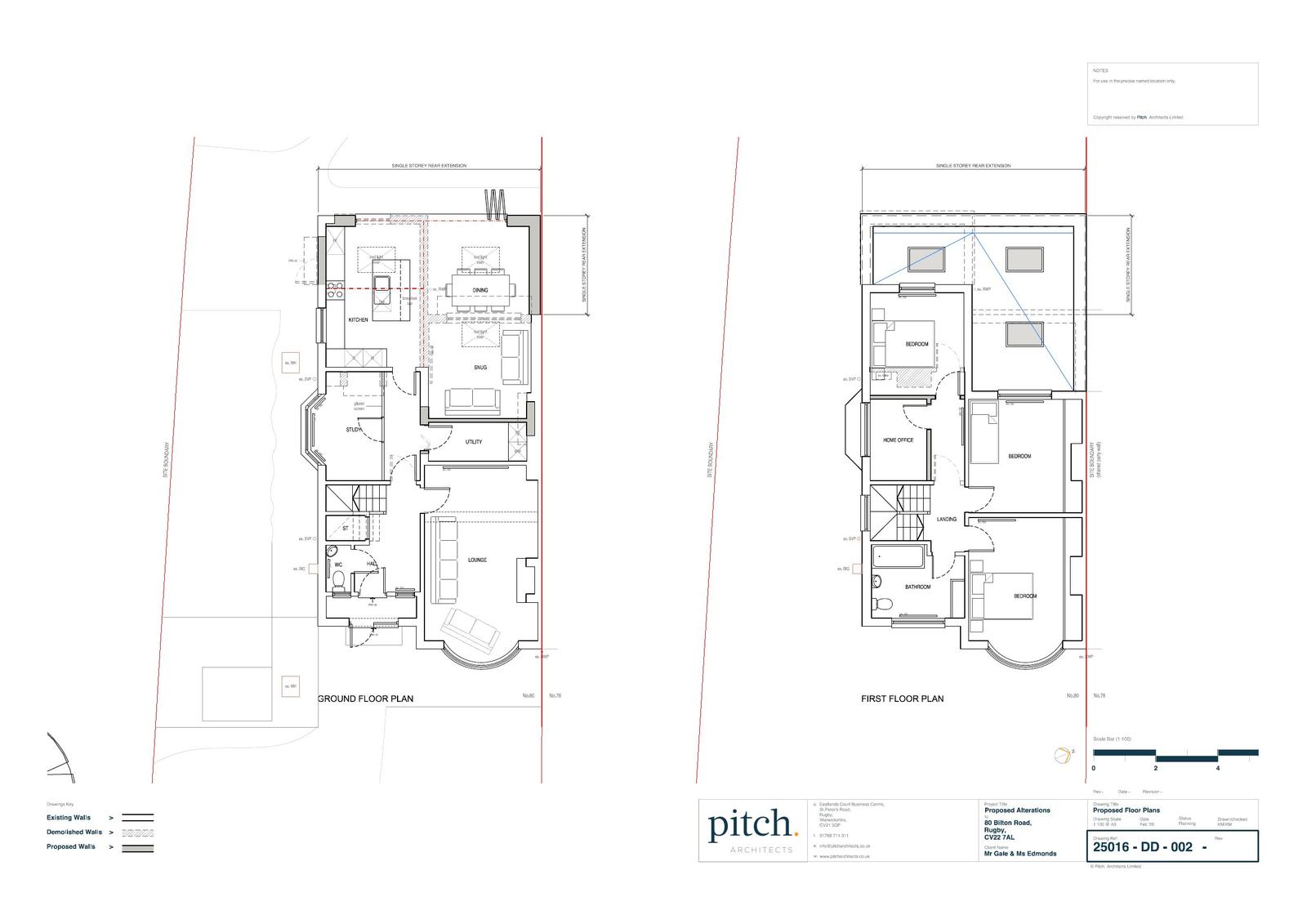
Single storey rear extension and alterations. Loft conversion including two new pitched roof dormers.

Have your say

Your comment matters. Councils must consider every representation that raises material planning considerations.

Write a comment