← Rushmoor Borough Council

Status

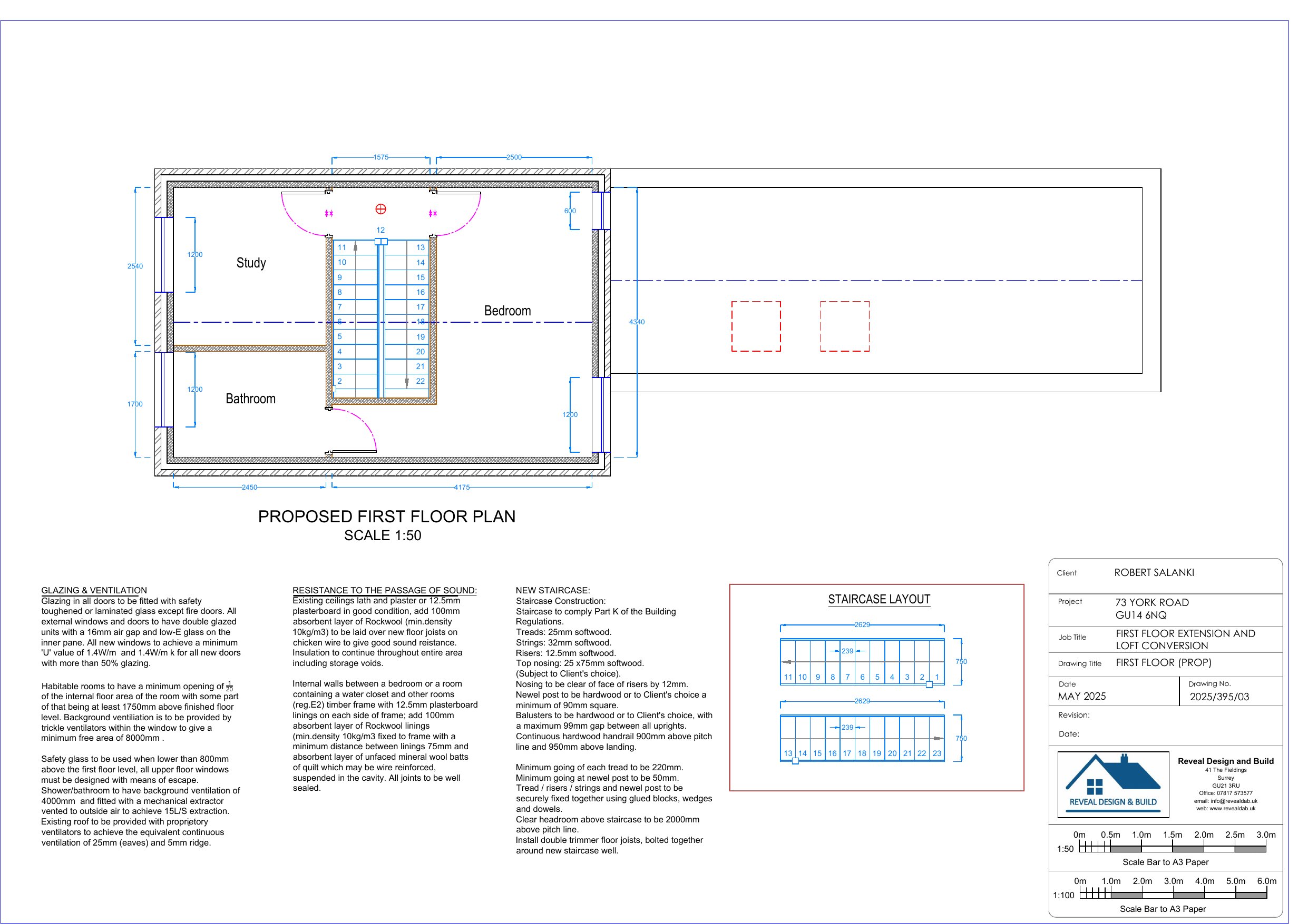
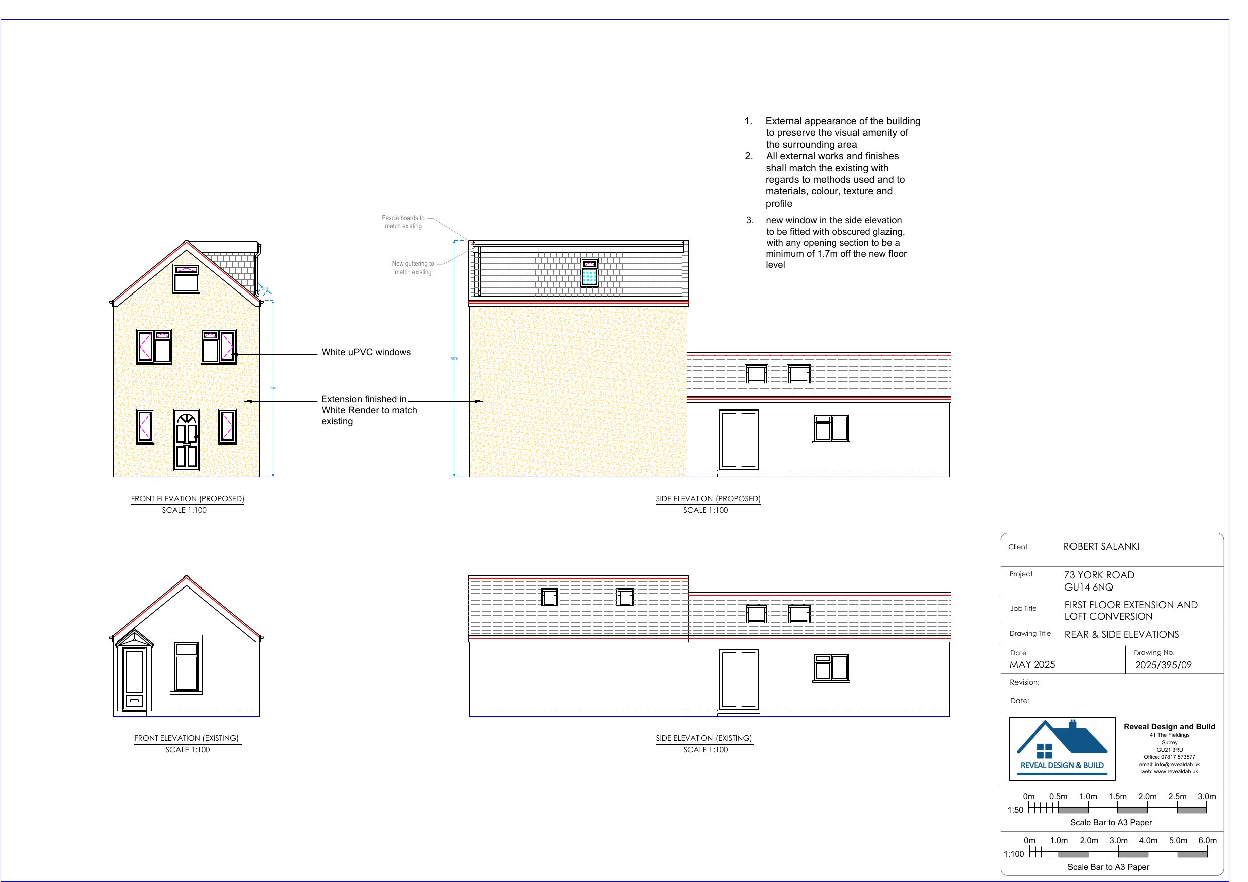
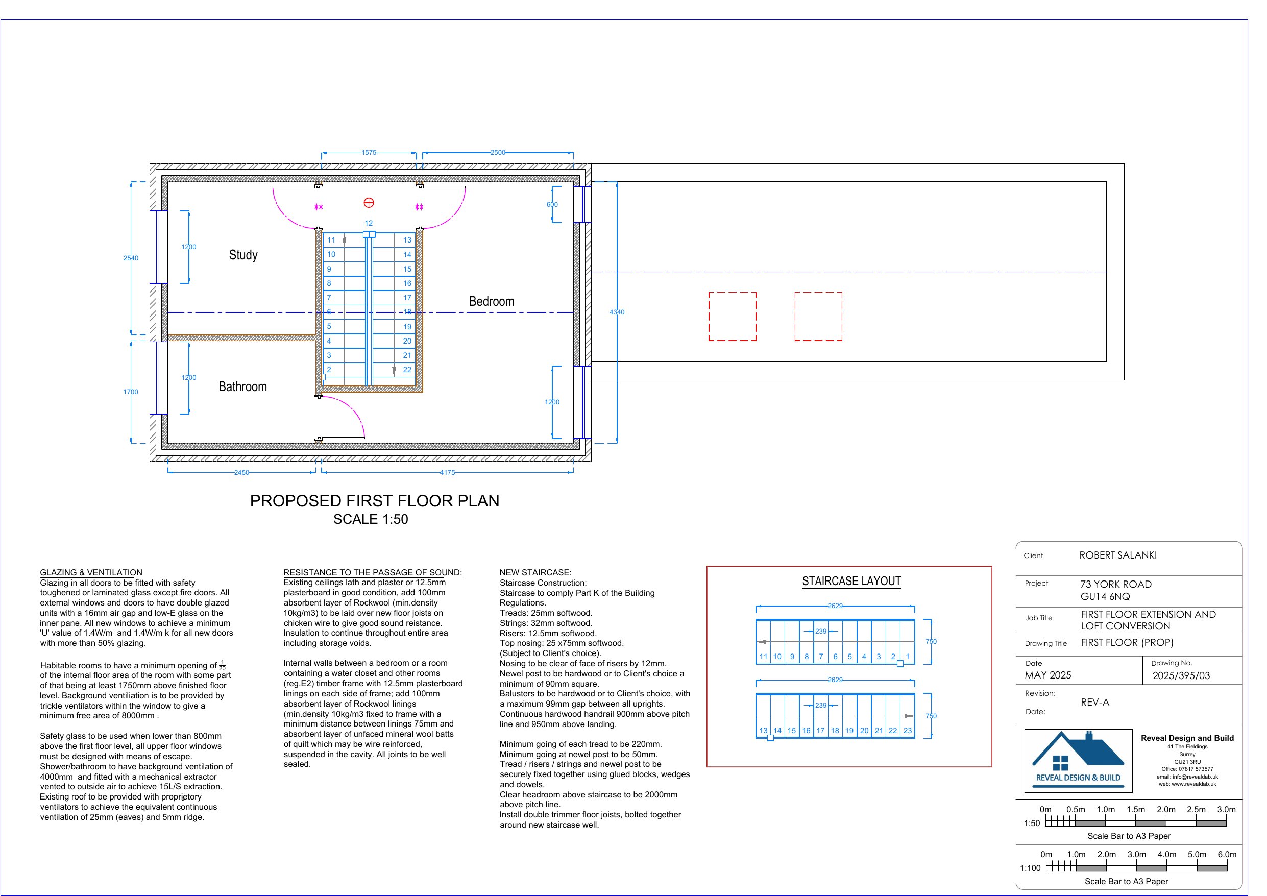
Unknown House extension
Received
22 May 2025
New homes
0

Full proposal

Addition of second storey with roof accommodation and erection of a side dormer

Documents

Plans
Archived · Original link
Application Form
Archived · Original link
Plans
Archived · Original link
Consultee Comment
Archived · Original link
Plans
Archived · Original link
Part 1
Archived · Original link
Part 1
Archived · Original link
Amended Plans
Archived · Original link
Amended Plans
Archived · Original link
Amended Plans
Archived · Original link
Amended Plans
Archived · Original link
Amended Plans
Archived · Original link
Amended Plans
Archived · Original link
Correspondence
Archived · Original link

Have your say

Your comment matters. Councils must consider every representation that raises material planning considerations.

Write a comment