← Rushmoor Borough Council

Status

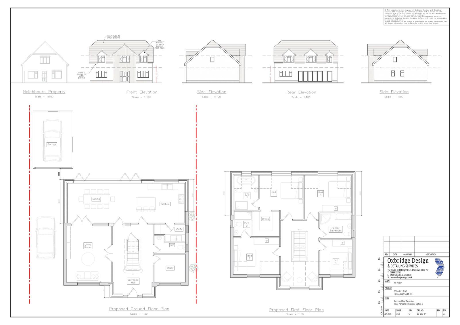
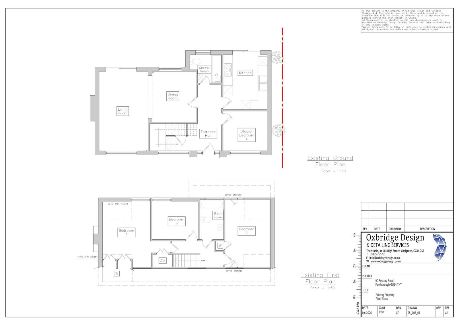
Registered House extension
Received
Last month
New homes
0

Full proposal

Erection of a two storey rear extension, two storey front extension and internal alterations

Have your say

Your comment matters. Councils must consider every representation that raises material planning considerations.

Write a comment