← Rushmoor Borough Council

Status

Awaiting decision House extension
Received
06 Feb 2026
New homes
0

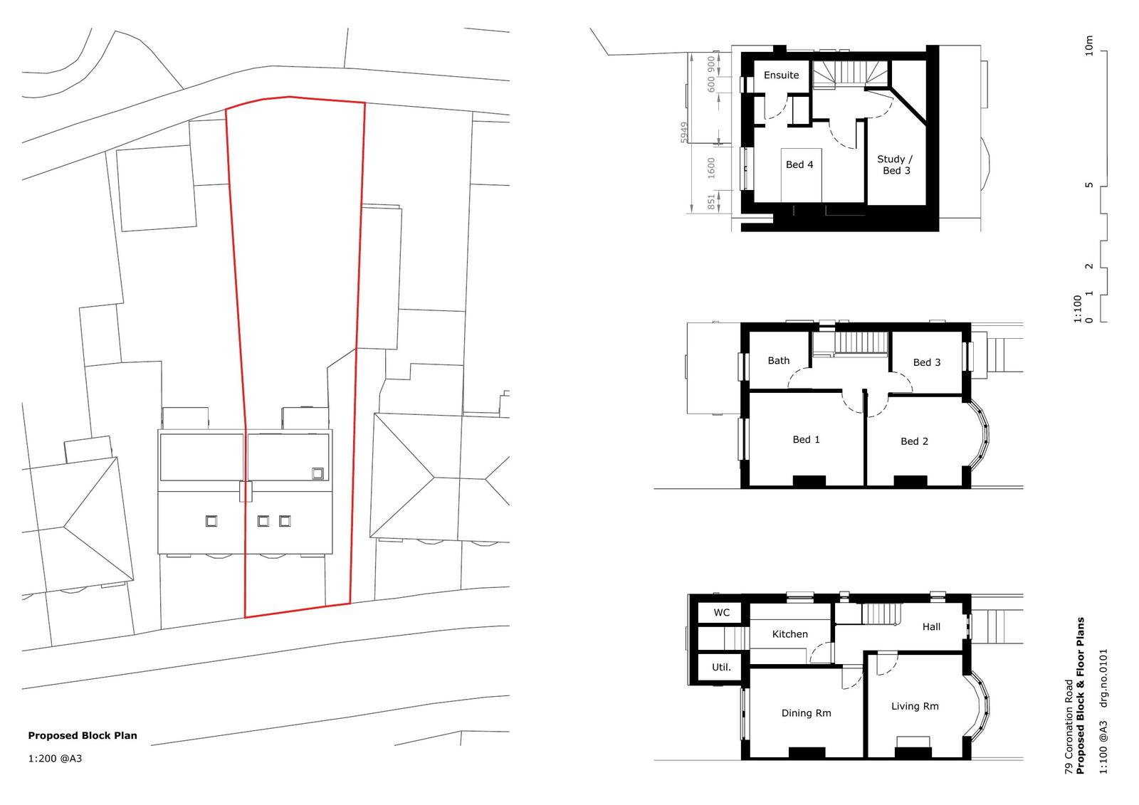
Full proposal

Formation of a hip to gable roof extension with box dormer to rear

Documents

Correspondence
Archived · Original link
Application Form
Archived · Original link
Amended Plans
Archived · Original link
Amended Plans
Archived · Original link
Plans
Archived · Original link
Amended Plans
Archived · Original link
Plans
Archived · Original link
Plans
Archived · Original link

Have your say

Your comment matters. Councils must consider every representation that raises material planning considerations.

Write a comment