← Rushmoor Borough Council

Status

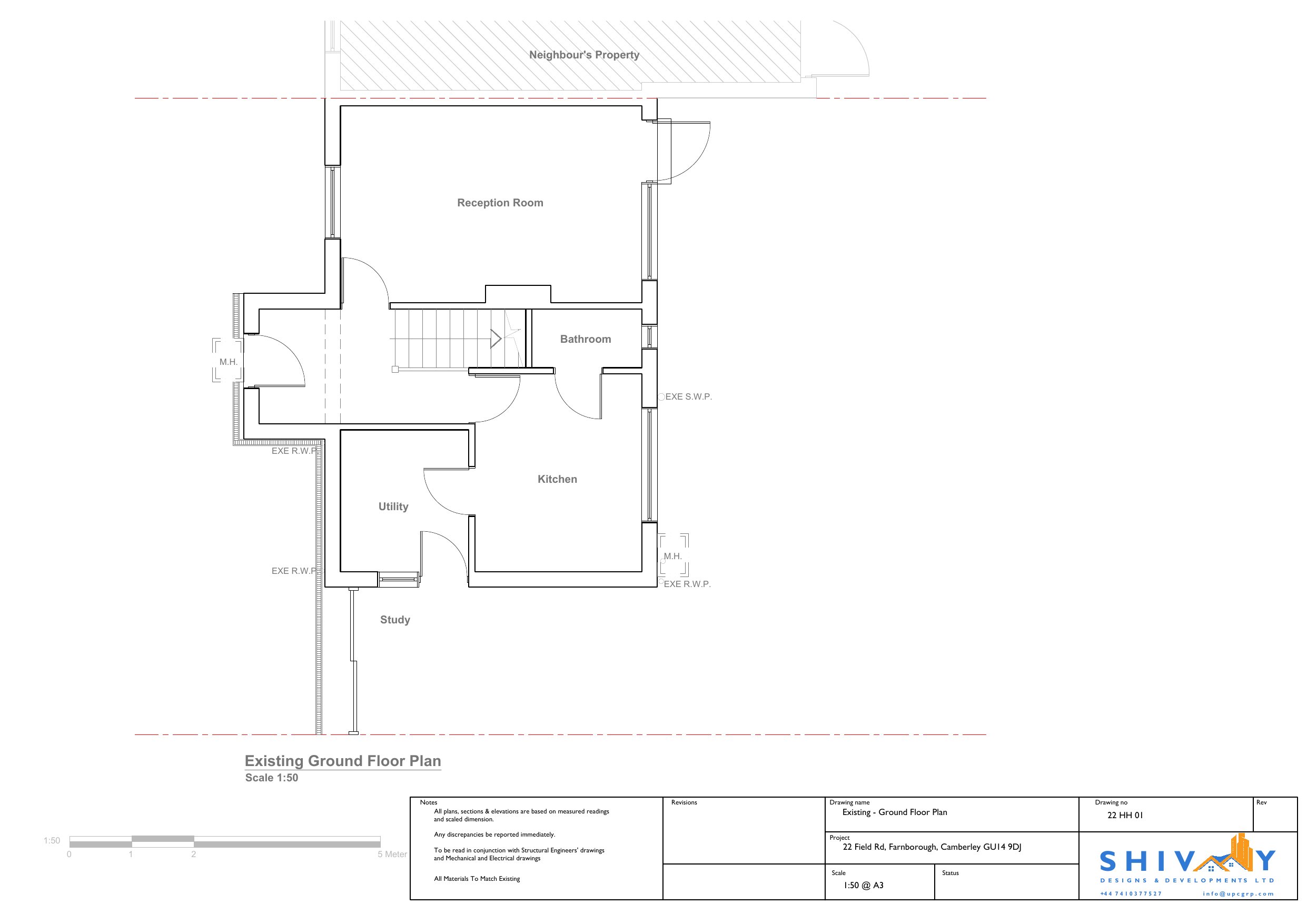
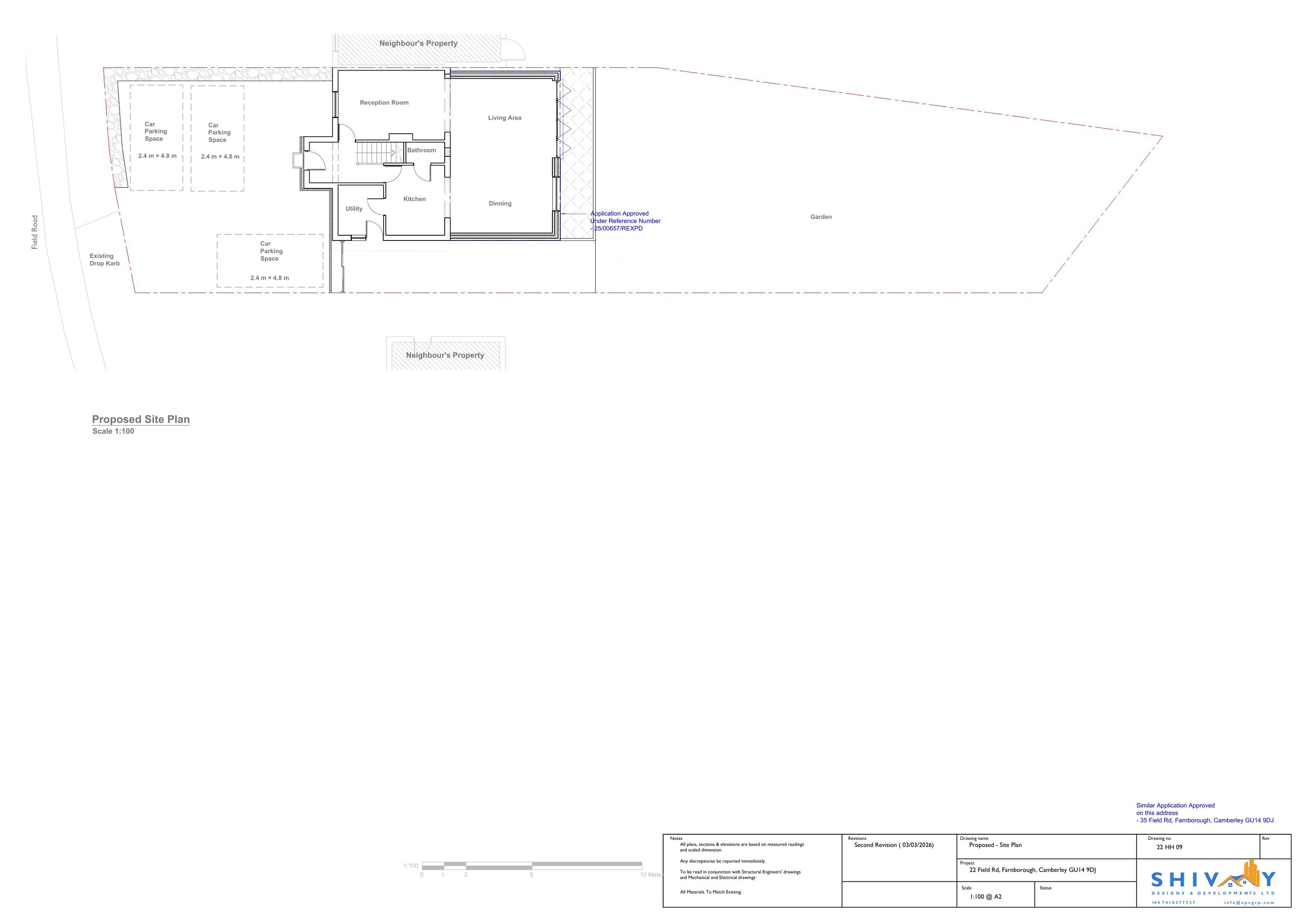
Registered House extension
Received
Last month
New homes
0

Full proposal

Erection of a part single storey and part two storey rear extension

Documents

Correspondence
Archived · Original link
Plans
Archived · Original link
Application Form
Archived · Original link
Plans
Archived · Original link
Part 1
Archived · Original link
Plans
Archived · Original link

Have your say

Your comment matters. Councils must consider every representation that raises material planning considerations.

Write a comment