← Rushmoor Borough Council

Status

Unknown House extension
Received
Last month
New homes
0

Full proposal

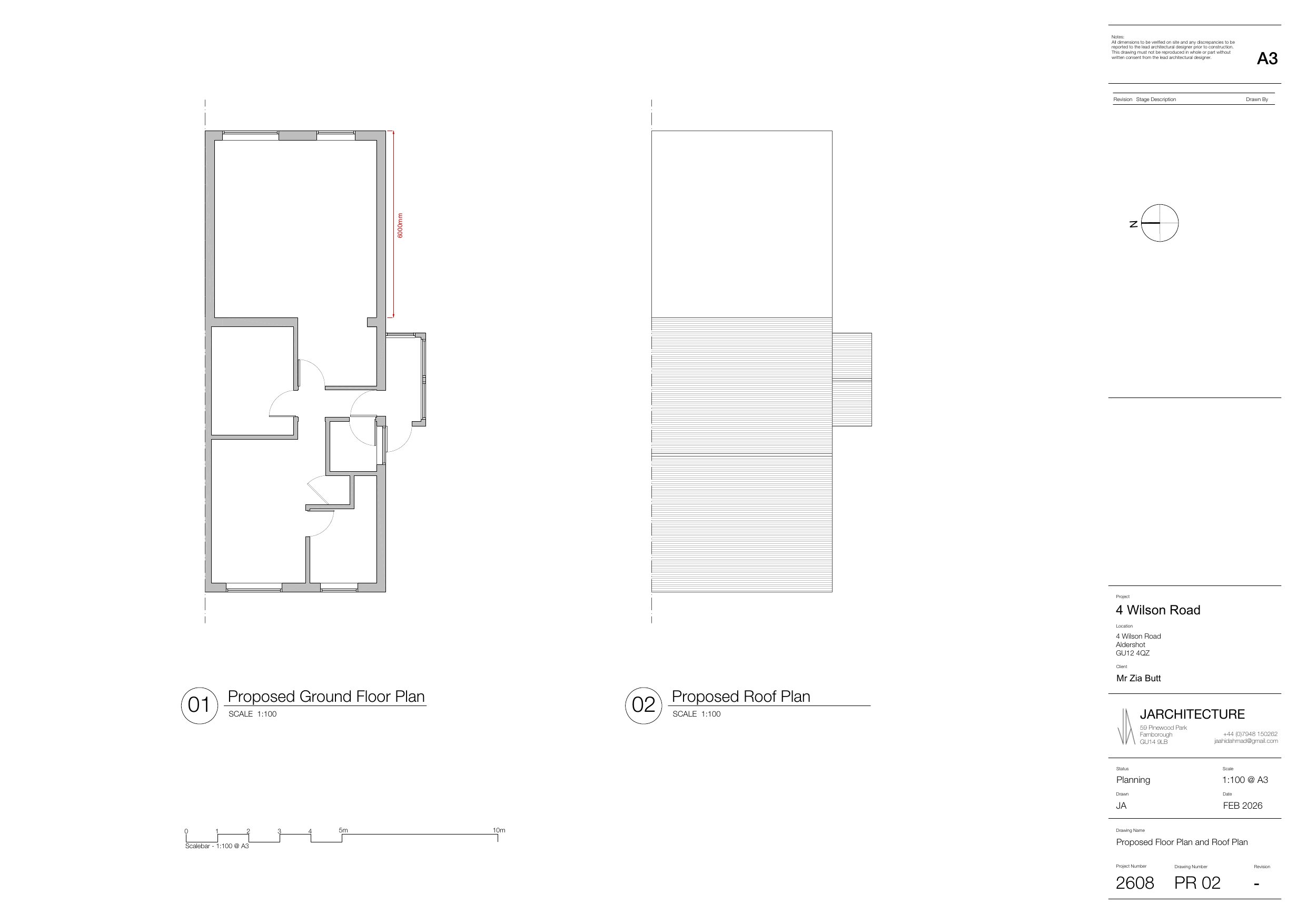
Erection of a single-storey rear extension measuring 6 metres deep by 2.45 metres to the eaves by 2.7 metres overall height

Have your say

Your comment matters. Councils must consider every representation that raises material planning considerations.

Write a comment