← Rushmoor Borough Council

Status

Registered House extension
Received
Last month
New homes
0

Full proposal

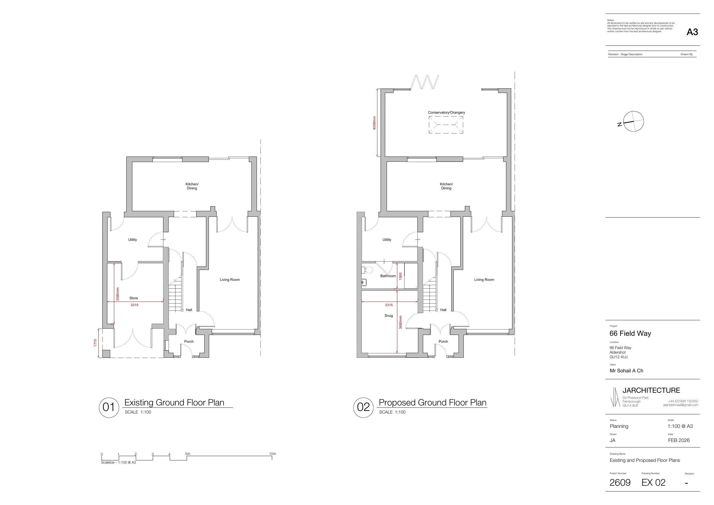
Conversion of existing garage to form habitable room, erection of single storey front extension and single storey rear orangery extension

Documents

Correspondence
Archived · Original link
Application Form
Archived · Original link
Plans
Archived · Original link
Plans
Archived · Original link
Part 1
Archived · Original link
Plans
Archived · Original link

Have your say

Your comment matters. Councils must consider every representation that raises material planning considerations.

Write a comment