← Rushmoor Borough Council

Status

Registered House extension
Received
Last month
New homes
0

Full proposal

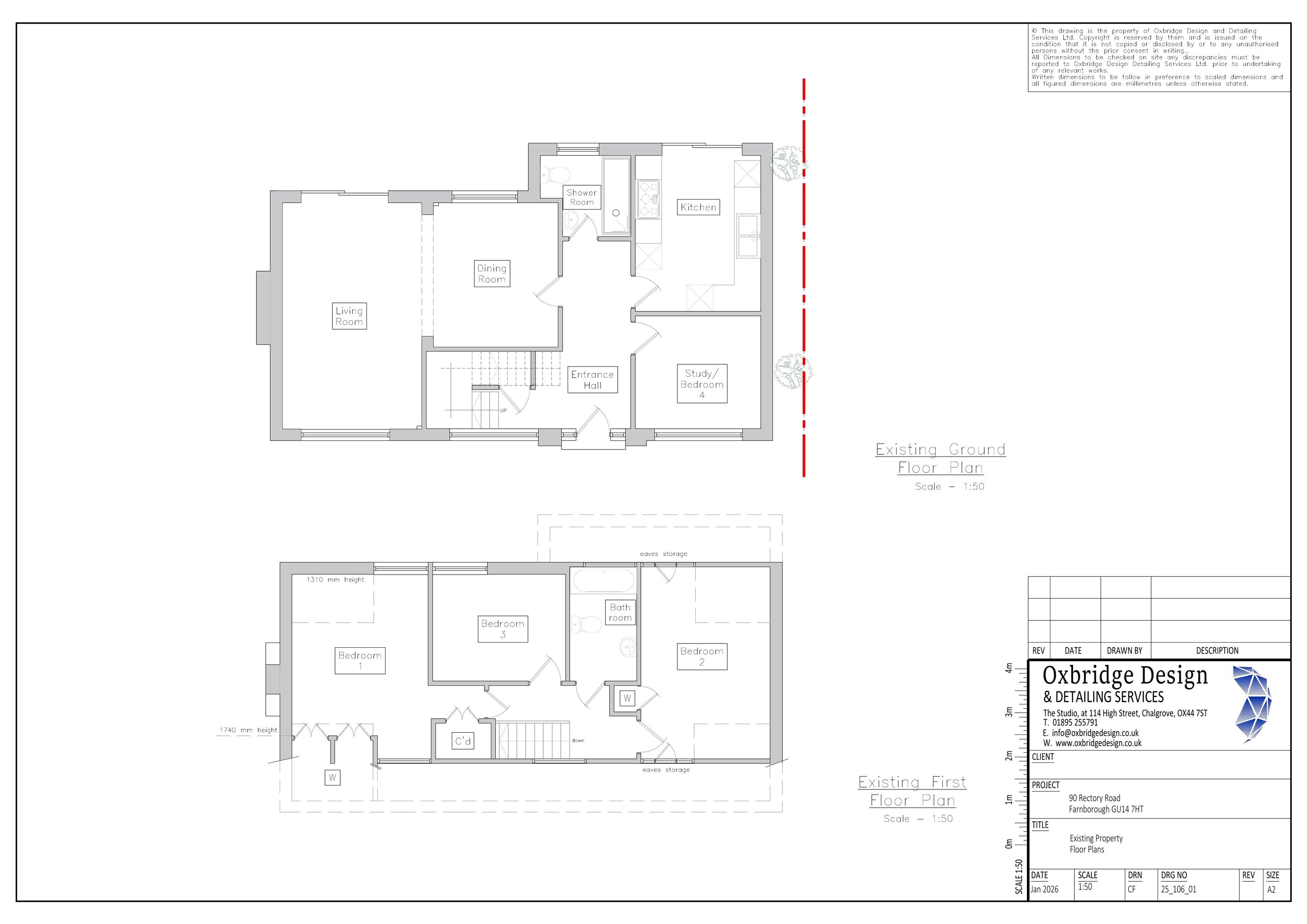
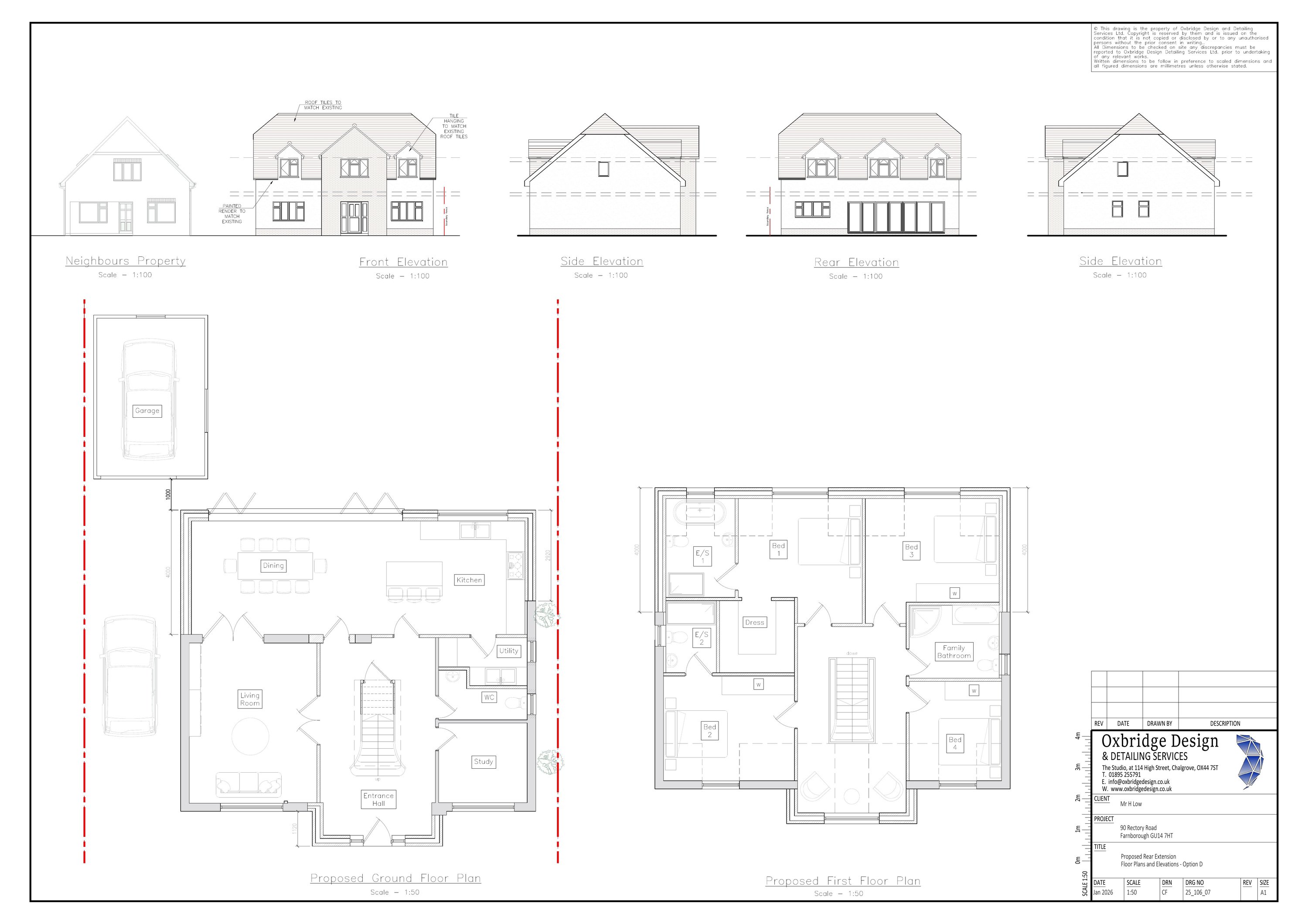
Erection of a two storey rear extension, two storey front extension and internal alterations

Have your say

Your comment matters. Councils must consider every representation that raises material planning considerations.

Write a comment