← Rushmoor Borough Council

Status

Registered House extension
Received
28 days ago
New homes
0

Full proposal

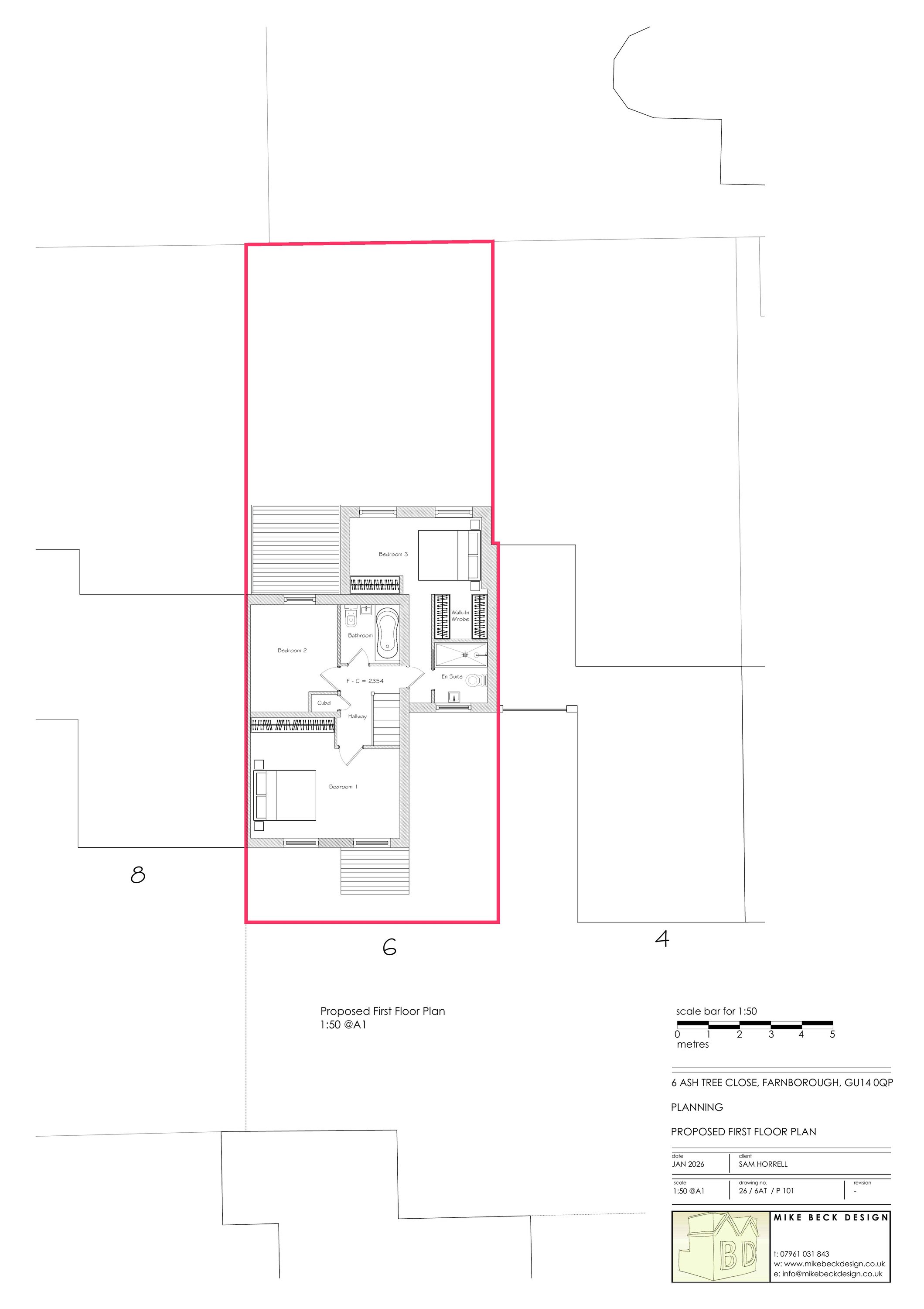
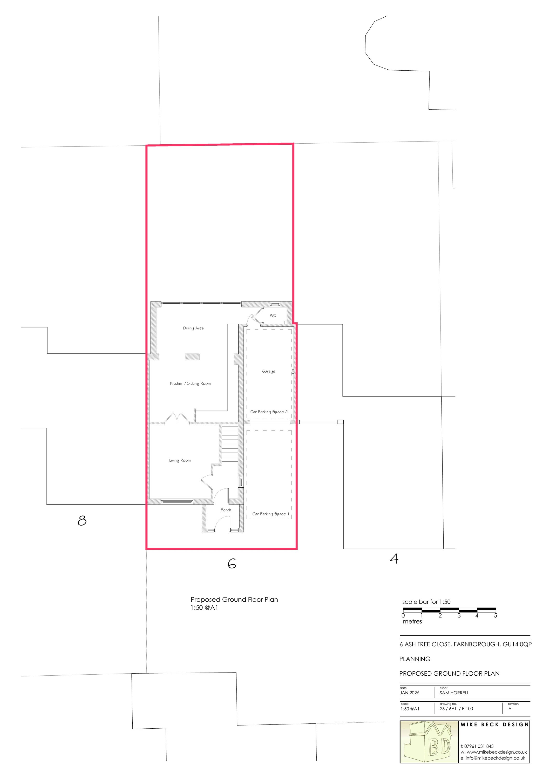
Erection of first floor side and rear extension, erection of front porch plus associated internal amendments

Have your say

Your comment matters. Councils must consider every representation that raises material planning considerations.

Write a comment