← Rutland County Council

Status

Registered Approval of reserved matters
Received
31 Oct 2024
New homes
16

Full proposal

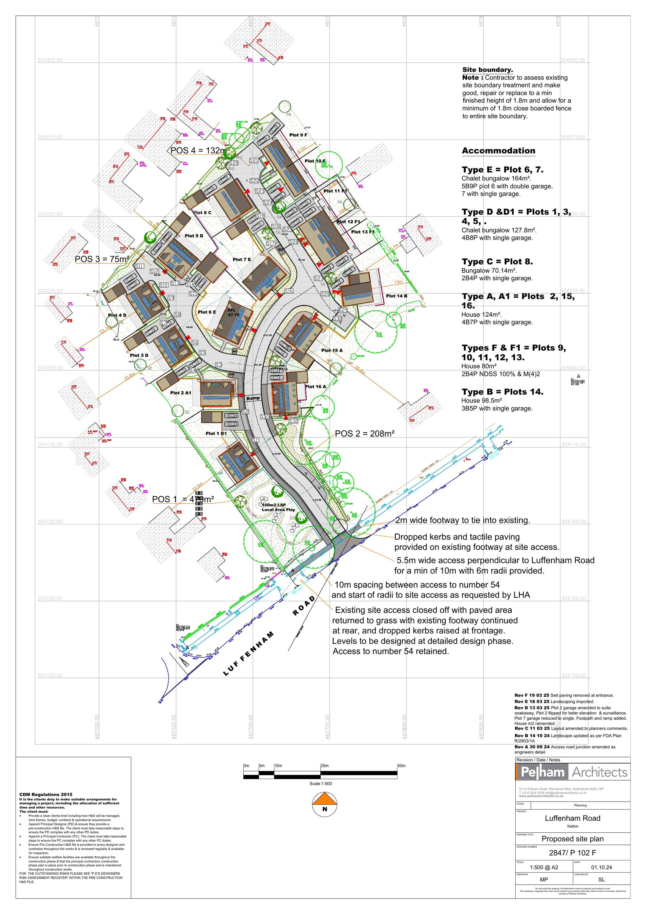
Application for approval of Reserved Matters (Appearance, Layout, Landscaping and Scale) for the erection of 16 dwellings pursuant to Conditions 2 and 3 of outline planning permission 2021/0751/MAO.

Documents

3D INDICATIVE VIEWS
Drawing Proposed
Not yet archived · Original link
ACK LETTER (STD)- SPECIAL
Correspondence
Not yet archived · Original link
ADDENDUM DRAINAGE STRATEGY
Drawing Revised
Not yet archived · Original link
ADDENDUM DRAINAGE STRATEGY
Revised Document
Not yet archived · Original link
AGENT CORRESPONDENCE
Correspondence
Not yet archived · Original link
AGENT EMAIL -UPDATE ON APPLICATION AND REVISIONS
Correspondence
Not yet archived · Original link
AGENT/PO CORRESPONDENCE
Correspondence
Not yet archived · Original link
APPLICATION FORM - WITHOUT PERSONAL DATA
Application Form
Not yet archived · Original link
ARBORICULTURAL PLANS
Drawing Revised
Not yet archived · Original link
CONSULTEE - ACTIVE TRAVEL ENGLAND
Representations
Not yet archived · Original link
CONSULTEE - ACTIVE TRAVEL ENGLAND
Representations
Not yet archived · Original link
CONSULTEE - ACTIVE TRAVEL ENGLAND PLANNING
Representations
Not yet archived · Original link
CONSULTEE - ANGLIAN WATER
Representations
Not yet archived · Original link
CONSULTEE - ANGLIAN WATER
Representations
Not yet archived · Original link
CONSULTEE - ANGLIAN WATER
Representations
Not yet archived · Original link
CONSULTEE - ARCHAEOLOGY
Representations
Not yet archived · Original link
CONSULTEE - ARCHAEOLOGY
Representations
Not yet archived · Original link
CONSULTEE - DESIGN OFFICER
Representations
Not yet archived · Original link
CONSULTEE - DESIGN OFFICER
Representations
Not yet archived · Original link
CONSULTEE - DESIGN OFFICER
Representations
Not yet archived · Original link
CONSULTEE - DESIGN OFFICER (DESIGN SPD ASSESSMENT)
Representations
Not yet archived · Original link
CONSULTEE - DESIGN OFFICER ASSESSMENT (REVISED)
Representations
Not yet archived · Original link
CONSULTEE - DESIGN OFFICER ASSESSMENT (SUPERESEDED)
Representations
Not yet archived · Original link
CONSULTEE - DESIGN OFFICER ASSESSMENT (SUPERESEDED)
Representations
Not yet archived · Original link
CONSULTEE - ECOLOGY
Representations
Not yet archived · Original link
CONSULTEE - ECOLOGY
Representations
Not yet archived · Original link
CONSULTEE - ECOLOGY
Representations
Not yet archived · Original link
CONSULTEE - ECOLOGY
Representations
Not yet archived · Original link
CONSULTEE - FORESTRY OFFICER
Representations
Not yet archived · Original link
CONSULTEE - FORESTRY OFFICER
Representations
Not yet archived · Original link
CONSULTEE - FORESTRY OFFICER
Representations
Not yet archived · Original link
CONSULTEE - FORESTRY OFFICER
Representations
Not yet archived · Original link
CONSULTEE - FORESTRY OFFICER
Representations
Not yet archived · Original link
CONSULTEE - FORESTRY OFFICER
Representations
Not yet archived · Original link
CONSULTEE - HIGHWAYS
Representations
Not yet archived · Original link
CONSULTEE - HIGHWAYS
Representations
Not yet archived · Original link
CONSULTEE - HIGHWAYS
Representations
Not yet archived · Original link
CONSULTEE - HIGHWAYS
Representations
Not yet archived · Original link
CONSULTEE - HIGHWAYS
Representations
Not yet archived · Original link
CONSULTEE - HOUSING STRATEGY
Representations
Not yet archived · Original link
CONSULTEE - HOUSING STRATEGY
Representations
Not yet archived · Original link
CONSULTEE - HOUSING STRATEGY
Representations
Not yet archived · Original link
CONSULTEE - KETTON PARISH COUNCIL
Representations
Not yet archived · Original link
CONSULTEE - KETTON PARISH COUNCIL
Representations
Not yet archived · Original link
CONSULTEE - LCC ARCHAEOLOGY
Representations
Not yet archived · Original link
CONSULTEE - LCC ARCHAEOLOGY
Representations
Not yet archived · Original link
CONSULTEE - LEAD LOCAL FLOOD AUTHORITY
Representations
Not yet archived · Original link
CONSULTEE - LEAD LOCAL FLOOD AUTHORITY OFFICER
Representations
Not yet archived · Original link
CONSULTEE - LEAD LOCAL FLOOD AUTHORITY OFFICER
Representations
Not yet archived · Original link
CONSULTEE - LEAD LOCAL FLOOD AUTHORITY OFFICER
Representations
Not yet archived · Original link
CONSULTEE - LEICESTER, LEICESTERSHIRE AND RUTLAND INTEGRATED CARE BOARD (ICB)
Representations
Not yet archived · Original link
CONSULTEE - LEICESTERSHIRE POLICE
Representations
Not yet archived · Original link
CONSULTEE - NHS (LEICESTER, LEICESTERSHIRE & RUTLAND)
Representations
Not yet archived · Original link
CONSULTEE - NHS LEICESTER, LEICESTERSHIRE AND RUTLAND
Representations
Not yet archived · Original link
CONSULTEE - PARISH COUNCIL
Representations
Not yet archived · Original link
CONSULTEE - RCC HIGHWAYS
Representations
Not yet archived · Original link
CONSULTEE - SEVERN TRENT
Representations
Not yet archived · Original link
CORRESPONDENCE AND DOCUMENT ISSUE REGISTER
Correspondence
Not yet archived · Original link
COVERING LETTER
Supporting Document
Not yet archived · Original link
COVERING LETTER - AMENDED INFORMATION
Supporting Document
Not yet archived · Original link
COVERING LETTER - REVISED DOCMENTS
Supporting Document
Not yet archived · Original link
DEED OF VARIATION DATED 29.07.2025
Planning Obligations
Not yet archived · Original link
DELIVERY AND BIN COLLECTION VEHICLES
Drawing Revised
Not yet archived · Original link
DELIVERY AND BIN COLLECTION VEHICLES PLAN
Superseded Document
Not yet archived · Original link
DESIGN AND ACCESS STATEMENT
Superseded Document
Not yet archived · Original link
DESIGN AND ACCESS STATEMENT - ADDENDUM
Revised Document
Not yet archived · Original link
DESIGN RESPONSE SHEET
Revised Document
Not yet archived · Original link
DESIGN SPD ASSESSMENT SHEET
Supporting Document
Not yet archived · Original link
DESIGN SPD ASSESSMENT SHEET
Superseded Document
Not yet archived · Original link
DISTANCES TO NEIGHBOURS
Drawing Revised
Not yet archived · Original link
DISTANCES TO NEIGHBOURS PLAN
Drawing Superceded
Not yet archived · Original link
DRAINAGE STRATEGY - ADDENDUM
Superseded Document
Not yet archived · Original link
DRAINAGE STRATEGY PLAN ADDENDUM
Drawing Superceded
Not yet archived · Original link
EMAIL FROM PO TO AGENT
Correspondence
Not yet archived · Original link
EMERGENCY VEHICLE ACCESS
Drawing Revised
Not yet archived · Original link
EMERGENCY VEHICLE ACCESS PLAN
Drawing Revised
Not yet archived · Original link
EOT
Agreement
Not yet archived · Original link
EOT AGREEMENT
Agreement
Not yet archived · Original link
EOT AGREEMENT
Agreement
Not yet archived · Original link
EOT AGREEMENT
Agreement
Not yet archived · Original link
EOT AGREEMENT
Agreement
Not yet archived · Original link
EOT AGREEMENT
Agreement
Not yet archived · Original link
EOT AGREEMENT
Agreement
Not yet archived · Original link
EOT AGREEMENT - 1ST OCTOBER 2025
Correspondence
Not yet archived · Original link
HARD LANDSCAPE PLAN
Drawing Proposed
Not yet archived · Original link
HOUSE TYPE PLOT 1 - TYPE D1
Drawing Superceded
Not yet archived · Original link
HOUSE TYPE PLOT 14 - TYPE E
Drawing Superceded
Not yet archived · Original link
HOUSE TYPE PLOT 15 - TYPE A
Drawing Superceded
Not yet archived · Original link
HOUSE TYPE PLOT 16 - TYPE A
Drawing Superceded
Not yet archived · Original link
HOUSE TYPE PLOT 2 - TYPE A1
Drawing Superceded
Not yet archived · Original link
HOUSE TYPE PLOT 3 - TYPE D
Drawing Superceded
Not yet archived · Original link
HOUSE TYPE PLOT 4 - TYPE D
Drawing Superceded
Not yet archived · Original link
HOUSE TYPE PLOT 5 - TYPE D
Drawing Superceded
Not yet archived · Original link
HOUSE TYPE PLOT 6 - TYPE E
Drawing Superceded
Not yet archived · Original link
HOUSE TYPE PLOT 7 - TYPE E
Drawing Superceded
Not yet archived · Original link
HOUSE TYPE PLOT 8 - TYPE C
Drawing Superceded
Not yet archived · Original link
HOUSE TYPE PLOTS 11, 12 AND 13 TYPE F1
Drawing Superceded
Not yet archived · Original link
HOUSE TYPE PLOTS 9 AND 10 - TYPE F
Drawing Superceded
Not yet archived · Original link
HOUSETYPE - PLOT 1
Drawing Revised
Not yet archived · Original link
HOUSETYPE - PLOT 1
Drawing Superceded
Not yet archived · Original link
HOUSETYPE - PLOT 14
Drawing Revised
Not yet archived · Original link
HOUSETYPE - PLOT 15
Drawing Revised
Not yet archived · Original link
HOUSETYPE - PLOT 16
Drawing Revised
Not yet archived · Original link
HOUSETYPE - PLOT 2
Drawing Revised
Not yet archived · Original link
HOUSETYPE - PLOT 3
Drawing Revised
Not yet archived · Original link
HOUSETYPE - PLOT 4
Drawing Revised
Not yet archived · Original link
HOUSETYPE - PLOT 4
Drawing Superceded
Not yet archived · Original link
HOUSETYPE - PLOT 5
Drawing Superceded
Not yet archived · Original link
HOUSETYPE - PLOT 5
Drawing Revised
Not yet archived · Original link
HOUSETYPE - PLOT 6
Drawing Revised
Not yet archived · Original link
HOUSETYPE - PLOT 7
Drawing Revised
Not yet archived · Original link
HOUSETYPE - PLOT 8
Drawing Revised
Not yet archived · Original link
HOUSETYPE - PLOTS 11, 12, 13
Drawing Revised
Not yet archived · Original link
HOUSETYPE - PLOTS 9 AND 10
Drawing Revised
Not yet archived · Original link
INDICATIVE VIEWS
Drawing Revised
Not yet archived · Original link
INTERESTED PARTY - (NEIGHBOUR/M OF PUBLIC) - 1 CAPENDALE CLOSE, KETTON
Representations
Not yet archived · Original link
INTERESTED PARTY - (NEIGHBOUR/M OF PUBLIC) - 12 NORTHWICK ROAD, KETTON
Representations
Not yet archived · Original link
INTERESTED PARTY - (NEIGHBOUR/M OF PUBLIC) - 12 NORTHWICK ROAD, KETTON
Representations
Not yet archived · Original link
INTERESTED PARTY - (NEIGHBOUR/M OF PUBLIC) - 13 PARK ROAD, KETTON
Representations
Not yet archived · Original link
INTERESTED PARTY - (NEIGHBOUR/M OF PUBLIC) - 14 NORTHWICK ROAD, KETTON
Representations
Not yet archived · Original link
INTERESTED PARTY - (NEIGHBOUR/M OF PUBLIC) - 14 NORTHWICK ROAD, KETTON
Representations
Not yet archived · Original link
INTERESTED PARTY - (NEIGHBOUR/M OF PUBLIC) - 14 NORTHWICK ROAD, KETTON
Representations
Not yet archived · Original link
INTERESTED PARTY - (NEIGHBOUR/M OF PUBLIC) - 14 NORTHWICK ROAD, KETTON
Representations
Not yet archived · Original link
INTERESTED PARTY - (NEIGHBOUR/M OF PUBLIC) - 14 NORTHWICK ROAD, KETTON
Representations
Not yet archived · Original link
INTERESTED PARTY - (NEIGHBOUR/M OF PUBLIC) - 14 NORTHWICK ROAD, KETTON
Representations
Not yet archived · Original link
INTERESTED PARTY - (NEIGHBOUR/M OF PUBLIC) - 14 NORTHWICK ROAD, KETTON
Representations
Not yet archived · Original link
INTERESTED PARTY - (NEIGHBOUR/M OF PUBLIC) - 14 NORTHWICK ROAD, KETTON
Representations
Not yet archived · Original link
INTERESTED PARTY - (NEIGHBOUR/M OF PUBLIC) - 16 NORTHWICK ROAD, KETTON
Representations
Not yet archived · Original link
INTERESTED PARTY - (NEIGHBOUR/M OF PUBLIC) - 16 NORTHWICK ROAD, KETTON
Representations
Not yet archived · Original link
INTERESTED PARTY - (NEIGHBOUR/M OF PUBLIC) - 18 NORTHWICK ROAD, KETTON
Representations
Not yet archived · Original link
INTERESTED PARTY - (NEIGHBOUR/M OF PUBLIC) - 2 BARTLES HOLLOW, KETTON
Representations
Not yet archived · Original link
INTERESTED PARTY - (NEIGHBOUR/M OF PUBLIC) - 2 NORTHWICK ROAD KETTON & 54 LUFFEN
Representations
Not yet archived · Original link
INTERESTED PARTY - (NEIGHBOUR/M OF PUBLIC) - 2 NORTHWICK ROAD, KETTON
Representations
Not yet archived · Original link
INTERESTED PARTY - (NEIGHBOUR/M OF PUBLIC) - 2 STOCK HILL MEWS, STOCKS HILL, KET
Representations
Not yet archived · Original link
INTERESTED PARTY - (NEIGHBOUR/M OF PUBLIC) - 22 LUFFENHAM ROAD, KETTON
Representations
Not yet archived · Original link
INTERESTED PARTY - (NEIGHBOUR/M OF PUBLIC) - 24 LUFFENHAM ROAD, KETTON
Representations
Not yet archived · Original link
INTERESTED PARTY - (NEIGHBOUR/M OF PUBLIC) - 24 NORTHWICK ROAD, KETTON
Representations
Not yet archived · Original link
INTERESTED PARTY - (NEIGHBOUR/M OF PUBLIC) - 25 CHURCH ROAD, KETTON
Representations
Not yet archived · Original link
INTERESTED PARTY - (NEIGHBOUR/M OF PUBLIC) - 29 KELTHORPE CLOSE, KETTON
Representations
Not yet archived · Original link
INTERESTED PARTY - (NEIGHBOUR/M OF PUBLIC) - 3 EMPINGHAM ROAD, KETTON
Representations
Not yet archived · Original link
INTERESTED PARTY - (NEIGHBOUR/M OF PUBLIC) - 4 NORTHWICK ROAD, KETTON
Representations
Not yet archived · Original link
INTERESTED PARTY - (NEIGHBOUR/M OF PUBLIC) - 46 EMPINGHAM ROAD, KETTON
Representations
Not yet archived · Original link
INTERESTED PARTY - (NEIGHBOUR/M OF PUBLIC) - 5 BRAITHWAITE CLOSE, KETTON
Representations
Not yet archived · Original link
INTERESTED PARTY - (NEIGHBOUR/M OF PUBLIC) - 5 BRAITHWAITE CLOSE, KETTON
Representations
Not yet archived · Original link
INTERESTED PARTY - (NEIGHBOUR/M OF PUBLIC) - 5 SULTHORPE ROAD, KETTON
Representations
Not yet archived · Original link
INTERESTED PARTY - (NEIGHBOUR/M OF PUBLIC) - 6 NORTHWICK ROAD, KETTON
Representations
Not yet archived · Original link
INTERESTED PARTY - (NEIGHBOUR/M OF PUBLIC) - ROOKERY VIEW, 54 LUFFENHAM ROAD, KE
Representations
Not yet archived · Original link
INTERESTED PARTY - (NEIGHBOUR/M OF PUBLIC) - ROOKERY VIEW, 54 LUFFENHAM ROAD, KE
Representations
Not yet archived · Original link
INTERESTED PARTY - (NEIGHBOUR/M OF PUBLIC) - ROOKERY VIEW, 54 LUFFENHAM ROAD, KE
Representations
Not yet archived · Original link
INTERESTED PARTY - (NEIGHBOUR/M OF PUBLIC) - ROOKERY VIEW, 54 LUFFENHAM ROAD, KE
Representations
Not yet archived · Original link
INTERESTED PARTY - (NEIGHBOUR/M OF PUBLIC) - THE HOLLOW, 2 PINFOLD GATE, KETTON
Representations
Not yet archived · Original link
INTERESTED PARTY - 14 NORTHWICK ROAD, KETTON
Representations
Not yet archived · Original link
INTERESTED PARTY - 14 NORTHWICK ROAD, KETTON
Representations
Not yet archived · Original link
INTERESTED PARTY - 16 NORTHWICK ROAD, KETTON
Representations
Not yet archived · Original link
INTERESTED PARTY - 16 NORTHWICK ROAD, KETTON
Representations
Not yet archived · Original link
INTERESTED PARTY - 16 NORTHWICK ROAD, KETTON
Representations
Not yet archived · Original link
INTERESTED PARTY - 2 NORTHWICK ROAD, KETTON
Representations
Not yet archived · Original link
INTERESTED PARTY - 2 NORTHWICK ROAD, KETTON
Representations
Not yet archived · Original link
INTERESTED PARTY - 2 PINFOLD GATE, KETTON
Representations
Not yet archived · Original link
INTERESTED PARTY - 2 PINFOLD GATE, KETTON
Representations
Not yet archived · Original link
INTERESTED PARTY - 20 NORTHWICK ROAD, KETTON
Representations
Not yet archived · Original link
INTERESTED PARTY - 20 NORTHWICK ROAD, KETTON
Representations
Not yet archived · Original link
INTERESTED PARTY - 27 NORTHWICK ROAD, KETTON
Representations
Not yet archived · Original link
INTERESTED PARTY - 27 NORTHWICK ROAD, KETTON
Representations
Not yet archived · Original link
INTERESTED PARTY - 3 CAPENDALE CLOSE, KETTON
Representations
Not yet archived · Original link
INTERESTED PARTY - 3 PINFOLD GATE, KETTON
Representations
Not yet archived · Original link
INTERESTED PARTY - 4 NORTHWICK ROAD, KETTON
Representations
Not yet archived · Original link
INTERESTED PARTY - 4 NORTHWICK ROAD, KETTON
Representations
Not yet archived · Original link
INTERESTED PARTY - 41 ALDGATE, KETTON
Representations
Not yet archived · Original link
INTERESTED PARTY - 5 PINFOLD GATE, KETTON
Representations
Not yet archived · Original link
INTERESTED PARTY - 5 PINFOLD GATE, KETTON
Representations
Not yet archived · Original link
INTERESTED PARTY - 52 LUFFENHAM ROAD, KETTON
Representations
Not yet archived · Original link
INTERESTED PARTY - 54 LUFFENHAM ROAD, KETTON
Representations
Not yet archived · Original link
INTERESTED PARTY - 54 LUFFENHAM ROAD, KETTON
Representations
Not yet archived · Original link
INTERESTED PARTY - 54 LUFFENHAM ROAD, KETTON
Representations
Not yet archived · Original link
INTERESTED PARTY - 54 LUFFENHAM ROAD, KETTON
Representations
Not yet archived · Original link
INTERESTED PARTY - 6 BURNHAMS ROAD, KETTON
Representations
Not yet archived · Original link
INTERESTED PARTY - 8 THE CRESCENT, STAMFORD
Representations
Not yet archived · Original link
LANDSCAPE - DETAILS (BEDS S1-S13)
Drawing Revised
Not yet archived · Original link
LANDSCAPE - DETAILS (BEDS S14-S35)
Drawing Revised
Not yet archived · Original link
LANDSCAPE - LANDSCAPE MASTERPLAN
Drawing Revised
Not yet archived · Original link
LANDSCAPE DETAILS (BEDS S1-S35)
Drawing Revised
Not yet archived · Original link
LANDSCAPE DETAILS (PLAY AREA - POS)
Drawing Revised
Not yet archived · Original link
LANDSCAPE DETAILS - POS/LAP AREA
Drawing Superceded
Not yet archived · Original link
LANDSCAPE DETAILS - SHRUB BED S1-S26
Drawing Superceded
Not yet archived · Original link
LANDSCAPE DETAILS SHRUB BED S1-S19
Drawing Revised
Not yet archived · Original link
LANDSCAPE DETAILS SHRUB BED S30-S32
Drawing Revised
Not yet archived · Original link
LANDSCAPE MANAGEMENT DOCUMENT
Superseded Document
Not yet archived · Original link
LANDSCAPE MASTERPLAN
Drawing Superceded
Not yet archived · Original link
LANDSCAPE MASTERPLAN
Drawing Revised
Not yet archived · Original link
LANDSCAPE MASTERPLAN
Drawing Superceded
Not yet archived · Original link
LANDSCAPING MANAGEMENT DOCUMENT
Superseded Document
Not yet archived · Original link
LAYOUT - VISBILITY SPLAYS
Drawing Revised
Not yet archived · Original link
LOCATION PLAN
Drawing
Not yet archived · Original link
MATERIALS
Drawing Revised
Not yet archived · Original link
MATERIALS PLAN
Drawing Proposed
Not yet archived · Original link
NOTIFIED NEIGHBOUR LIST
Notified Neighbour List
Not yet archived · Original link
PLANNING OFFICER EMAIL
Correspondence
Not yet archived · Original link
PLANNING OFFICER EMAIL TO AGENT
Correspondence
Not yet archived · Original link
PLANNING STATEMENT
Supporting Document
Not yet archived · Original link
PLOT 1 - TYPE E
Drawing Superceded
Not yet archived · Original link
PLOT 14 - TYPE B
Drawing Superceded
Not yet archived · Original link
PLOT 16 - TYPE A
Drawing Superceded
Not yet archived · Original link
PLOT 2 - TYPE A1
Drawing Superceded
Not yet archived · Original link
PLOT 3 - TYPE D
Drawing Superceded
Not yet archived · Original link
PLOT 4 - TYPE D
Drawing Superceded
Not yet archived · Original link
PLOT 5 - TYPE D
Drawing Superceded
Not yet archived · Original link
PLOT 6 - TYPE D1
Drawing Superceded
Not yet archived · Original link
PLOTS 11, 12 & 13 - TYPE F1
Drawing Superceded
Not yet archived · Original link
PLOTS 15 - TYPE A
Drawing Superceded
Not yet archived · Original link
PLOTS 7 & 8 - TYPE C
Drawing Superceded
Not yet archived · Original link
PLOTS 9 & 10 - TYPE F
Drawing Superceded
Not yet archived · Original link
PRELIMINARY ECOLOGICAL APPRAISAL UPDATE
Supporting Document
Not yet archived · Original link
Drawing Revised
Archived · Original link
Drawing Superceded
Archived · Original link
PROPOSED SITE SECTIONS
Drawing Superceded
Not yet archived · Original link
RESPONSE TO HIGHWAYS COMMENTS
Supporting Document
Not yet archived · Original link
SITE / BLOCK PLAN
Drawing Superceded
Not yet archived · Original link
Drawing Superceded
Archived · Original link
SITE SECTIONS
Drawing Revised
Not yet archived · Original link
SITE SECTIONS - 1, 2 & 3
Drawing Superceded
Not yet archived · Original link
SITE SECTIONS - 4 & 5
Drawing Superceded
Not yet archived · Original link
SITE/BLOCK PLAN
Drawing Existing
Not yet archived · Original link
SURFACING AND KERBING LAYOUT
Drawing Superceded
Not yet archived · Original link
SURFACING AND KERBING LAYOUT
Drawing Revised
Not yet archived · Original link
SURFACING AND KERBING LAYOUT
Drawing Superceded
Not yet archived · Original link
TREE PROTECTION PLAN
Drawing Proposed
Not yet archived · Original link
TREE RETENTION PLAN
Drawing Proposed
Not yet archived · Original link
TREE SCHEDULE
Supporting Document
Not yet archived · Original link
TREE SURVEY PLAN
Drawing Superceded
Not yet archived · Original link
TREE SURVEY PLAN
Drawing Revised
Not yet archived · Original link
VEHICLE SWEPT PATH - FIRE APPLIANCE
Superseded Document
Not yet archived · Original link
VEHICLE SWEPT PATH - FIRE APPLIANCE
Drawing Revised
Not yet archived · Original link
VEHICLE SWEPT PATH ANALYSIS - REFUSE VEHICLE
Drawing Superceded
Not yet archived · Original link
VEHICLE SWEPT PATH ANALYSIS REFUSE VEHICLE
Drawing Superceded
Not yet archived · Original link
VEHICLE TRACKING (DELIVERY)
Superseded Document
Not yet archived · Original link
VEHICLE TRACKING (DELIVERY)
Drawing Revised
Not yet archived · Original link
VEHICLE TRACKING (REFUSE)
Drawing Superceded
Not yet archived · Original link
VEHICLE TRACKING (REFUSE)
Drawing Revised
Not yet archived · Original link
VEHICLE TRACKING DELIVERY VAN
Drawing Superceded
Not yet archived · Original link

Have your say

Your comment matters. Councils must consider every representation that raises material planning considerations.

Write a comment